Dunstan Houses, Stepney Green, London, E1
By Keatons
£ 400,000
Reviews
2 out of 5 stars
Keatons says ..
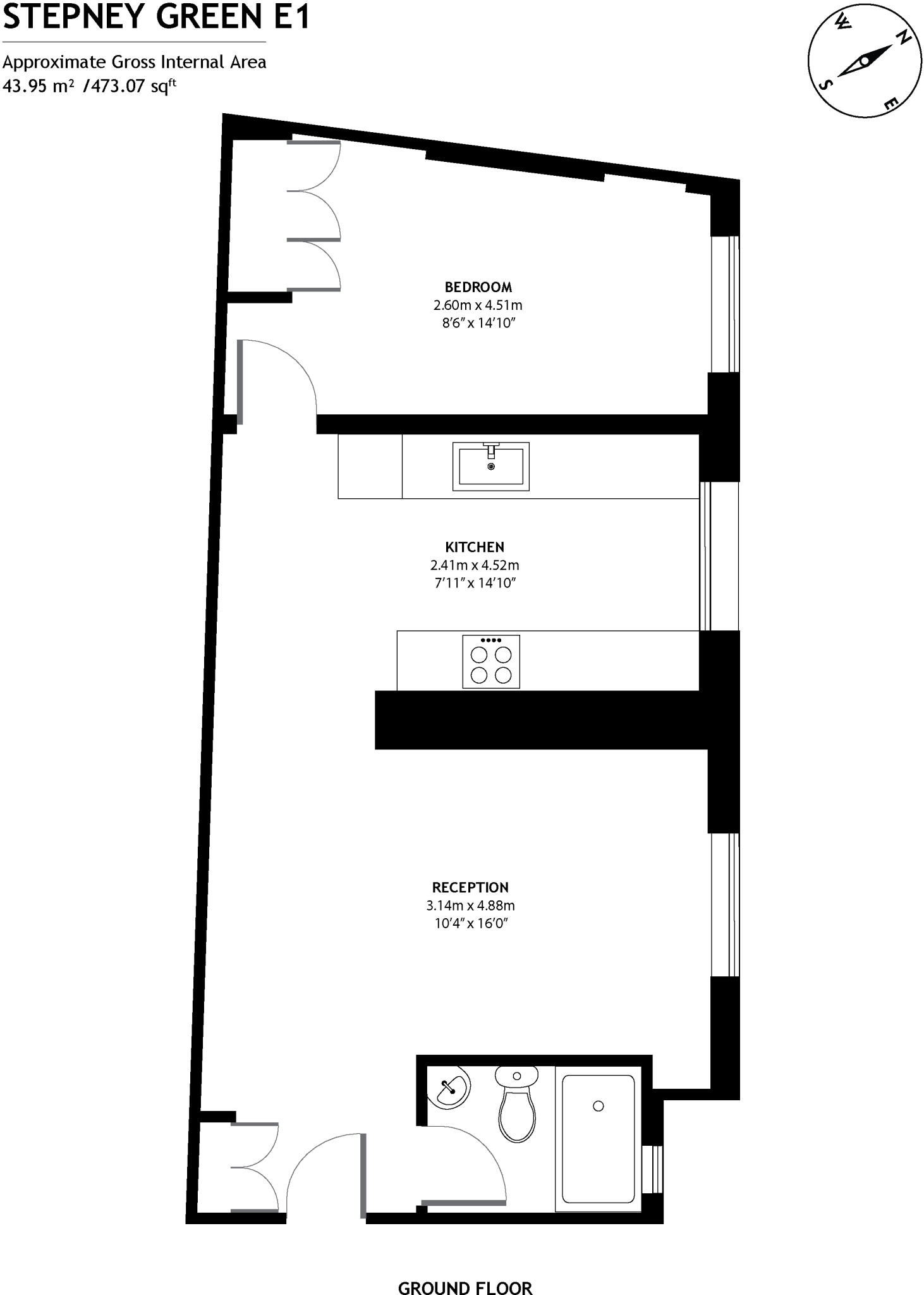
* Guide Price £400,000-£425,000 * A beautifully renovated one-bedroom apartment in this highly desirable Victorian Mansion block overlooking Stepney Green Gardens. Offered chain-free, this property boasts wooden flooring with under-floor heating, double glazed sash windows ...
Property Oracle says ..
This property is a one-bedroom, one-bathroom flat located in Stepney Green, London. The flat is situated in a period conversion building and benefits from a modern fitted kitchen and bathroom. The property is well-presented and benefits from wooden flooring throughout. The location is convenient, with several transport links and schools nearby. However, the property lacks outdoor space and is smaller than the average property in the area. The list price is slightly below the average price for the area, but this may be due to the smaller size and lack of outdoor space.
Therefore, we give this property 5 / 10. *Disclaimer: This is our option and does constitute a recommendation or financial advice. Do your own research. *
- Price
- 6
- Condition
- 8
- Location
- 7
- Land
- 1
- Bedrooms
- 1
- Bathrooms
- 1
- Sqft (est)
- 473.07
The heatmap indicates the level of crime in the area. The color of the heatmap indicates the crime severity and recency.
Metrics Year-on-Year
- Average area value
- 375,000.00 £Decreased by 38.35 %
- Est sale value
- 292,830.33 £Decreased by 11.32 %
- Average area rental value
- 2,543.00 £/moIncreased by 18.06 %
- Est letting value
- 1,892.28 £/moIncreased by 100.00 %
- Est rental Yield
- 8.14 %Increased by 91.53 %
- Crime Rate
- 5.00 %Unchanged by 0.00 %
Agent Activity
Keatons created the listing.
Nearby Schools
| Name | Type | Ofsted | Distance |
|---|---|---|---|
| Alice Model Nursery School | Local Authority Nursery School | Outstanding | 0.27 KM |
| Stepney Park Primary School | Community School | Good | 0.31 KM |
| London East Alternative Provision | Pupil Referral Unit | Good | 0.44 KM |
| John Scurr Primary School | Community School | Good | 0.46 KM |
| Mazahirul Uloom London School | Other Independent School | Requires improvement | 0.55 KM |
Images
Nearby Streets
| Name | Average Price | Average Sqft | Distance |
|---|---|---|---|
| Cressy Court | £ 0 | 0 | 0.00 KM |
| Beveridge Mews | £ 0 | 0 | 0.00 KM |
| Ewhurst Close | £ 0 | 0 | 0.00 KM |
| Nicholas Road | £ 265,000 | 0 | 0.00 KM |
| Fox Close | £ 0 | 0 | 0.00 KM |
Nearby Transport
| Name | NLC | TLC | Distance |
|---|---|---|---|
| Whitechapel | 4935 | ZLW | 1.21 KM |
| Bethnal Green Rail | 6961 | BET | 1.26 KM |
| Limehouse | 7491 | LHS | 1.30 KM |
| Shadwell | 1082 | SDE | 1.32 KM |
| Cambridge Heath | 6962 | CBH | 1.63 KM |
Nearby Listings
| Address | Price | Type | Score | Distance |
|---|---|---|---|---|
| Dunstan Houses, Stepney Green, London | £ 400,000 | BUY | 5 / 10 | 0.00 KM |
| Dunstan Houses, Stepney Green, E1 | £ 425,000 | BUY | 6 / 10 | 0.00 KM |
| Dunstan Houses, Stepney Green, E1 | £ 400,000 | BUY | 6 / 10 | 0.00 KM |
| Dunstan Houses, Stepney Green, London, E1 | £ 400,000 | BUY | 5 / 10 | 0.00 KM |
| Hannibal Road, London, E1 | £ 300,000 | BUY | 6 / 10 | 0.07 KM |
Nearby Properties
| Address | Price | Distance |
|---|---|---|
| 37 Stepney Green | £ 462,500 | 0.06 KM |
| 21 Stepney Green | £ 950,000 | 0.06 KM |
| 31 Stepney Green | £ 1,833,000 | 0.07 KM |
| 27a Stepney Green | £ 177,500 | 0.07 KM |
| 7 Allport Mews | £ 335,000 | 0.10 KM |