Commonside, Hanging Heaton, Batley, West Yorkshire
By Springbok Properties
£ 60,000
Reviews
2 out of 5 stars
Springbok Properties says ..
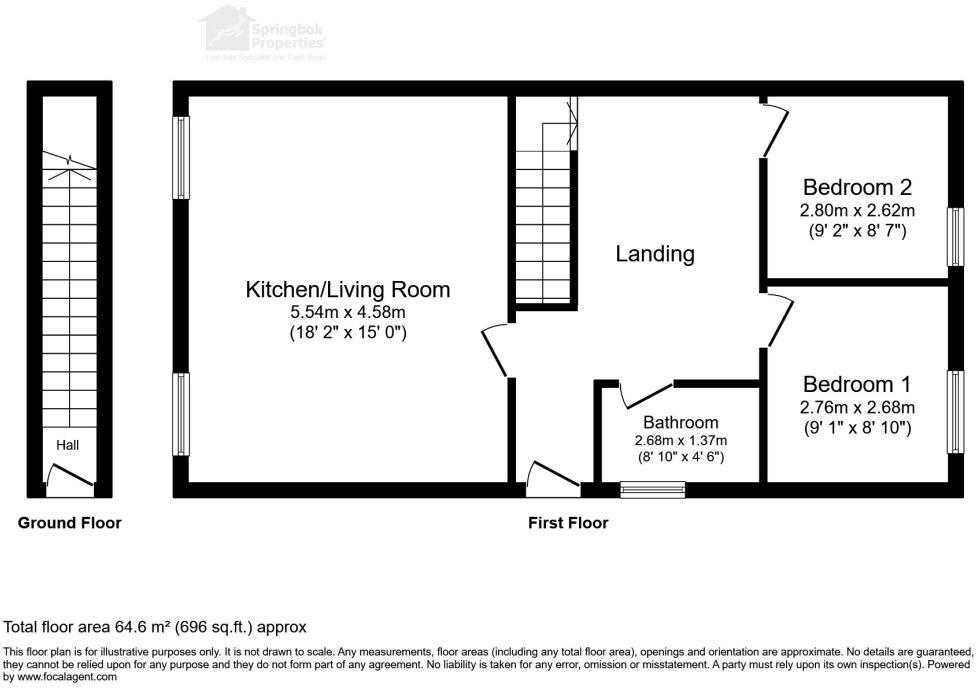
CASH BUYERS ONLY This promising property presents a rare opportunity for buyers seeking a renovation project in a convenient and well-connected location. Set within a traditional stone façade, the home requires full modernisation, offering scope to tailor the space to suit personal lifestyle or ...
Property Oracle says ..
Therefore, we give this property 5 / 10. *Disclaimer: This is our option and does constitute a recommendation or financial advice. Do your own research. *
- Price
- 8
- Condition
- 2
- Location
- 7
- Land
- 3
- Bedrooms
- 2
- Bathrooms
- 1
The heatmap indicates the level of crime in the area. The color of the heatmap indicates the crime severity and recency.
Metrics Year-on-Year
- Average area value
- 879,375.00 £Increased by 25.99 %
- Average area rental value
- 1,568.00 £/moDecreased by 10.50 %
- Est rental Yield
- 2.14 %Decreased by 28.90 %
- Crime Rate
- 5.00 %Unchanged by 0.00 %
from 697,950.00 £
from 1,752.00 £/mo
from 3.01 %
from 5.00 %
Agent Activity
Springbok Properties created the listing.
Nearby Schools
| Name | Type | Ofsted | Distance |
|---|---|---|---|
| Mill Lane Primary School | Community School | Good | 0.13 KM |
| Field Lane Junior Infant And Nursery School | Academy Converter | 1.04 KM | |
| Batley East Children'S Centre | Children's Centre Linked Site | 1.07 KM | |
| Batley Central Sure Start Children'S Centre | Children's Centre | 1.07 KM | |
| Warwick Road Primary School | Community School | Good | 1.11 KM |
Images
Nearby Streets
| Name | Average Price | Average Sqft | Distance |
|---|---|---|---|
| Wood Lane | £ 115,000 | 0 | 0.00 KM |
| Back Mount Avenue | £ 225,000 | 0 | 0.00 KM |
| Warwick Road | £ 0 | 0 | 0.00 KM |
| Lumley Road | £ 0 | 0 | 0.00 KM |
| Derwent Road | £ 0 | 0 | 0.00 KM |
Nearby Transport
| Name | NLC | TLC | Distance |
|---|---|---|---|
| Batley | 8484 | BTL | 0.59 KM |
| Dewsbury | 8326 | DEW | 1.87 KM |
| Ravensthorpe | 8519 | RVN | 4.94 KM |
| Morley | 8504 | MLY | 6.08 KM |
| Cottingley | 8505 | COT | 7.98 KM |
Nearby Listings
| Address | Price | Type | Score | Distance |
|---|---|---|---|---|
| Commonside, Hanging Heaton, Batley, West Yorkshire | £ 60,000 | BUY | 5 / 10 | 0.00 KM |
| Commonside, Hanging Heaton | £ 120,000 | BUY | Unknown | 0.00 KM |
| Commonside, Hanging Heaton, Batley | £ 115,000 | BUY | 6 / 10 | 0.01 KM |
| Commonside, Batley, WF17 | £ 124,950 | BUY | 6 / 10 | 0.04 KM |
| Commonside, Batley, WF17 | £ 90,000 | BUY | 5 / 10 | 0.06 KM |
Nearby Properties
| Address | Price | Distance |
|---|---|---|
| 187 Commonside | £ 76,000 | 0.01 KM |
| 127 Commonside | £ 55,000 | 0.01 KM |
| 181 Commonside | £ 65,000 | 0.01 KM |
| 145 Commonside | £ 120,000 | 0.01 KM |
| 183 Commonside | £ 84,000 | 0.01 KM |