Eldon Street, Darlington, Durham, DL3
By British Homesellers
£ 65,000
Reviews
3 out of 5 stars
British Homesellers says ..
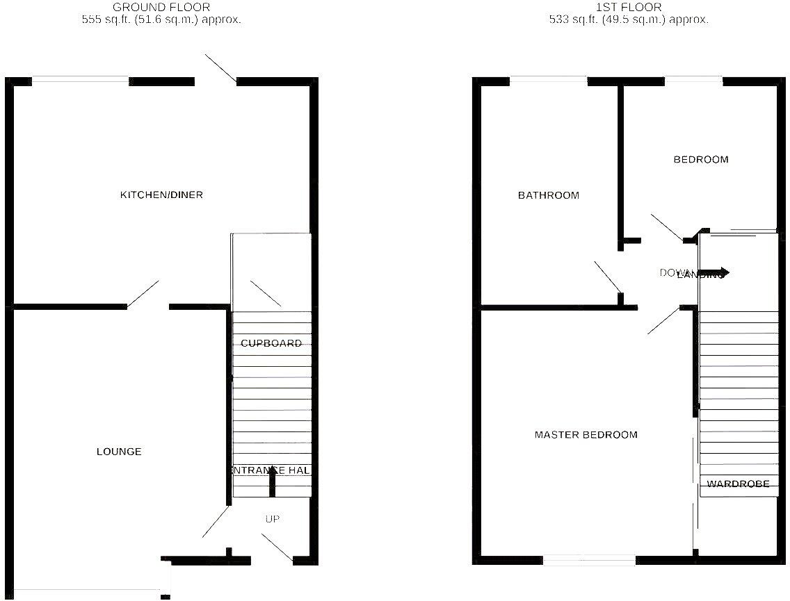
Charming Two-Bedroom Terraced Home with Garden. This well-maintained two-bedroom terraced property offers a fantastic opportunity for first-time buyers, investors, or anyone looking to settle in a convenient and well-connected part of Darlington. Thoughtfully laid out, the home feature...
Property Oracle says ..
Therefore, we give this property 7 / 10. *Disclaimer: This is our option and does constitute a recommendation or financial advice. Do your own research. *
- Price
- 9
- Condition
- 6
- Location
- 7
- Land
- 7
- Bedrooms
- 2
- Bathrooms
- 1
- Sqft (est)
- 555.00
- Lot (est)
- 555.00
The heatmap indicates the level of crime in the area. The color of the heatmap indicates the crime severity and recency.
Metrics Year-on-Year
- Average area value
- 343,750.00 £Increased by 10.06 %
- Est sale value
- 160,395.00 £Increased by 14.68 %
- Average area rental value
- 900.00 £/moDecreased by 14.61 %
- Est letting value
- 0.00 £/mo
- Est rental Yield
- 3.14 %Decreased by 22.47 %
- Crime Rate
- 8.00 %Unchanged by 0.00 %
from 312,318.00 £
from 139,860.00 £
from 1,054.00 £/mo
from 0.00 £/mo
from 4.05 %
from 8.00 %
Agent Activity
British Homesellers created the listing.
Nearby Schools
| Name | Type | Ofsted | Distance |
|---|---|---|---|
| Rise Carr College | Pupil Referral Unit | Good | 0.03 KM |
| Longfield Academy | Academy Sponsor Led | 0.77 KM | |
| Mcnay Street Sure Start Children'S Centre | Children's Centre | 0.80 KM | |
| Harrowgate Hill Primary School | Community School | Requires improvement | 1.02 KM |
| Northwood Primary School | Academy Sponsor Led | Good | 1.05 KM |
Images
Nearby Streets
| Name | Average Price | Average Sqft | Distance |
|---|---|---|---|
| Harry Street | £ 0 | 0 | 0.00 KM |
| Longfield Road | £ 49,950 | 0 | 0.00 KM |
| Barlby Drive | £ 0 | 0 | 0.00 KM |
| Crosby Street | £ 25,000 | 0 | 0.00 KM |
| St Paul's Terrace | £ 100,000 | 0 | 0.00 KM |
Nearby Transport
| Name | NLC | TLC | Distance |
|---|---|---|---|
| North Road (Darlington) | 7895 | NRD | 0.69 KM |
| Darlington | 7877 | DAR | 2.59 KM |
| Heighington | 7887 | HEI | 6.74 KM |
| Newton Aycliffe | 7834 | NAY | 8.79 KM |
Nearby Listings
| Address | Price | Type | Score | Distance |
|---|---|---|---|---|
| Eldon Street, Darlington | £ 75,000 | BUY | 6 / 10 | 0.00 KM |
| Eldon Street, Darlington, Durham, DL3 | £ 65,000 | BUY | 7 / 10 | 0.00 KM |
| Eldon Street, Darlington | £ 75,000 | BUY | 5 / 10 | 0.03 KM |
| Westmoreland Street, Darlington | £ 65,000 | BUY | 4 / 10 | 0.06 KM |
| Westmoreland Street, Darlington, DL3 | £ 98,000 | BUY | 5 / 10 | 0.07 KM |
Nearby Properties
| Address | Price | Distance |
|---|---|---|
| 175 Eldon Street | £ 78,000 | 0.04 KM |
| 163 Eldon Street | £ 48,950 | 0.04 KM |
| 165 Eldon Street | £ 65,000 | 0.04 KM |
| 171 Eldon Street | £ 40,000 | 0.04 KM |
| 187 Eldon Street | £ 59,000 | 0.04 KM |