Brookwood Farm Drive, Knaphill, Woking, Surrey, GU21
By Seymours Estate Agents
£ 475,000
Reviews
3 out of 5 stars
Seymours Estate Agents says ..
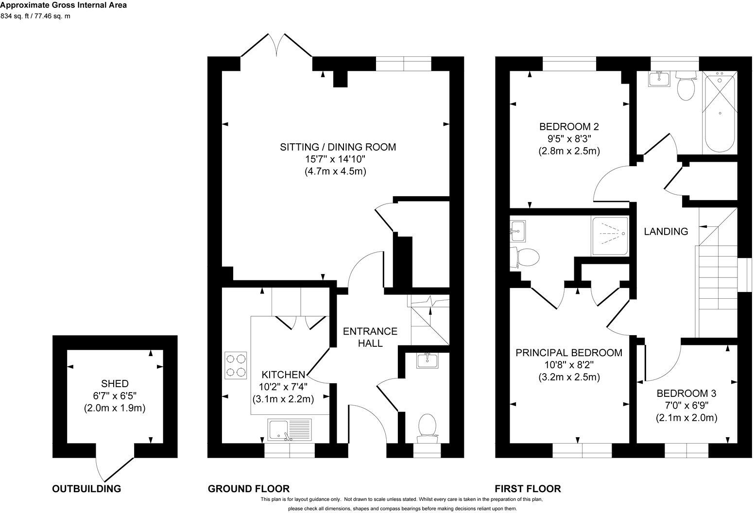
Brookwood Farm is an exclusive modern development in Knaphill that offers easy access to Brookwood Mainline Station offering a 30 minute journey to London Waterloo. The property occupies a delightful position, fronting a green as well as a fabulous aspect to the rear of seclusion by virtue of mat...
Property Oracle says ..
This property is a well-presented three-bedroom semi-detached house located in Knaphill, Woking. The property benefits from a modern interior and a good-sized rear garden. The location is convenient, with nearby schools and transportation links. However, the property is smaller than average for the area, and the price per square foot is higher than the average. Overall, this is a good property in a desirable location, but buyers should consider the smaller size and higher price per square foot.
Therefore, we give this property 7 / 10. *Disclaimer: This is our option and does constitute a recommendation or financial advice. Do your own research. *
- Price
- 6
- Condition
- 9
- Location
- 8
- Land
- 7
- Bedrooms
- 3
- Bathrooms
- 2
- Sqft (est)
- 541.68
The heatmap indicates the level of crime in the area. The color of the heatmap indicates the crime severity and recency.
Metrics Year-on-Year
- Average area value
- 586,400.00 £Increased by 18.76 %
- Est sale value
- 257,839.68 £Increased by 6.01 %
- Average area rental value
- 2,150.00 £/moIncreased by 9.47 %
- Est letting value
- 541.68 £/moUnchanged by 0.00 %
- Est rental Yield
- 4.40 %Decreased by 7.76 %
- Crime Rate
- 1.00 %Unchanged by 0.00 %
Agent Activity
Seymours Estate Agents created the listing.
Nearby Schools
| Name | Type | Ofsted | Distance |
|---|---|---|---|
| The Knaphill Lower School | Academy Converter | 0.85 KM | |
| Brookwood Primary School | Academy Sponsor Led | Good | 0.99 KM |
| Brookwood & Pirbright Sure Start Children'S Centre | Children's Centre | 1.02 KM | |
| Knaphill School | Academy Converter | 1.10 KM | |
| Bisley Cofe Primary School | Voluntary Aided School | Good | 1.22 KM |
Images
Nearby Streets
| Name | Average Price | Average Sqft | Distance |
|---|---|---|---|
| Gloucester Close | £ 735,000 | 0 | 0.00 KM |
| Guernsey Way | £ 0 | 0 | 0.00 KM |
| Stafford Lake | £ 0 | 0 | 0.00 KM |
| Oak Tree Road | £ 0 | 0 | 0.00 KM |
| Trinity Road | £ 660,000 | 0 | 0.00 KM |
Nearby Transport
| Name | NLC | TLC | Distance |
|---|---|---|---|
| Brookwood | 5687 | BKO | 1.18 KM |
| Worplesdon | 5686 | WPL | 6.18 KM |
| Woking | 5685 | WOK | 8.37 KM |
| Bagshot | 5681 | BAG | 8.37 KM |
| Wanborough | 5639 | WAN | 8.64 KM |
Nearby Listings
| Address | Price | Type | Score | Distance |
|---|---|---|---|---|
| Brookwood Farm Drive, Knaphill, Woking, Surrey, GU21 | £ 475,000 | BUY | 7 / 10 | 0.00 KM |
| Brookwood Farm Drive, Knaphill, Woking, Surrey, GU21 | £ 470,000 | BUY | Unknown | 0.03 KM |
| Ayrshire Crescent, Knaphill, Woking, Surrey, GU21 | £ 475,000 | BUY | 6 / 10 | 0.06 KM |
| Brookwood Farm Drive, Woking, Surrey, GU21 | £ 525,000 | BUY | 7 / 10 | 0.07 KM |
| Grindstone Handle Corner, Knaphill, Woking, Surrey, GU21 | £ 675,000 | BUY | 7 / 10 | 0.09 KM |
Nearby Properties
| Address | Price | Distance |
|---|---|---|
| Tankards | £ 328,000 | 0.08 KM |
| Woodstock | £ 545,000 | 0.08 KM |
| Imber Lodge | £ 660,000 | 0.08 KM |
| 3 Jersey Close | £ 500,000 | 0.10 KM |
| 6 Jersey Close | £ 445,000 | 0.10 KM |