ED
, St. Marys Street Latchford, Warrington
By Edward Mellor Ltd
£ 300,000
Reviews
3 out of 5 stars
Edward Mellor Ltd says ..
'Claremont Villas' is a terrace of just six substantial Victorian homes built to a most attractive design of bay fronted brick elevations. Located in the ever popular Latchford area and within convenient distance of Warrington town...
Property Oracle says ..
Therefore, we give this property 6 / 10. *Disclaimer: This is our option and does constitute a recommendation or financial advice. Do your own research. *
- Price
- 7
- Condition
- 8
- Location
- 7
- Land
- 3
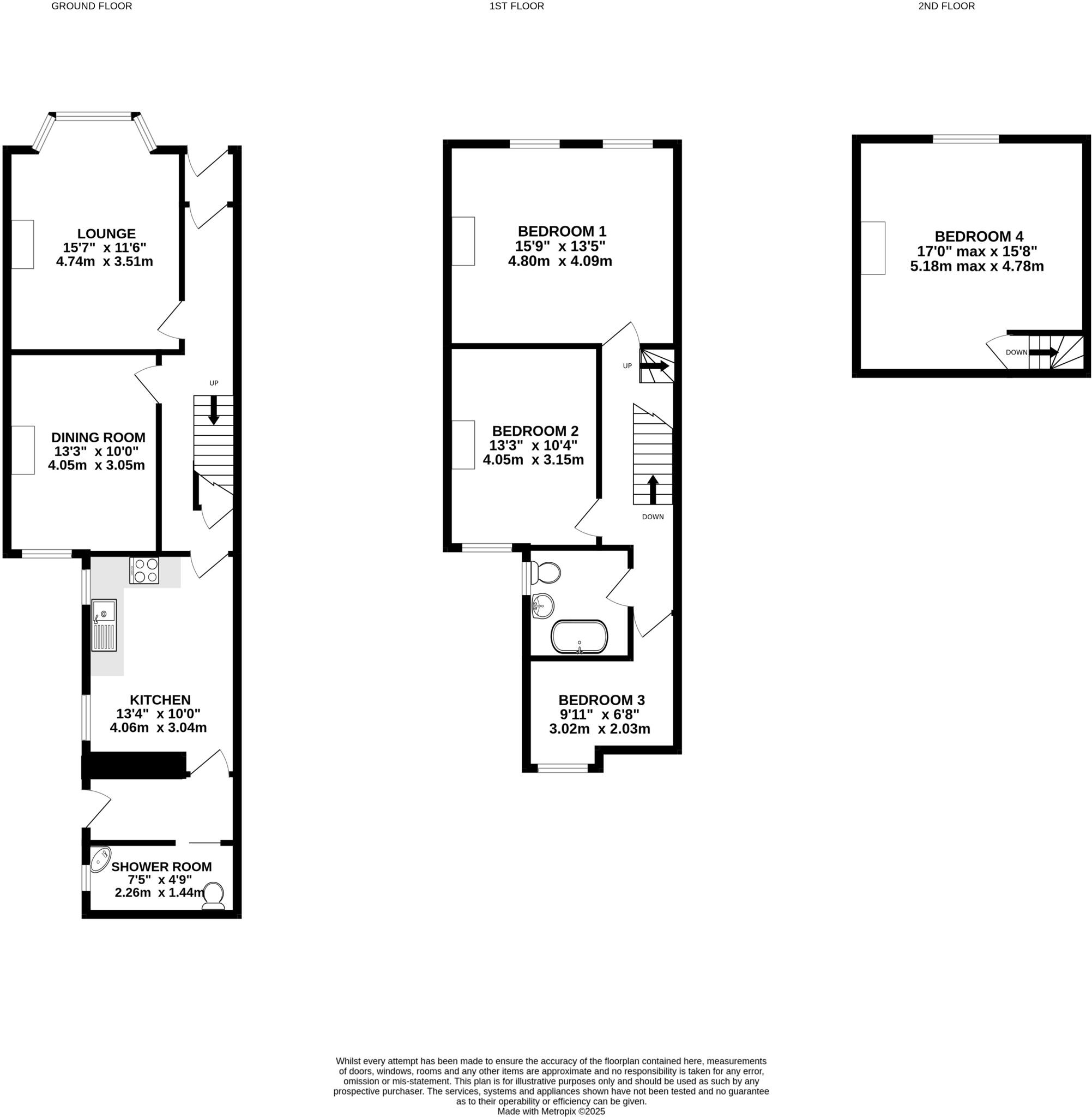
- Bedrooms
- 4
- Bathrooms
- 2
- Sqft (est)
- 1,161.12
The heatmap indicates the level of crime in the area. The color of the heatmap indicates the crime severity and recency.
Metrics Year-on-Year
- Average area value
- 183,878.00 £Decreased by 22.92 %
- Est sale value
- 248,479.68 £Decreased by 17.37 %
- Average area rental value
- 1,019.00 £/moIncreased by 15.93 %
- Est letting value
- 1,161.12 £/mo
- Est rental Yield
- 6.65 %Increased by 50.45 %
- Crime Rate
- 3.00 %Unchanged by 0.00 %
from 238,551.00 £
from 300,730.08 £
from 879.00 £/mo
from 0.00 £/mo
from 4.42 %
from 3.00 %
Agent Activity
Edward Mellor Ltd created the listing.
Nearby Schools
| Name | Type | Ofsted | Distance |
|---|---|---|---|
| Priestley College | Academy 16-19 Converter | Good | 0.34 KM |
| Latchford St James Cofe Primary School | Voluntary Aided School | Good | 0.77 KM |
| Our Lady'S Catholic Primary School | Voluntary Aided School | Good | 1.21 KM |
| St Thomas' Cofe Primary School | Voluntary Aided School | Good | 1.27 KM |
| St Elphin'S (Fairfield) Cofe Voluntary Aided Primary School | Voluntary Aided School | Good | 1.35 KM |
Images
Nearby Streets
| Name | Average Price | Average Sqft | Distance |
|---|---|---|---|
| Hughes Street | £ 80,000 | 0 | 0.00 KM |
| Clifton Street | £ 0 | 0 | 0.00 KM |
| Oxford Street | £ 143,750 | 0 | 0.00 KM |
| Saint Mary Street | £ 190,000 | 0 | 0.00 KM |
| Miller Street | £ 165,000 | 0 | 0.00 KM |
Nearby Transport
| Name | NLC | TLC | Distance |
|---|---|---|---|
| Warrington Central | 2390 | WAC | 1.63 KM |
| Warrington Bank Quay | 2384 | WBQ | 2.26 KM |
| Padgate | 2387 | PDG | 3.88 KM |
| Warrington West | 6583 | WAW | 6.31 KM |
| Birchwood | 2304 | BWD | 7.18 KM |
Nearby Listings
| Address | Price | Type | Score | Distance |
|---|---|---|---|---|
| , St. Marys Street Latchford, Warrington | £ 300,000 | BUY | 6 / 10 | 0.00 KM |
| St. Marys Street, Warrington, WA4 | £ 315,000 | BUY | 6 / 10 | 0.02 KM |
| Hughes Street, Warrington, Cheshire, WA4 | £ 130,000 | BUY | 4 / 10 | 0.06 KM |
| Hewitt Street, Latchford, Warrington | £ 149,950 | BUY | 6 / 10 | 0.10 KM |
| Oldham Street, Warrington, WA4 1ES | £ 140,000 | BUY | 6 / 10 | 0.13 KM |
Nearby Properties
| Address | Price | Distance |
|---|---|---|
| 97 St Marys Street | £ 76,000 | 0.01 KM |
| 100 St Marys Street | £ 95,000 | 0.01 KM |
| 95 St Marys Street | £ 140,000 | 0.01 KM |
| 85 St Marys Street | £ 210,000 | 0.01 KM |
| 98 St Marys Street | £ 154,500 | 0.01 KM |