Harris Close, Northfleet, Kent, DA11
By Robinson Michael & Jackson
£ 375,000
Reviews
2 out of 5 stars
Robinson Michael & Jackson says ..
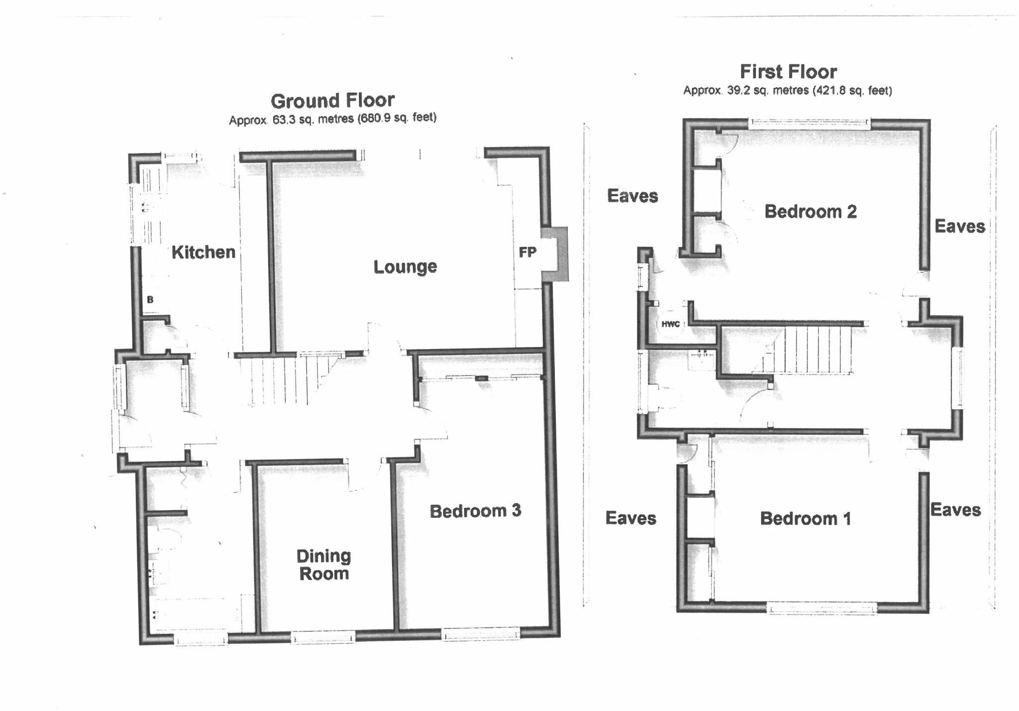
GUIDE PRICE £375000-£400000. Situated in a popular close in the PAINTERS ASH area of NORTHFLEET is this THREE BEDROOM DETACHED CHALET STYLE HOUSE which is offered with the benefit of NO FORWARD CHAIN. The accommodation comprises ENTRANCE HALL, LOUNGE, DINING ROOM, KITCHEN, GROUND FLOO...
Property Oracle says ..
This three-bedroom detached chalet-style house in Painters Ash, Northfleet is presented for sale at £375,000. The property’s exterior shows a brick structure that appears well-maintained, with a paved driveway and a modest front garden. Inside, the property presents a dated aesthetic with original features throughout. Carpets and wallpaper display a style consistent with a property that has not undergone significant renovation for many years. The kitchen and bathrooms exhibit a similar style and may be considered outdated by modern standards. The property includes a rear garden, the size of which cannot be determined from the information provided, although the photos suggest a relatively compact area. The property benefits from its location within a relatively short distance to several well-regarded schools and various train stations providing convenient transportation links. Overall, this property presents an opportunity to acquire a detached house in a convenient location; however, potential buyers should be prepared to invest in a renovation or modernisation programme to update the property to current standards.
Therefore, we give this property 5 / 10. *Disclaimer: This is our option and does constitute a recommendation or financial advice. Do your own research. *
- Price
- 6
- Condition
- 4
- Location
- 7
- Land
- 5
- Bedrooms
- 3
- Bathrooms
- 2
- Sqft (est)
- 1,102.70
The heatmap indicates the level of crime in the area. The color of the heatmap indicates the crime severity and recency.
Metrics Year-on-Year
- Average area value
- 375,000.00 £Decreased by 11.15 %
- Est sale value
- 420,128.70 £Increased by 3.25 %
- Average area rental value
- 1,650.00 £/moIncreased by 7.63 %
- Est letting value
- 1,102.70 £/moUnchanged by 0.00 %
- Est rental Yield
- 5.28 %Increased by 21.10 %
- Crime Rate
- 4.00 %Unchanged by 0.00 %
Agent Activity
Robinson Michael & Jackson marked this listing as sold.
Robinson Michael & Jackson created the listing.
Nearby Schools
| Name | Type | Ofsted | Distance |
|---|---|---|---|
| Shears Green Junior School | Foundation School | Good | 0.49 KM |
| Bright Futures Children'S Centre | Children's Centre | 0.66 KM | |
| Cecil Road Primary And Nursery School | Foundation School | Good | 1.19 KM |
| Northfleet School For Girls | Foundation School | Good | 1.19 KM |
| Northfleet Technology College | Foundation School | Good | 1.24 KM |
Images
Nearby Streets
| Name | Average Price | Average Sqft | Distance |
|---|---|---|---|
| Pennine Way | £ 0 | 0 | 0.00 KM |
| Oaklands Road | £ 400,000 | 0 | 0.00 KM |
| Campion Close | £ 0 | 0 | 0.00 KM |
| White Avenue | £ 0 | 0 | 0.00 KM |
| Sunninghill | £ 450,000 | 0 | 0.00 KM |
Nearby Transport
| Name | NLC | TLC | Distance |
|---|---|---|---|
| Gravesend | 5172 | GRV | 2.59 KM |
| Northfleet | 5120 | NFL | 3.76 KM |
| Ebbsfleet International | 5566 | EBD | 3.88 KM |
| Tilbury Town | 7462 | TIL | 4.24 KM |
| Meopham | 5116 | MEP | 4.28 KM |
Nearby Listings
| Address | Price | Type | Score | Distance |
|---|---|---|---|---|
| Bader Walk, Northfleet, Gravesend | £ 550,000 | BUY | 6 / 10 | 0.08 KM |
| Bader Walk, Northfleet, Gravesend, Kent, DA11 | £ 350,000 | BUY | Unknown | 0.10 KM |
| Durndale Lane, Northfleet, Gravesend, Kent, DA11 | £ 350,000 | BUY | 6 / 10 | 0.13 KM |
| Dowding Walk, Northfleet, Gravesend, Kent, DA11 | £ 350,000 | BUY | 7 / 10 | 0.13 KM |
| Cherrywood Drive, Northfleet, Gravesend | £ 385,000 | BUY | 6 / 10 | 0.15 KM |
Nearby Properties
| Address | Price | Distance |
|---|---|---|
| 3 Gibson Close | £ 241,000 | 0.10 KM |
| 8 Gibson Close | £ 233,000 | 0.10 KM |
| 12 Gibson Close | £ 320,000 | 0.10 KM |
| 1 Dowding Walk | £ 255,000 | 0.13 KM |
| 3 Dowding Walk | £ 285,000 | 0.13 KM |