North Wall says ..
Newly renovated 3-bed semi-detached home in Fazakerley. Modern aesthetics, open-plan living, and new kitchen, split-level garden, off-road parking. Ideal for families or first-time buyers.
Property Oracle says ..
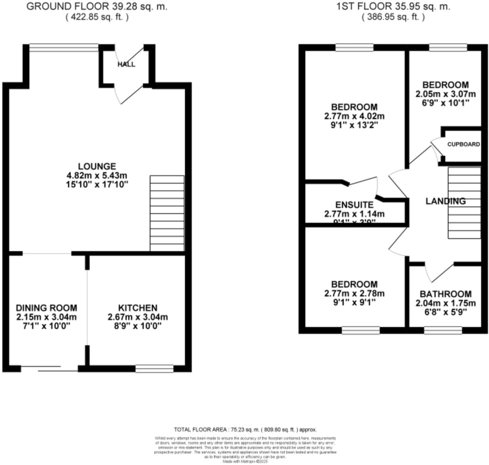
The property is a 3-bedroom semi-detached house located in Fazakerley, Liverpool. It’s situated on Barlows Lane and has a list price of £210,000. The property has a plot size of 809.77 sqft and is 700.08 sqft in size.
Based on the images provided, the property appears to be in excellent condition and has recently undergone a full refurbishment. The kitchen and bathrooms are modern and well-equipped. The property benefits from a rear garden, which is relatively small but well-maintained.
The average house price in the area is £194,853, with an average price per sqft of £182. Considering the property’s size, condition, and the inclusion of a garden, the list price of £210,000 appears reasonable. Nearby properties on Barlows Lane are predominantly detached houses with significantly higher price points, suggesting the list price for this semi-detached property is competitive. While some nearby properties on Hedgebank Close show lower prices, these properties may differ in condition or size, making direct comparison challenging. The proximity to Fazakerley train station and several well-regarded schools (Barlows Primary School and Holy Name Catholic Primary School, both rated ‘Good’ by Ofsted) enhances the property’s desirability and justifies the price.
The property is located close to Fazakerley train station, providing convenient access to public transportation. Several primary schools are within a reasonable distance, making it an attractive option for families with young children.
Therefore, we give this property 8 / 10. *Disclaimer: This is our option and does constitute a recommendation or financial advice. Do your own research. *
- Price
- 8
- Condition
- 10
- Location
- 8
- Land
- 6
- Bedrooms
- 3
- Bathrooms
- 1
- Sqft (est)
- 700.08
- Lot (est)
- 809.77
The heatmap indicates the level of crime in the area. The color of the heatmap indicates the crime severity and recency.
Metrics Year-on-Year
- Average area value
- 191,661.00 £Increased by 27.22 %
- Est sale value
- 191,121.84 £Increased by 50.00 %
- Average area rental value
- 880.00 £/moIncreased by 5.39 %
- Est letting value
- 700.08 £/moUnchanged by 0.00 %
- Est rental Yield
- 5.51 %Decreased by 17.14 %
- Crime Rate
- 1.00 %Unchanged by 0.00 %
Agent Activity
North Wall created the listing.
Nearby Schools
| Name | Type | Ofsted | Distance |
|---|---|---|---|
| Fazakerley & Croxteth Children'S Centre | Children's Centre | 0.27 KM | |
| Barlows Primary School | Community School | Good | 0.53 KM |
| Aintree Davenhill Primary School | Community School | Good | 1.14 KM |
| Holy Name Catholic Primary School | Voluntary Aided School | Good | 1.17 KM |
| Dixons Fazakerley Academy | Academy Sponsor Led | 1.39 KM |
Images
Nearby Streets
| Name | Average Price | Average Sqft | Distance |
|---|---|---|---|
| Barlow's Lane | £ 221,500 | 0 | 0.00 KM |
| Foxhunter Drive | £ 125,000 | 0 | 0.00 KM |
| Barlow's Close | £ 0 | 0 | 0.00 KM |
| Rycroft Road | £ 115,000 | 0 | 0.00 KM |
| Bleasdale Avenue | £ 135,000 | 0 | 0.00 KM |
Nearby Transport
| Name | NLC | TLC | Distance |
|---|---|---|---|
| Fazakerley | 2126 | FAZ | 0.46 KM |
| Aintree | 2125 | AIN | 2.02 KM |
| Old Roan | 2258 | ORN | 2.12 KM |
| Orrell Park | 2247 | OPK | 3.06 KM |
| Rice Lane | 2131 | RIL | 3.18 KM |
Nearby Listings
| Address | Price | Type | Score | Distance |
|---|---|---|---|---|
| Barlows Lane, Fazakerley, L9 | £ 210,000 | BUY | 8 / 10 | 0.00 KM |
| Barlows Lane, Fazakerley, Liverpool | £ 300,000 | BUY | 7 / 10 | 0.06 KM |
| Hedgebank Close, Liverpool, Merseyside | £ 285,000 | BUY | 7 / 10 | 0.07 KM |
| Barlows Lane, Fazakerley, Liverpool, L9 | £ 230,000 | BUY | 7 / 10 | 0.09 KM |
| Barlows Lane, Liverpool, L9 | £ 320,000 | BUY | 7 / 10 | 0.10 KM |
Nearby Properties
| Address | Price | Distance |
|---|---|---|
| 4 Hedgebank Close | £ 81,250 | 0.07 KM |
| 17 Hedgebank Close | £ 125,000 | 0.07 KM |
| 5 Hedgebank Close | £ 237,500 | 0.07 KM |
| 3 Hedgebank Close | £ 160,000 | 0.07 KM |
| 15 Hedgebank Close | £ 59,950 | 0.07 KM |