Spongs Lane, Sissinghurst, Kent, TN17 2AH
By Harpers and Hurlingham
£ 1,895,000
Reviews
3 out of 5 stars
Harpers and Hurlingham says ..
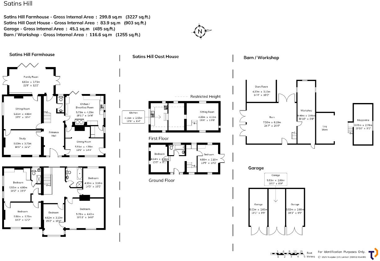
SISSINGHURST - CRANBROOK SCHOOL CATCHMENT A striking unlisted farmhouse with a detached two bedroom Oast house and a separate Barn. The farmhouse is set in approximately 1.5 acres with far...
Property Oracle says ..
Therefore, we give this property 7 / 10. *Disclaimer: This is our option and does constitute a recommendation or financial advice. Do your own research. *
- Price
- 7
- Condition
- 7
- Location
- 8
- Land
- 9
- Bedrooms
- 7
- Bathrooms
- 3
The heatmap indicates the level of crime in the area. The color of the heatmap indicates the crime severity and recency.
Metrics Year-on-Year
- Average area value
- 377,000.00 £Decreased by 3.35 %
- Average area rental value
- 664.00 £/moDecreased by 69.43 %
- Est rental Yield
- 2.11 %Decreased by 68.41 %
- Crime Rate
- 0.00 %
from 390,065.00 £
from 2,172.00 £/mo
from 6.68 %
from 0.00 %
Agent Activity
Harpers and Hurlingham created the listing.
Nearby Schools
| Name | Type | Ofsted | Distance |
|---|---|---|---|
| Sissinghurst Voluntary Aided Church Of England Primary School | Voluntary Aided School | Good | 0.96 KM |
| Dulwich Prep Cranbrook | Other Independent School | 2.51 KM | |
| Cranbrook School | Academy Converter | Outstanding | 3.46 KM |
| Cranbrook Children'S Centre | Children's Centre | 3.53 KM | |
| Cranbrook Church Of England Primary School | Voluntary Controlled School | Good | 3.53 KM |
Images
Nearby Streets
| Name | Average Price | Average Sqft | Distance |
|---|---|---|---|
| Common Road | £ 1,275,000 | 0 | 0.00 KM |
| Carpenters Meadow | £ 0 | 0 | 0.00 KM |
| The Ashes | £ 0 | 0 | 0.00 KM |
| Buckhurst Farm Lane | £ 0 | 0 | 0.00 KM |
Nearby Transport
| Name | NLC | TLC | Distance |
|---|---|---|---|
| Staplehurst | 5228 | SPU | 6.31 KM |
| Headcorn | 5220 | HCN | 9.03 KM |
Nearby Listings
| Address | Price | Type | Score | Distance |
|---|---|---|---|---|
| Spongs Lane, Sissinghurst, Kent, TN17 2AH | £ 1,895,000 | BUY | 7 / 10 | 0.00 KM |
| Frittenden Road, Sissinghurst, Kent, TN17 2ES | £ 1,600,000 | BUY | 9 / 10 | 0.09 KM |
| Satins Hill, Sissinghurst | £ 1,025,000 | BUY | 7 / 10 | 0.42 KM |
| Sissinghurst, Kent | £ 530,000 | BUY | 8 / 10 | 0.62 KM |
| Bramling Gardens, Sissinghurst, Kent, TN17 2DY | £ 530,000 | BUY | Unknown | 0.62 KM |
Nearby Properties
| Address | Price | Distance |
|---|---|---|
| Meadow View | £ 305,053 | 0.69 KM |
| Foxwood | £ 950,000 | 0.69 KM |
| Claytonia | £ 860,000 | 0.69 KM |
| Dairymans | £ 645,000 | 0.69 KM |
| 2 Hovendens | £ 116,500 | 0.70 KM |