3 Seed Howe Cottages, Staveley
By Thomson Hayton Winkley Estate Agents
£ 510,000
Reviews
2 out of 5 stars
Thomson Hayton Winkley Estate Agents says ..
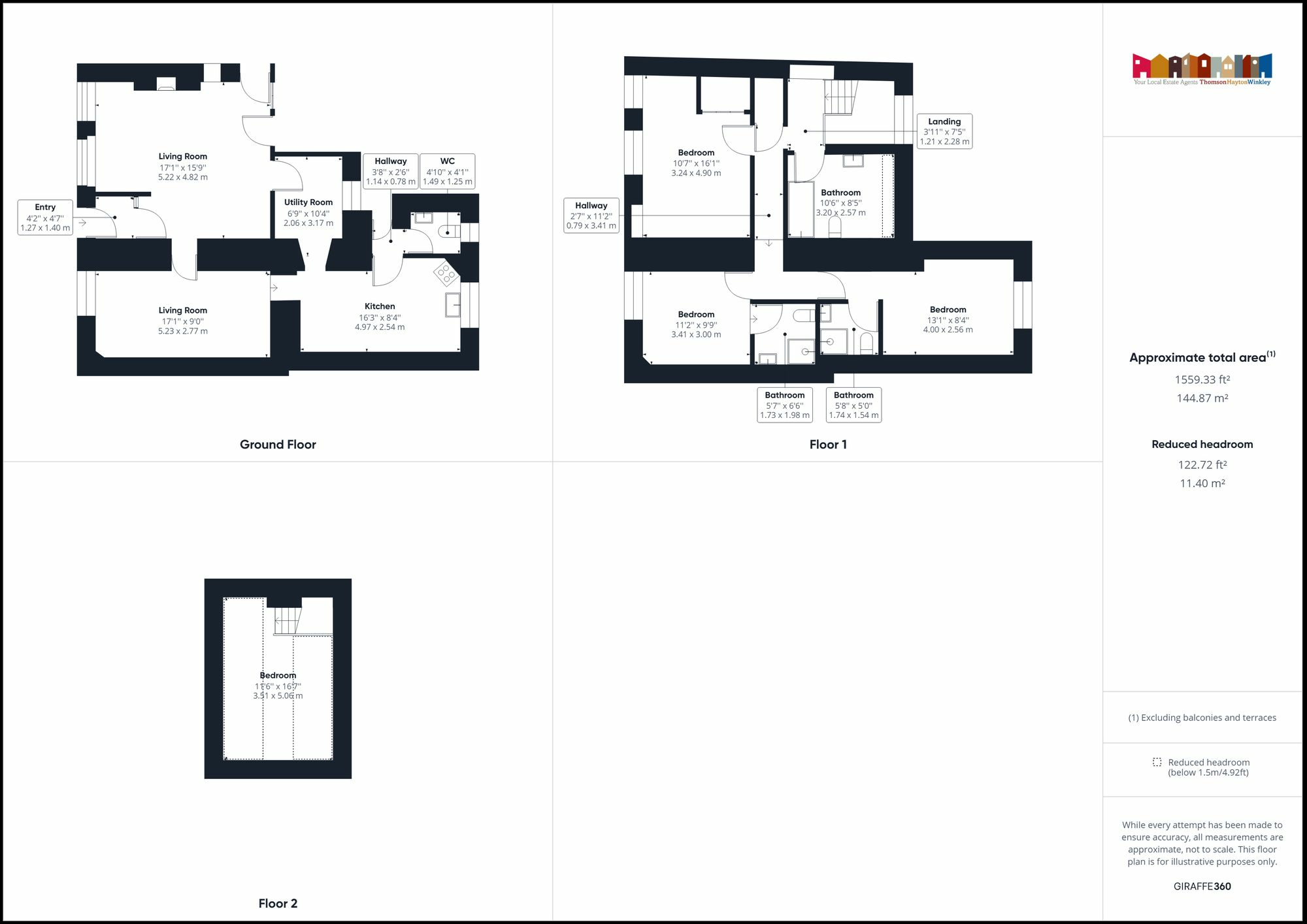
A well presented mid terraced cottage located between the towns of Kendal and Windermere which comprises a sitting room, lounge, kitchen, utility room, four bedrooms, bathroom and two en-suites, double glazing, and gas central heating. garden to the rear and on street parking.. EPC D. Council Tax D
Property Oracle says ..
This four-bedroom, two-bathroom terraced cottage is located in the village of Staveley, Cumbria, within easy reach of Kendal and Windermere. The property benefits from its location in a sought-after area, close to a train station and several well-regarded schools such as Staveley Cofe School which is only 1.13km away, rated as ‘Good’ by Ofsted. The interior, while habitable, shows some signs of wear and tear that would be appropriate for the age of the property, and some elements are dated. A modern kitchen, bathroom update and a fresh coat of paint might enhance the desirability and saleability of the property.
The property features a relatively small rear garden, suitable for maintenance, but limited in size in comparison to other houses. The lack of information on the plot size makes it challenging to provide a comprehensive assessment of land size. It’s presented for sale at £510,000. While it’s difficult to give a precise value judgement due to lacking property size information on comparable houses, the price aligns somewhat with other properties in the area, however, an updated assessment with precise property sizes would yield a more certain and conclusive assessment.
Potential buyers should be prepared for some renovation work and should factor in the cost of such updates if they wish to improve the appearance of the property and increase it’s value. However, the location alone, coupled with the proximity to amenities and schools, makes it an attractive prospect for families and those seeking a home in the Lake District.
Therefore, we give this property 5 / 10. *Disclaimer: This is our option and does constitute a recommendation or financial advice. Do your own research. *
- Price
- 7
- Condition
- 6
- Location
- 7
- Land
- 3
- Bedrooms
- 4
- Bathrooms
- 2
- Sqft (est)
- 1,559.37
The heatmap indicates the level of crime in the area. The color of the heatmap indicates the crime severity and recency.
Metrics Year-on-Year
- Average area value
- 603,889.00 £Increased by 40.02 %
- Est sale value
- 779,685.00 £Increased by 46.63 %
- Average area rental value
- 1,340.00 £/moIncreased by 1.44 %
- Est letting value
- 1,559.37 £/moUnchanged by 0.00 %
- Est rental Yield
- 2.66 %Decreased by 27.72 %
- Crime Rate
- 0.00 %
Agent Activity
Thomson Hayton Winkley Estate Agents created the listing.
Nearby Schools
| Name | Type | Ofsted | Distance |
|---|---|---|---|
| Staveley Cofe School | Voluntary Controlled School | Good | 1.13 KM |
| Crosthwaite Cofe School | Voluntary Aided School | Outstanding | 7.69 KM |
| St Oswald'S Cofe Primary School | Voluntary Aided School | Good | 7.91 KM |
| St Martin & St Mary Church Of England Primary School | Voluntary Aided School | Good | 8.58 KM |
| St Cuthberts Catholic Primary School, Windermere | Academy Converter | 8.84 KM |
Images
Nearby Streets
| Name | Average Price | Average Sqft | Distance |
|---|---|---|---|
| Station Lane | £ 320,000 | 0 | 0.00 KM |
| Kent Drive | £ 0 | 0 | 0.00 KM |
| Fairfield Close | £ 230,000 | 0 | 0.00 KM |
| Ashes Lane | £ 0 | 0 | 0.00 KM |
Nearby Transport
| Name | NLC | TLC | Distance |
|---|---|---|---|
| Staveley (Cumbria) | 1977 | SVL | 1.17 KM |
| Burneside (Cumbria) | 1975 | BUD | 7.37 KM |
| Windermere | 1978 | WDM | 8.21 KM |
Nearby Listings
| Address | Price | Type | Score | Distance |
|---|---|---|---|---|
| 3 Seed Howe Cottages, Staveley | £ 510,000 | BUY | 5 / 10 | 0.00 KM |
| Seed Howe, Staveley, LA8 | £ 600,000 | BUY | Unknown | 0.06 KM |
| Danes Road, Staveley, Kendal, Cumbria, LA8 | £ 495,000 | BUY | 7 / 10 | 0.29 KM |
| Danes Road, Garth Row, Kendal | £ 495,000 | BUY | Unknown | 0.33 KM |
| 18 Danes Road, Staveley | £ 525,000 | BUY | 6 / 10 | 0.36 KM |
Nearby Properties
| Address | Price | Distance |
|---|---|---|
| Springdale | £ 465,000 | 0.03 KM |
| Blue Hills | £ 305,000 | 0.05 KM |
| Hartfield | £ 305,000 | 0.05 KM |
| Brantholme | £ 200,000 | 0.15 KM |
| Hillcrest | £ 340,000 | 0.15 KM |