Wilson Avenue, Rochester, ME1
By Greyfox Estate Agents
£ 395,000
Reviews
3 out of 5 stars
Greyfox Estate Agents says ..
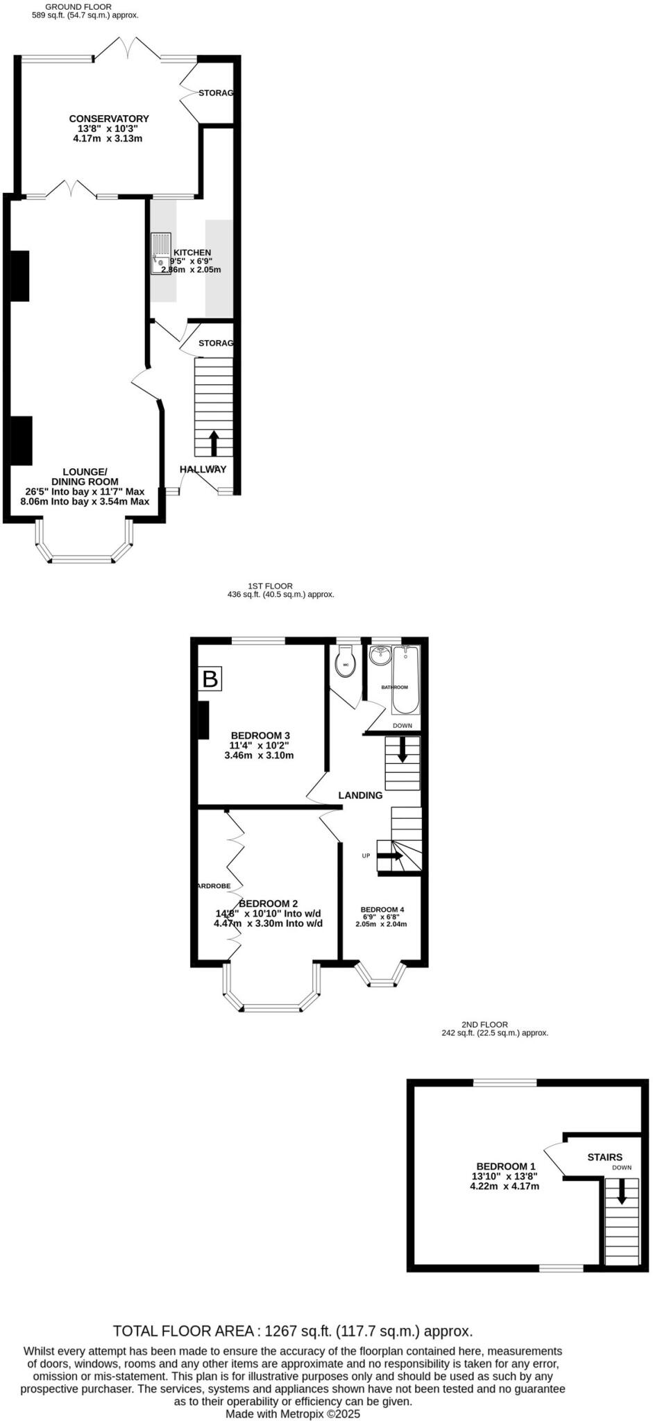
Guide Price £395,000 - £425,000We are pleased to present this beautifully presented four bedroom 1930s family home offering luxury space across three floors. When entering this lovely home it is quite noticeable the current owners have placed a lot of love and care into crea...
Property Oracle says ..
This is a four-bedroom terraced house on Wilson Avenue, Rochester. The property benefits from a conservatory and a garden. While generally well-maintained, some areas, such as the kitchen, could benefit from modernisation. The location is convenient for families, with schools and transportation links nearby. The asking price of £395,000 seems reasonable in the context of the local market, although potential buyers might factor in the cost of updates when considering their offer. The property offers good living space and outdoor space.
Therefore, we give this property 6 / 10. *Disclaimer: This is our option and does constitute a recommendation or financial advice. Do your own research. *
- Price
- 7
- Condition
- 7
- Location
- 7
- Land
- 6
- Bedrooms
- 4
- Bathrooms
- 1
- Sqft (est)
- 96.30
The heatmap indicates the level of crime in the area. The color of the heatmap indicates the crime severity and recency.
Metrics Year-on-Year
- Average area value
- 394,944.00 £Increased by 20.71 %
- Est sale value
- 49,401.90 £Increased by 36.07 %
- Average area rental value
- 1,293.00 £/moDecreased by 22.11 %
- Est letting value
- 96.30 £/moUnchanged by 0.00 %
- Est rental Yield
- 3.93 %Decreased by 35.47 %
- Crime Rate
- 2.00 %Unchanged by 0.00 %
Agent Activity
Greyfox Estate Agents created the listing.
Nearby Schools
| Name | Type | Ofsted | Distance |
|---|---|---|---|
| Balfour Infant School | Community School | Good | 0.46 KM |
| Delce Children'S Centre | Children's Centre | 0.64 KM | |
| Warren Wood Primary Academy | Academy Sponsor Led | Good | 0.72 KM |
| Crest Infant School | Community School | Good | 0.73 KM |
| Balfour Junior School | Academy Converter | Good | 0.83 KM |
Images
Nearby Streets
| Name | Average Price | Average Sqft | Distance |
|---|---|---|---|
| Downer Court | £ 0 | 0 | 0.00 KM |
| Anchor Road | £ 365,000 | 0 | 0.00 KM |
| Frobisher Gardens | £ 0 | 0 | 0.00 KM |
| Leander Road | £ 0 | 0 | 0.00 KM |
| Mozart Court | £ 0 | 0 | 0.00 KM |
Nearby Transport
| Name | NLC | TLC | Distance |
|---|---|---|---|
| Chatham | 5199 | CTM | 1.85 KM |
| Rochester | 5203 | RTR | 2.10 KM |
| Strood (Kent) | 5191 | SOO | 3.55 KM |
| Gillingham (Kent) | 5169 | GLM | 4.77 KM |
| Cuxton | 5201 | CUX | 5.58 KM |
Nearby Listings
| Address | Price | Type | Score | Distance |
|---|---|---|---|---|
| Wilson Avenue, Rochester, ME1 | £ 395,000 | BUY | 6 / 10 | 0.00 KM |
| Wilson Avenue, Rochester | £ 350,000 | BUY | Unknown | 0.00 KM |
| Wilson Avenue, Rochester, Kent | £ 264,500 | BUY | 7 / 10 | 0.00 KM |
| Wilson Avenue, Rochester, Kent | £ 400,000 | BUY | 6 / 10 | 0.00 KM |
| Wilson Avenue, Rochester, Kent. ME1 | £ 420,000 | BUY | Unknown | 0.09 KM |
Nearby Properties
| Address | Price | Distance |
|---|---|---|
| 284 Wilson Avenue | £ 255,000 | 0.01 KM |
| 297 Wilson Avenue | £ 270,000 | 0.01 KM |
| 304 Wilson Avenue | £ 113,000 | 0.01 KM |
| 302 Wilson Avenue | £ 175,000 | 0.01 KM |
| 287 Wilson Avenue | £ 610,000 | 0.01 KM |