Brookley Road, Brockenhurst, SO42
By Fells Gulliver
£ 995,000
Reviews
4 out of 5 stars
Fells Gulliver says ..
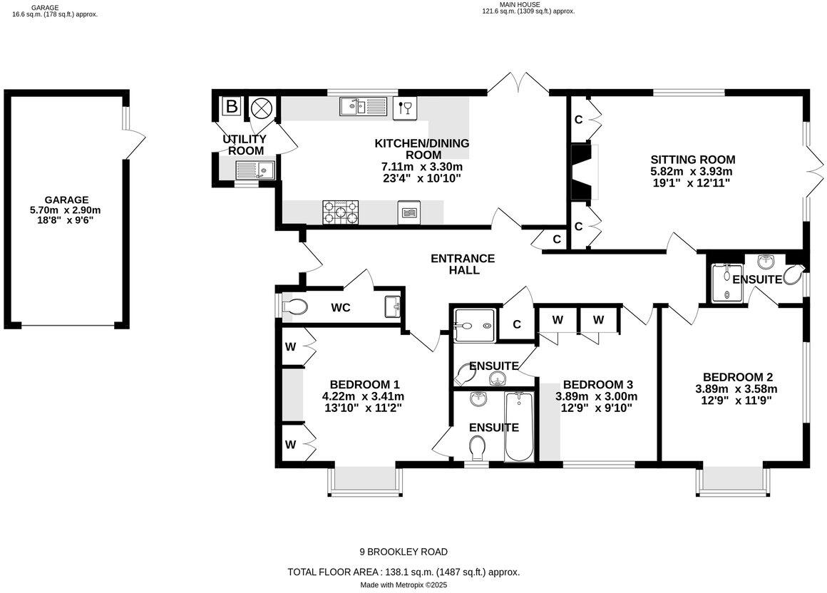
Located within the centre of the popular new New Forest village of Brockenhurst, this spacious and well presented detached bungalow benefits from all three double bedrooms having en-suite facilities, secluded south/west facing garden, detached garage, driveway parking and is offered for sale w...
Property Oracle says ..
This detached bungalow is located on Brookley Road in Brockenhurst, a village in the New Forest National Park in Hampshire, England. The property benefits from being close to Brockenhurst train station, providing convenient access to other parts of the country. Additionally, there are several well-regarded schools nearby, including Brockenhurst College and Brockenhurst Church of England Primary School. The property itself appears to be well-maintained and in good condition. Images show a modern kitchen and bathrooms, a spacious garden, and a detached garage. The list price is significantly higher than the average house price in the area, but this is likely due to the property’s size, condition, and desirable location within the New Forest National Park. The lack of plot size data in the listing makes it difficult to fully assess the land value.
Therefore, we give this property 8 / 10. *Disclaimer: This is our option and does constitute a recommendation or financial advice. Do your own research. *
- Price
- 7
- Condition
- 9
- Location
- 10
- Land
- 8
- Bedrooms
- 3
- Bathrooms
- 3
- Sqft (est)
- 1,487.00
The heatmap indicates the level of crime in the area. The color of the heatmap indicates the crime severity and recency.
Metrics Year-on-Year
- Average area value
- 471,111.00 £Increased by 12.11 %
- Est sale value
- 801,493.00 £Increased by 34.75 %
- Average area rental value
- 1,283.00 £/moDecreased by 19.91 %
- Est letting value
- 1,487.00 £/moUnchanged by 0.00 %
- Est rental Yield
- 3.27 %Decreased by 28.45 %
- Crime Rate
- 100.00 %Unchanged by 0.00 %
Agent Activity
Fells Gulliver created the listing.
Nearby Schools
| Name | Type | Ofsted | Distance |
|---|---|---|---|
| Brockenhurst College | Further Education | Good | 0.52 KM |
| Brockenhurst Church Of England Primary School & Pre-School | Voluntary Controlled School | Good | 0.56 KM |
| Seedlings Children'S Centre | Children's Centre Linked Site | 0.61 KM | |
| Coxlease School | Other Independent Special School | Outstanding | 4.48 KM |
| Hill House School | Other Independent Special School | Outstanding | 4.60 KM |
Images
Nearby Streets
| Name | Average Price | Average Sqft | Distance |
|---|---|---|---|
| Station Approach | £ 0 | 0 | 0.00 KM |
| Sutton Place | £ 0 | 0 | 0.00 KM |
| Silver Ferns | £ 0 | 0 | 0.00 KM |
| North Road | £ 662,500 | 0 | 0.00 KM |
| Back Lane | £ 1,600,000 | 0 | 0.00 KM |
Nearby Transport
| Name | NLC | TLC | Distance |
|---|---|---|---|
| Brockenhurst | 5886 | BCU | 0.20 KM |
| Sway | 5884 | SWY | 5.52 KM |
| Lymington Town | 5887 | LYT | 7.58 KM |
| Lymington Pier | 5892 | LYP | 8.30 KM |
| Beaulieu Road | 5890 | BEU | 8.62 KM |
Nearby Listings
| Address | Price | Type | Score | Distance |
|---|---|---|---|---|
| Brookley Road, Brockenhurst, SO42 | £ 995,000 | BUY | 8 / 10 | 0.00 KM |
| Brookley Road, Brockenhurst, SO42 | £ 560,000 | BUY | 7 / 10 | 0.07 KM |
| Connaught Place, Brockenhurst, Hampshire, SO42 | £ 635,000 | BUY | 6 / 10 | 0.07 KM |
| Station Approach, Brockenhurst, Hampshire, SO42 | £ 595,000 | BUY | 7 / 10 | 0.07 KM |
| Hartwood Lofts, Connaught Place, Brockenhurst, Hampshire, SO42 | £ 595,000 | BUY | 7 / 10 | 0.07 KM |
Nearby Properties
| Address | Price | Distance |
|---|---|---|
| 21 Brookley Road | £ 125,000 | 0.01 KM |
| 36 Brookley Road | £ 510,000 | 0.01 KM |
| 32 Brookley Road | £ 360,000 | 0.01 KM |
| 8a Brookley Road | £ 225,000 | 0.01 KM |
| 7 Brookley Road | £ 375,000 | 0.01 KM |