EA Ben Cade says ..
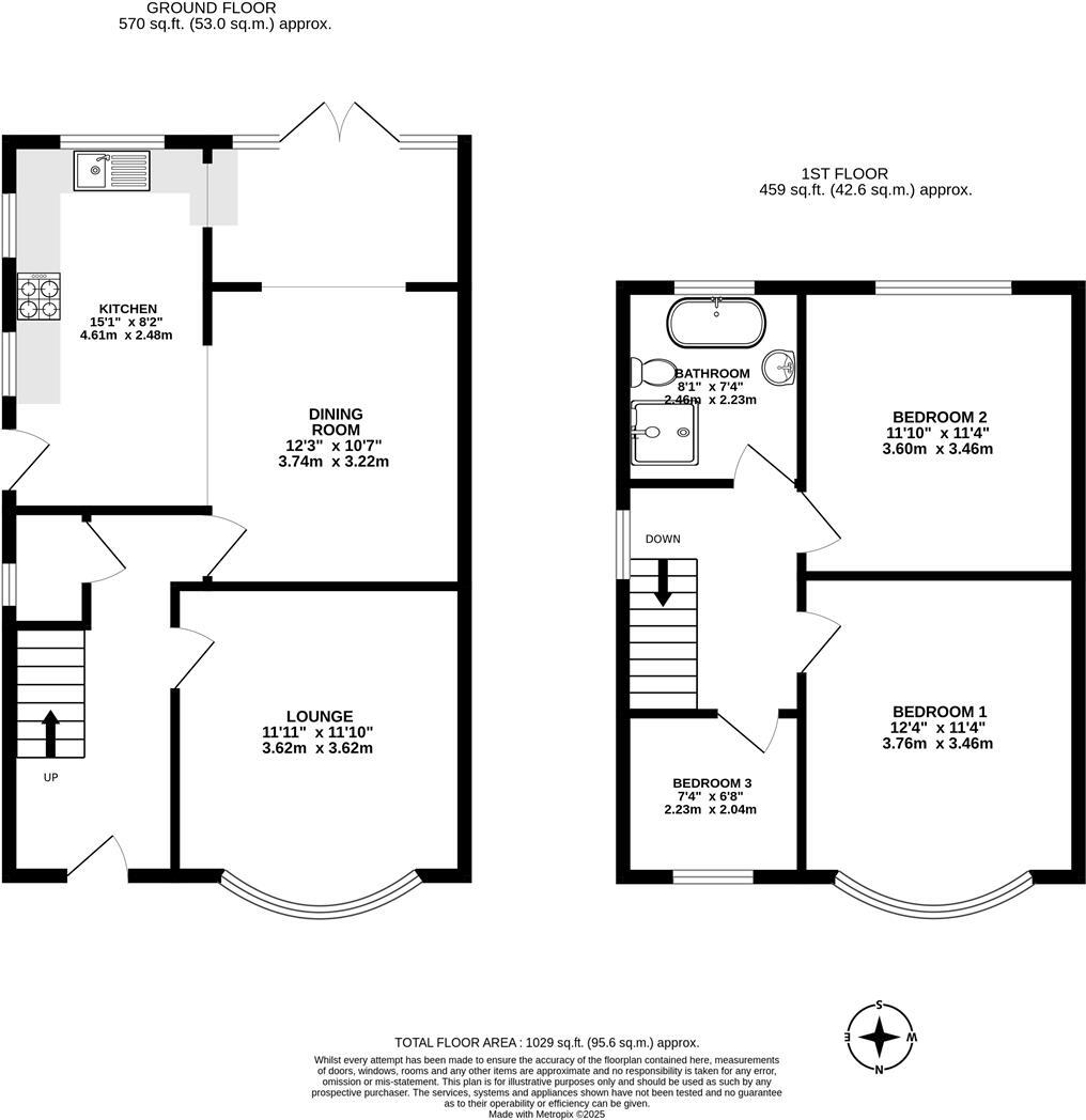
Completely renovated bay fronted three bed semi detached house on Lancaster Road, sat on a superb corner plot with a south facing garden this is close to schools, amenities and ready to move straight into. On the ground floor there is a lovely entrance hall with parquet flooring, cozy l...
Property Oracle says ..
This is a three-bedroom semi-detached property on Lancaster Road, Ashby, Scunthorpe. The house benefits from recent internal renovations, including a modern kitchen and bathroom. While the garden requires some attention, it provides outdoor space. The property is located within a reasonable distance of schools and transportation links. The asking price of £225,000 appears fair given the condition and location, aligning with the average price per square foot in the area. It would be ideal for a family. The property is listed with EA Ben Cade.
Therefore, we give this property 7 / 10. *Disclaimer: This is our option and does constitute a recommendation or financial advice. Do your own research. *
- Price
- 7
- Condition
- 8
- Location
- 7
- Land
- 6
- Bedrooms
- 3
- Bathrooms
- 1
- Sqft (est)
- 815.04
The heatmap indicates the level of crime in the area. The color of the heatmap indicates the crime severity and recency.
Metrics Year-on-Year
- Average area value
- 235,000.00 £Increased by 7.42 %
- Est sale value
- 246,142.08 £Increased by 43.13 %
- Average area rental value
- 1,149.00 £/moDecreased by 3.45 %
- Est letting value
- 815.04 £/moUnchanged by 0.00 %
- Est rental Yield
- 5.87 %Decreased by 10.11 %
- Crime Rate
- 1.00 %Unchanged by 0.00 %
Agent Activity
EA Ben Cade created the listing.
Nearby Schools
| Name | Type | Ofsted | Distance |
|---|---|---|---|
| Oakfield Primary School | Community School | Requires improvement | 0.17 KM |
| Ashby Children'S Centre | Children's Centre | 0.75 KM | |
| Lincoln Gardens Primary School | Community School | Good | 0.87 KM |
| St Bede'S Catholic Voluntary Academy | Academy Converter | Good | 0.97 KM |
| Willoughby Road Primary Academy | Academy Sponsor Led | Good | 1.28 KM |
Images
Nearby Streets
| Name | Average Price | Average Sqft | Distance |
|---|---|---|---|
| Grassfields Close | £ 189,995 | 0 | 0.00 KM |
| Hornbeam Avenue | £ 0 | 0 | 0.00 KM |
| St. Augustine Crescent | £ 0 | 0 | 0.00 KM |
| Brocklesby Court | £ 0 | 0 | 0.00 KM |
| Acacia Court | £ 70,000 | 0 | 0.00 KM |
Nearby Transport
| Name | NLC | TLC | Distance |
|---|---|---|---|
| Scunthorpe | 6456 | SCU | 2.48 KM |
| Althorpe | 6532 | ALP | 9.24 KM |
Nearby Listings
| Address | Price | Type | Score | Distance |
|---|---|---|---|---|
| Lancaster Road, Scunthorpe | £ 225,000 | BUY | 7 / 10 | 0.00 KM |
| Lancaster Road, Scunthorpe | £ 210,000 | BUY | 7 / 10 | 0.05 KM |
| Lancaster Road, Scunthorpe | £ 199,950 | BUY | 7 / 10 | 0.06 KM |
| Lancaster Road, Scunthorpe | £ 180,000 | BUY | 7 / 10 | 0.07 KM |
| Rochdale Road, Scunthorpe | £ 189,000 | BUY | 7 / 10 | 0.08 KM |
Nearby Properties
| Address | Price | Distance |
|---|---|---|
| 85 Lancaster Road | £ 148,000 | 0.06 KM |
| 89 Lancaster Road | £ 127,000 | 0.06 KM |
| 73 Lancaster Road | £ 134,950 | 0.06 KM |
| 67 Lancaster Road | £ 173,000 | 0.06 KM |
| 10 Harrington Place | £ 129,000 | 0.12 KM |