Luscombe Maye says ..
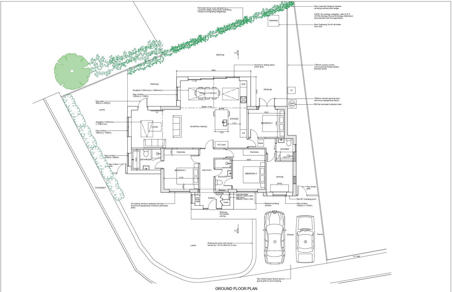
A detached two bedroom bungalow with planning permission to extend and modernise to create a spacious three bedroom home with garage and parking within the village
Property Oracle says ..
This is a detached bungalow in Malborough, near Salcombe & Thurlestone, in South Hams, Devon. The property has 3 bedrooms and 1 bathroom. It has a large plot size of 125,039.51 sqft. The property is in need of some renovation. The bathroom and some of the rooms look dated. There is some moss on the roof and general wear and tear throughout. The kitchen has been modernised. The property has a good sized garden and a garage. The property is located within 0.15 KM of Malborough With South Huish Church Of England Primary School which has a ‘Good’ Ofsted rating. The property is listed for £395,000. The average price in the area is £504,375. The average price per sqft is £548. This property represents fair value for money, given its location and size.
Therefore, we give this property 6 / 10. *Disclaimer: This is our option and does constitute a recommendation or financial advice. Do your own research. *
- Price
- 6
- Condition
- 5
- Location
- 7
- Land
- 7
- Bedrooms
- 3
- Bathrooms
- 1
- Sqft (est)
- 125,039.51
The heatmap indicates the level of crime in the area. The color of the heatmap indicates the crime severity and recency.
Metrics Year-on-Year
- Average area value
- 504,375.00 £Decreased by 47.90 %
- Est sale value
- 68,521,651.48 £Decreased by 36.35 %
- Average area rental value
- 1,350.00 £/moDecreased by 5.40 %
- Est letting value
- 125,039.51 £/moUnchanged by 0.00 %
- Est rental Yield
- 3.21 %Increased by 81.36 %
- Crime Rate
- 41.00 %Unchanged by 0.00 %
Agent Activity
Luscombe Maye created the listing.
Nearby Schools
| Name | Type | Ofsted | Distance |
|---|---|---|---|
| Malborough With South Huish Church Of England Primary School | Voluntary Controlled School | Good | 0.15 KM |
| Salcombe Church Of England Primary School | Academy Converter | Good | 4.22 KM |
| West Alvington Church Of England Academy | Academy Converter | Good | 4.67 KM |
| Kingsbridge Academy | Academy Converter | 5.31 KM | |
| Thurlestone All Saints Church Of England Academy | Academy Converter | Good | 5.68 KM |
Images
Nearby Streets
| Name | Average Price | Average Sqft | Distance |
|---|---|---|---|
| Well Hill | £ 0 | 0 | 0.00 KM |
| Stable Court | £ 0 | 0 | 0.00 KM |
| Rookhouse Lane | £ 0 | 0 | 0.00 KM |
Nearby Listings
| Address | Price | Type | Score | Distance |
|---|---|---|---|---|
| Luckhams Lane, Malborough | £ 395,000 | BUY | 6 / 10 | 0.00 KM |
| Lower Town, Malborough | £ 825,000 | BUY | 7 / 10 | 0.11 KM |
| Moorview, Malborough | £ 350,000 | BUY | Unknown | 0.17 KM |
| Lower Town, Malborough, near Salcombe | £ 325,000 | BUY | 8 / 10 | 0.18 KM |
| Lower Town, Malborough, near Salcombe | £ 250,000 | BUY | Unknown | 0.18 KM |
Nearby Properties
| Address | Price | Distance |
|---|---|---|
| Myrtle Cottage | £ 500,000 | 0.07 KM |
| Driftwood | £ 325,000 | 0.07 KM |
| Church Gate Cottage | £ 275,000 | 0.07 KM |
| Eddystone Cottage | £ 200,000 | 0.07 KM |
| West End Cottage | £ 300,000 | 0.07 KM |