Foxtons says ..
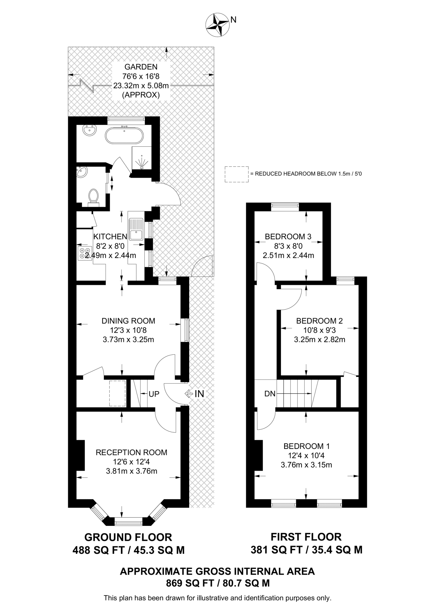
Well-presented throughout, this lovely 3 bedroom house benefits from 2 spacious reception rooms, well-equipped kitchen, generously sized bedrooms, with additional loft room and a private garden.
Property Oracle says ..
Therefore, we give this property 6 / 10. *Disclaimer: This is our option and does constitute a recommendation or financial advice. Do your own research. *
- Price
- 5
- Condition
- 6
- Location
- 8
- Land
- 7
- Bedrooms
- 3
- Bathrooms
- 1
- Sqft (est)
- 868.65
- Lot (est)
- 868.65
The heatmap indicates the level of crime in the area. The color of the heatmap indicates the crime severity and recency.
Metrics Year-on-Year
- Average area value
- 428,077.00 £Increased by 11.32 %
- Est sale value
- 615,004.20 £Increased by 124.76 %
- Average area rental value
- 1,801.00 £/moIncreased by 9.82 %
- Est letting value
- 1,737.30 £/moIncreased by 100.00 %
- Est rental Yield
- 5.05 %Decreased by 1.37 %
- Crime Rate
- 4.00 %Unchanged by 0.00 %
from 384,549.00 £
from 273,624.75 £
from 1,640.00 £/mo
from 868.65 £/mo
from 5.12 %
from 4.00 %
Agent Activity
Foxtons created the listing.
Nearby Schools
| Name | Type | Ofsted | Distance |
|---|---|---|---|
| Purley Oaks Primary School | Community School | Good | 0.51 KM |
| Purley Oaks Children'S Centre | Children's Centre Linked Site | 0.54 KM | |
| St Giles School | Community Special School | Good | 0.77 KM |
| Regina Coeli Catholic Primary School | Voluntary Aided School | Good | 0.78 KM |
| Harris Academy Purley | Academy Sponsor Led | Outstanding | 0.87 KM |
Images
Nearby Streets
| Name | Average Price | Average Sqft | Distance |
|---|---|---|---|
| Allenby Avenue | £ 0 | 0 | 0.00 KM |
| Magdala Road | £ 0 | 0 | 0.00 KM |
| Joshua Close | £ 0 | 0 | 0.00 KM |
| White Hill | £ 0 | 0 | 0.00 KM |
| Heath Close | £ 390,000 | 0 | 0.00 KM |
Nearby Transport
| Name | NLC | TLC | Distance |
|---|---|---|---|
| Purley Oaks | 5430 | PUO | 0.56 KM |
| Sanderstead | 5433 | SNR | 0.85 KM |
| South Croydon | 5410 | SCY | 1.47 KM |
| Riddlesdown | 5432 | RDD | 2.15 KM |
| Purley | 5379 | PUR | 2.17 KM |
Nearby Listings
| Address | Price | Type | Score | Distance |
|---|---|---|---|---|
| Churchill Road, South Croydon, CR2 | £ 500,000 | BUY | 6 / 10 | 0.00 KM |
| Churchill Road, CR2 | £ 450,000 | BUY | 6 / 10 | 0.03 KM |
| Churchill Road, South Croydon | £ 450,000 | BUY | 7 / 10 | 0.03 KM |
| Churchill Road, South Croydon, CR2 6HE | £ 430,000 | BUY | 7 / 10 | 0.05 KM |
| Churchill Road, South Croydon | £ 430,000 | BUY | 7 / 10 | 0.06 KM |
Nearby Properties
| Address | Price | Distance |
|---|---|---|
| 16 Churchill Road | £ 260,000 | 0.02 KM |
| 36 Churchill Road | £ 262,640 | 0.02 KM |
| 32 Churchill Road | £ 435,000 | 0.02 KM |
| 56 Churchill Road | £ 435,000 | 0.02 KM |
| 38 Churchill Road | £ 325,000 | 0.02 KM |