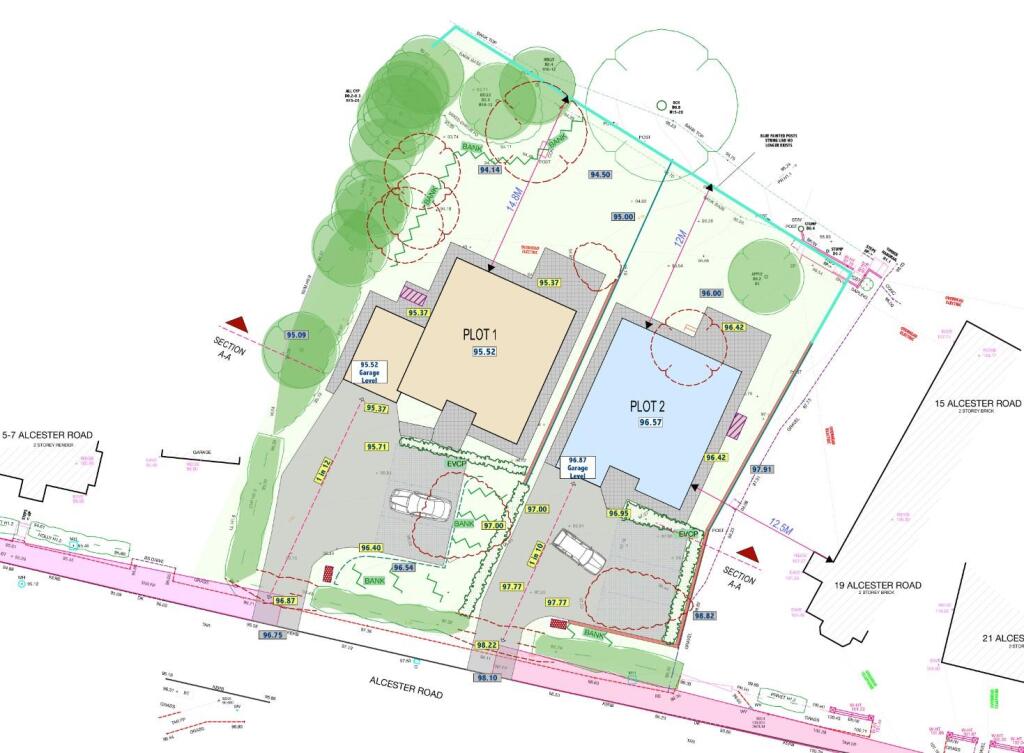
Plot 1 Finstall Gardens, Alcester Road, Finstall, Worcestershire, B60 1EL
By Allan Morris
£ 865,000
Reviews
4 out of 5 stars
Allan Morris says ..
'Coming Soon, Register Your Interest, Estimated Completion December 2025' Newly built freehold detached house in a desirable village, convenient for amenities of Aston Fields and facilities of Bromsgrove. Depending on stage of build, buyer will have the opportunity to bespoke fit ...
Property Oracle says ..
The property is a new build detached house located in Finstall, Worcestershire. It has 5 bedrooms and 2 bathrooms. The location is good, with easy access to local schools and transport links. The property appears to be in excellent condition, and benefits from a good sized garden. The list price is slightly higher than the average price per square foot for the area, but this is likely due to the property’s size, condition, and location. Overall, this is a desirable property in a sought-after location.
Therefore, we give this property 8 / 10. *Disclaimer: This is our option and does constitute a recommendation or financial advice. Do your own research. *
- Price
- 7
- Condition
- 10
- Location
- 9
- Land
- 8
- Bedrooms
- 5
- Bathrooms
- 2
- Sqft (est)
- 250.00
The heatmap indicates the level of crime in the area. The color of the heatmap indicates the crime severity and recency.
Metrics Year-on-Year
- Average area value
- 416,650.00 £Decreased by 15.87 %
- Est sale value
- 84,750.00 £Decreased by 19.29 %
- Average area rental value
- 2,750.00 £/moIncreased by 103.70 %
- Est letting value
- 500.00 £/moIncreased by 100.00 %
- Est rental Yield
- 7.92 %Increased by 142.20 %
- Crime Rate
- 17.00 %Unchanged by 0.00 %
Agent Activity
Allan Morris created the listing.
Nearby Schools
| Name | Type | Ofsted | Distance |
|---|---|---|---|
| Rigby Hall Day Special School | Community Special School | Good | 1.45 KM |
| Aston Fields Middle School | Community School | Outstanding | 1.66 KM |
| Finstall First School | Community School | Outstanding | 1.96 KM |
| North Bromsgrove High School | Community School | Requires improvement | 2.64 KM |
| Tardebigge Cofe First School | Voluntary Aided School | Outstanding | 2.73 KM |
Images
Nearby Streets
| Name | Average Price | Average Sqft | Distance |
|---|---|---|---|
| Regents Park Road | £ 220,000 | 0 | 0.00 KM |
| St Godwald's Crescent | £ 320,000 | 0 | 0.00 KM |
| St. Godwald's Road | £ 580,000 | 0 | 0.00 KM |
| Chaucer Road | £ 0 | 0 | 0.00 KM |
| London Lane | £ 550,000 | 0 | 0.00 KM |
Nearby Transport
| Name | NLC | TLC | Distance |
|---|---|---|---|
| Bromsgrove | 4715 | BMV | 2.02 KM |
| Barnt Green | 1096 | BTG | 5.48 KM |
| Alvechurch | 1198 | ALV | 7.21 KM |
| Longbridge | 1110 | LOB | 9.20 KM |
| Redditch | 1208 | RDC | 9.82 KM |
Nearby Listings
| Address | Price | Type | Score | Distance |
|---|---|---|---|---|
| Plot 1 Finstall Gardens, Alcester Road, Finstall, Worcestershire, B60 1EL | £ 865,000 | BUY | 8 / 10 | 0.00 KM |
| Plot 2 Finstall Gardens, Alcester Road, Finstall, Worcestershire, B60 1EL | £ 825,000 | BUY | 8 / 10 | 0.03 KM |
| Finstall Road, Finstall, Bromsgrove B60 3DD | £ 475,000 | BUY | 6 / 10 | 0.08 KM |
| Alcester Road, Finstall, Bromsgrove. B60 1EW | £ 250,000 | BUY | Unknown | 0.22 KM |
| Finstall Road, Finstall, B60 | £ 850,000 | BUY | 7 / 10 | 0.23 KM |
Nearby Properties
| Address | Price | Distance |
|---|---|---|
| 21 Alcester Road | £ 223,000 | 0.02 KM |
| 23 Alcester Road | £ 240,000 | 0.02 KM |
| 92 Finstall Road | £ 200,000 | 0.09 KM |
| 100 Finstall Road | £ 640,000 | 0.09 KM |
| 130 Finstall Road | £ 195,000 | 0.09 KM |