HO
Ferndale Road, Exeter, Devon, EX2
By Homewise
£ 100,500
Reviews
2 out of 5 stars
Homewise says ..
Guide price for a Home for Life Lifetime Lease for OVER 60s tailored to your personal circumstances and requirements. Your price may vary. OVER 60S could benefit from SAVINGS of up to 59% from the market value with a one-off payment for a Lifetime Lease on this property. £10...
Property Oracle says ..
Therefore, we give this property 5 / 10. *Disclaimer: This is our option and does constitute a recommendation or financial advice. Do your own research. *
- Price
- 8
- Condition
- 5
- Location
- 7
- Land
- 1
- Bedrooms
- 1
- Bathrooms
- 1
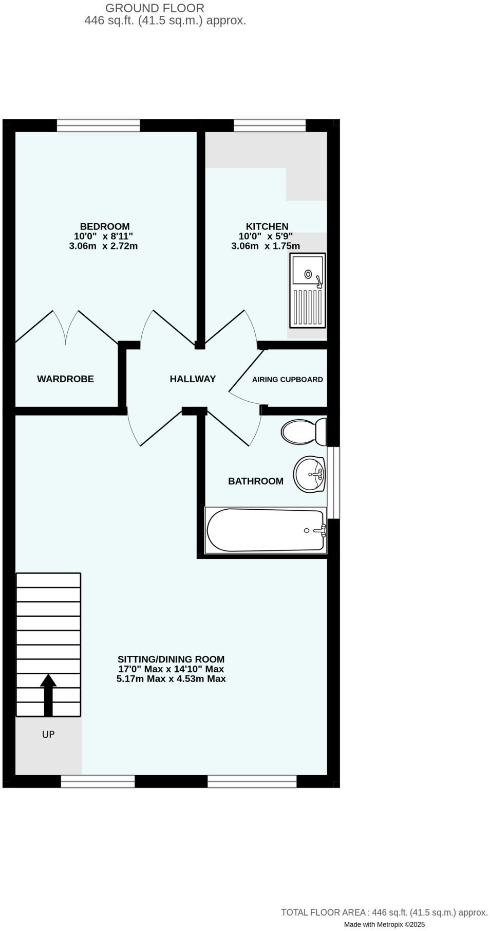
- Sqft (est)
- 398.75
The heatmap indicates the level of crime in the area. The color of the heatmap indicates the crime severity and recency.
Metrics Year-on-Year
- Average area value
- 421,780.00 £Increased by 21.83 %
- Est sale value
- 224,895.00 £Increased by 75.70 %
- Average area rental value
- 1,390.00 £/moDecreased by 6.33 %
- Est letting value
- 398.75 £/moUnchanged by 0.00 %
- Est rental Yield
- 3.95 %Decreased by 23.15 %
- Crime Rate
- 2.00 %Unchanged by 0.00 %
from 346,205.00 £
from 127,998.75 £
from 1,484.00 £/mo
from 398.75 £/mo
from 5.14 %
from 2.00 %
Agent Activity
Homewise created the listing.
Nearby Schools
| Name | Type | Ofsted | Distance |
|---|---|---|---|
| St Thomas Primary School | Academy Converter | Good | 0.28 KM |
| West Exe Nursery School | Local Authority Nursery School | Outstanding | 0.52 KM |
| Montgomery Primary School | Foundation School | Good | 0.62 KM |
| West Exe Children'S Centre | Children's Centre | 0.64 KM | |
| West Exe School | Academy Sponsor Led | 0.76 KM |
Images
Nearby Streets
| Name | Average Price | Average Sqft | Distance |
|---|---|---|---|
| Waterloo Road | £ 0 | 0 | 0.00 KM |
| St Edmunds Court | £ 0 | 0 | 0.00 KM |
| Clarence Road | £ 0 | 0 | 0.00 KM |
| Edwin Road | £ 0 | 0 | 0.00 KM |
| Shelley Close | £ 375,000 | 0 | 0.00 KM |
Nearby Transport
| Name | NLC | TLC | Distance |
|---|---|---|---|
| Exeter St Thomas | 3414 | EXT | 0.45 KM |
| Exeter Central | 5755 | EXC | 1.66 KM |
| Exeter St David'S | 3410 | EXD | 1.74 KM |
| St James Park (Exeter) | 5751 | SJP | 2.87 KM |
| Polsloe Bridge | 3422 | POL | 4.75 KM |
Nearby Listings
| Address | Price | Type | Score | Distance |
|---|---|---|---|---|
| Ferndale Road, Exeter, Devon, EX2 | £ 100,500 | BUY | 5 / 10 | 0.00 KM |
| Ferndale Road, Exeter, Devon | £ 150,000 | BUY | 6 / 10 | 0.00 KM |
| Sanford Place, Exeter | £ 260,000 | BUY | Unknown | 0.04 KM |
| Regent Street, St. Thomas, EX2 | £ 270,000 | BUY | 6 / 10 | 0.10 KM |
| Chieftain Way, St Thomas, Exeter | £ 425,000 | BUY | 8 / 10 | 0.10 KM |
Nearby Properties
| Address | Price | Distance |
|---|---|---|
| 22 Ferndale Road | £ 205,000 | 0.01 KM |
| 3 Ferndale Road | £ 150,000 | 0.01 KM |
| 13 Ferndale Road | £ 232,500 | 0.01 KM |
| 30 Ferndale Road | £ 16,000 | 0.01 KM |
| 37 Ferndale Road | £ 115,000 | 0.01 KM |