Keith Ashton says ..
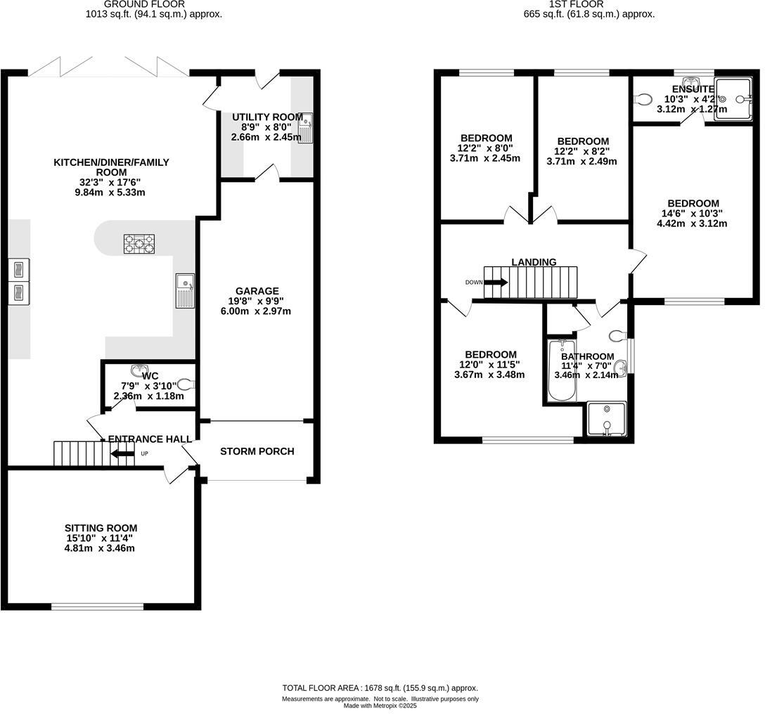
In the ever popular turning of 'Glovers Field', in the semi-rural village of Kelvedon Hatch is this well-presented, four DOUBLE bedroom semi-detached family home which has a good-sized rear garden and excellent off-street parking, including an integrated garage. The property has been extended t...
Property Oracle says ..
Therefore, we give this property 7 / 10. *Disclaimer: This is our option and does constitute a recommendation or financial advice. Do your own research. *
- Price
- 8
- Condition
- 8
- Location
- 7
- Land
- 7
- Bedrooms
- 4
- Bathrooms
- 2
- Sqft (est)
- 1,645.00
The heatmap indicates the level of crime in the area. The color of the heatmap indicates the crime severity and recency.
Metrics Year-on-Year
- Average area value
- 547,000.00 £Decreased by 8.72 %
- Est sale value
- 634,970.00 £Decreased by 5.62 %
- Average area rental value
- 1,401.00 £/moDecreased by 1.27 %
- Est letting value
- 0.00 £/mo
- Est rental Yield
- 3.07 %Increased by 8.10 %
- Crime Rate
- 32.00 %Unchanged by 0.00 %
from 599,278.00 £
from 672,805.00 £
from 1,419.00 £/mo
from 0.00 £/mo
from 2.84 %
from 32.00 %
Agent Activity
Keith Ashton marked this listing as sold.
Keith Ashton created the listing.
Nearby Schools
| Name | Type | Ofsted | Distance |
|---|---|---|---|
| Kelvedon Hatch Community Primary School | Community School | Good | 1.06 KM |
| Doddinghurst Church Of England Junior School | Academy Converter | 1.83 KM | |
| Doddinghurst Infant School | Community School | Outstanding | 1.97 KM |
| Bentley St Paul'S Church Of England Voluntary Aided Primary School | Voluntary Aided School | Good | 2.21 KM |
| Larchwood Primary School | Academy Sponsor Led | Outstanding | 3.39 KM |
Images
Nearby Streets
| Name | Average Price | Average Sqft | Distance |
|---|---|---|---|
| School Road | £ 0 | 0 | 0.00 KM |
| Dagwood Lane | £ 0 | 0 | 0.00 KM |
Nearby Transport
| Name | NLC | TLC | Distance |
|---|---|---|---|
| Brentwood | 6872 | BRE | 6.13 KM |
| Shenfield | 6888 | SNF | 6.77 KM |
| Harold Wood | 6879 | HRO | 9.49 KM |
Nearby Listings
| Address | Price | Type | Score | Distance |
|---|---|---|---|---|
| Glovers Field, Kelvedon Hatch | £ 650,000 | BUY | 7 / 10 | 0.00 KM |
| Blackmore Road, Kelvedon Hatch, Brentwood | £ 700,000 | BUY | 8 / 10 | 0.07 KM |
| Glovers Field, Kelvedon Hatch, Brentwood | £ 650,000 | BUY | 7 / 10 | 0.10 KM |
| Blackmore Road, Kelvedon Hatch, Brentwood, Essex, CM15 | £ 800,000 | BUY | 7 / 10 | 0.11 KM |
| Glovers Field, Kelvedon Hatch, Brentwood | £ 600,000 | BUY | 6 / 10 | 0.11 KM |
Nearby Properties
| Address | Price | Distance |
|---|---|---|
| 37 Glovers Field | £ 300,000 | 0.10 KM |
| 34 Glovers Field | £ 395,000 | 0.10 KM |
| 85 Glovers Field | £ 139,995 | 0.10 KM |
| 49 Glovers Field | £ 370,000 | 0.10 KM |
| 58 Glovers Field | £ 355,000 | 0.10 KM |