MS
Whitehall Lane, Grindleton, Clitheroe BB7
By MSW Hewetsons
£ 4,650,000
Reviews
4 out of 5 stars
MSW Hewetsons says ..
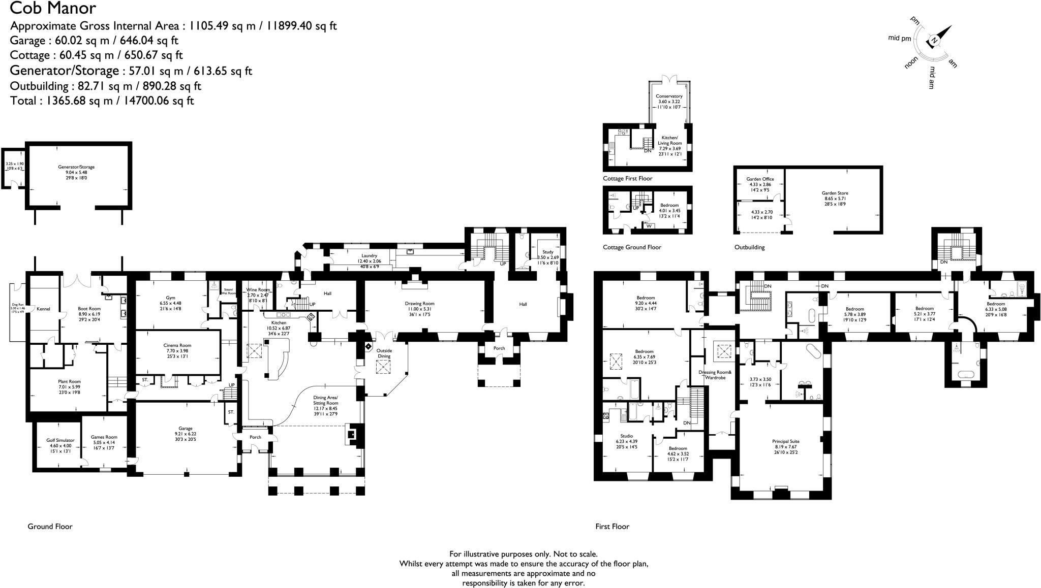
Located in an exceptional elevated private rural position with truly magnificent uninterrupted long-distance views across the Ribble Valley to Pendle Hill. Situated within private grounds of approximately 7 acres with beautifully designed and maintained mature gardens.
Property Oracle says ..
Therefore, we give this property 8 / 10. *Disclaimer: This is our option and does constitute a recommendation or financial advice. Do your own research. *
- Price
- 6
- Condition
- 9
- Location
- 9
- Land
- 10
- Bedrooms
- 7
- Bathrooms
- 6
The heatmap indicates the level of crime in the area. The color of the heatmap indicates the crime severity and recency.
Metrics Year-on-Year
- Average area value
- 629,996.00 £Increased by 71.74 %
- Average area rental value
- 949.00 £/moIncreased by 5.44 %
- Est rental Yield
- 1.81 %Decreased by 38.44 %
- Crime Rate
- 0.00 %
from 366,829.00 £
from 900.00 £/mo
from 2.94 %
from 0.00 %
Agent Activity
MSW Hewetsons created the listing.
Nearby Schools
| Name | Type | Ofsted | Distance |
|---|---|---|---|
| Grindleton Church Of England Voluntary Aided Primary School | Voluntary Aided School | Good | 1.69 KM |
| Bowland High | Academy Converter | Outstanding | 2.87 KM |
| Moorland School Limited | Other Independent School | 3.54 KM | |
| Chatburn Church Of England Primary School | Voluntary Aided School | Outstanding | 3.56 KM |
| Waddington And West Bradford Church Of England Voluntary Aided Primary School | Voluntary Aided School | Good | 3.61 KM |
Images
Nearby Streets
| Name | Average Price | Average Sqft | Distance |
|---|---|---|---|
| Cross Fold | £ 269,950 | 0 | 0.00 KM |
| Ribble Avenue | £ 0 | 0 | 0.00 KM |
Nearby Transport
| Name | NLC | TLC | Distance |
|---|---|---|---|
| Clitheroe | 2574 | CLH | 4.56 KM |
Nearby Listings
| Address | Price | Type | Score | Distance |
|---|---|---|---|---|
| Whitehall Lane, Grindleton, Clitheroe BB7 | £ 4,650,000 | BUY | 8 / 10 | 0.00 KM |
| Grindleton, Lancashire, BB7 | £ 4,250,000 | BUY | 8 / 10 | 0.70 KM |
| Grindleton, Clitheroe, BB7 | £ 850,000 | BUY | 7 / 10 | 0.89 KM |
| Cross Fold, Grindleton, Clitheroe, BB7 4RQ | £ 269,950 | BUY | 6 / 10 | 1.12 KM |
| Shaw Terrace, Grindleton, Clitheroe, Lancashire, BB7 | £ 169,950 | BUY | 7 / 10 | 1.20 KM |
Nearby Properties
| Address | Price | Distance |
|---|---|---|
| Gatesgarth | £ 265,000 | 0.18 KM |
| 2 Highcliffe Greaves | £ 210,500 | 0.68 KM |
| 1 Highcliffe Greaves | £ 360,000 | 0.68 KM |
| Beech Cottage | £ 217,500 | 0.94 KM |
| 1 Stonehill Cottages | £ 246,000 | 0.96 KM |