Waymark Property says ..
A fantastic opportunity to purchase this stunning three bedroom detached thatched cottage which is located in the sought after village of Buckland in Oxfordshire. The property dates back to the 17th century, is grade II listed and is bursting with character and period features throughout. The ...
Property Oracle says ..
This charming three-bedroom thatched cottage in the sought-after village of Buckland, Oxfordshire, offers a unique blend of period features and modern convenience. The property’s grade II listed status is a testament to its historical significance, which enhances its value and attractiveness to potential buyers seeking a home with character. The property is conveniently located near the highly rated Buckland Church of England Primary School, making it a perfect choice for families. The interior features exposed beams and stonework which showcase the property’s charm and history. The garden with the pond adds to the property’s appeal. However, more information regarding the size of the plot, along with details on the property’s condition such as the status of its thatch and any necessary repairs, is needed to provide an entirely balanced evaluation. Although the asking price seems relatively appropriate given the location and style, a detailed comparison with similar properties in the area is needed to determine its true value. The lack of transportation information should be considered a key factor in the property’s evaluation.
Therefore, we give this property 6 / 10. *Disclaimer: This is our option and does constitute a recommendation or financial advice. Do your own research. *
- Price
- 7
- Condition
- 6
- Location
- 7
- Land
- 4
- Bedrooms
- 3
- Bathrooms
- 1
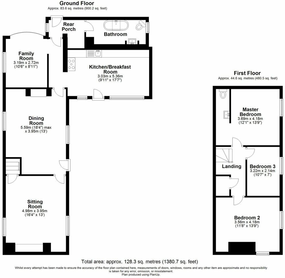
- Sqft (est)
- 1,381.01
The heatmap indicates the level of crime in the area. The color of the heatmap indicates the crime severity and recency.
Metrics Year-on-Year
- Average area value
- 557,608.00 £Increased by 11.45 %
- Est sale value
- 771,984.59 £Increased by 9.39 %
- Average area rental value
- 2,301.00 £/moIncreased by 13.07 %
- Est letting value
- 2,762.02 £/moUnchanged by 0.00 %
- Est rental Yield
- 4.95 %Increased by 1.43 %
- Crime Rate
- 213.00 %Unchanged by 0.00 %
Agent Activity
Waymark Property marked this listing as sold.
Waymark Property created the listing.
Nearby Schools
| Name | Type | Ofsted | Distance |
|---|---|---|---|
| Buckland Church Of England Primary School | Academy Converter | Outstanding | 0.17 KM |
| St Hugh'S School | Other Independent School | 3.02 KM | |
| Stanford In The Vale Cofe Primary School | Voluntary Controlled School | Good | 4.56 KM |
| Aston And Cote Church Of England Primary School | Voluntary Controlled School | Good | 5.26 KM |
| Shellingford Church Of England (Voluntary Aided) School | Voluntary Aided School | Good | 6.01 KM |
Images
Nearby Streets
| Name | Average Price | Average Sqft | Distance |
|---|---|---|---|
| Church Court | £ 0 | 0 | 0.00 KM |
| Poundcorner | £ 0 | 0 | 0.00 KM |
Nearby Listings
| Address | Price | Type | Score | Distance |
|---|---|---|---|---|
| Summerside, Buckland, SN7 | £ 575,000 | BUY | 6 / 10 | 0.00 KM |
| Buckland, Oxfordshire, SN7 | £ 795,000 | BUY | 6 / 10 | 0.00 KM |
| Buckland, Faringdon, Oxfordshire, SN7 | £ 350,000 | BUY | Unknown | 0.20 KM |
| Buckland, Faringdon, SN7 | £ 1,750,000 | BUY | 7 / 10 | 0.27 KM |
| Buckland, Faringdon, Oxfordshire, SN7 | £ 900,000 | BUY | 7 / 10 | 0.28 KM |
Nearby Properties
| Address | Price | Distance |
|---|---|---|
| 9 Summerside | £ 477,000 | 0.01 KM |
| 15 Summerside | £ 325,000 | 0.01 KM |
| 4 Summerside | £ 269,000 | 0.01 KM |
| Hedges | £ 560,000 | 0.18 KM |
| 2 Wheelwright Court | £ 427,000 | 0.18 KM |