Central Headington, Oxford, OX3
By Chancellors
£ 400,000
Reviews
3 out of 5 stars
Chancellors says ..
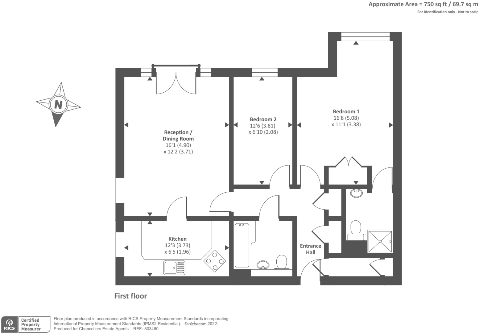
Two bedroom apartment in Victoria Court, ideal for the John Radcliffe hospital & Brookes University offered to the market with no onward chain. The property offers a good reception room, fitted kitchen, family bathroom and an en-suite to the primary bedroom
Property Oracle says ..
This property is a two-bedroom, two-bathroom flat located in Headington, Oxford. The flat is currently undergoing some renovations, as evidenced by the scaffolding visible in the exterior photos. The interior photos show a relatively modern and well-maintained interior, with a conservatory and a good-sized living area. The property benefits from a small garden area. While the average price per square foot in the area is £360, this property is listed at a price that seems reasonable considering its size, location, and current condition, despite being slightly below the average price for the area. The location is convenient, with good access to schools, transportation links, and amenities. The proximity to Oxford Brookes University and several well-rated schools is a significant positive. However, the ongoing renovations should be factored into any purchase decision.
Therefore, we give this property 7 / 10. *Disclaimer: This is our option and does constitute a recommendation or financial advice. Do your own research. *
- Price
- 7
- Condition
- 7
- Location
- 8
- Land
- 6
- Bedrooms
- 2
- Bathrooms
- 2
- Sqft (est)
- 550.00
- Lot (est)
- 750.00
The heatmap indicates the level of crime in the area. The color of the heatmap indicates the crime severity and recency.
Metrics Year-on-Year
- Average area value
- 830,000.00 £Increased by 35.78 %
- Est sale value
- 453,750.00 £Increased by 59.57 %
- Average area rental value
- 2,009.00 £/moIncreased by 17.62 %
- Est letting value
- 550.00 £/moUnchanged by 0.00 %
- Est rental Yield
- 2.90 %Decreased by 13.43 %
- Crime Rate
- 6.00 %Unchanged by 0.00 %
Agent Activity
Chancellors created the listing.
Nearby Schools
| Name | Type | Ofsted | Distance |
|---|---|---|---|
| Headington School | Other Independent School | 0.31 KM | |
| Oxford Brookes University | Higher Education Institutions | Good | 0.64 KM |
| Cheney School | Academy Converter | Good | 0.68 KM |
| Rye St Antony | Other Independent School | 0.79 KM | |
| Ruskin College | Further Education | Good | 0.99 KM |
Images
Nearby Streets
| Name | Average Price | Average Sqft | Distance |
|---|---|---|---|
| Brookside | £ 0 | 0 | 0.00 KM |
| Ingle Close | £ 775,000 | 0 | 0.00 KM |
| Old Road | £ 850,000 | 0 | 0.00 KM |
| North Way | £ 0 | 0 | 0.00 KM |
| Fitness Trail | £ 0 | 0 | 0.00 KM |
Nearby Transport
| Name | NLC | TLC | Distance |
|---|---|---|---|
| Oxford | 3115 | OXF | 5.70 KM |
| Islip | 3110 | ISP | 7.84 KM |
| Oxford Parkway | 3121 | OXP | 8.01 KM |
| Radley | 3118 | RAD | 8.35 KM |
Nearby Listings
| Address | Price | Type | Score | Distance |
|---|---|---|---|---|
| Central Headington, Oxford, OX3 | £ 400,000 | BUY | 7 / 10 | 0.00 KM |
| London Road, Headington, OX3 | £ 350,000 | BUY | Unknown | 0.03 KM |
| Headington, Oxford, OX3 | £ 300,000 | BUY | 6 / 10 | 0.07 KM |
| The Albany, London Road, Headington | £ 220,000 | BUY | Unknown | 0.08 KM |
| London Road, Headington, OX3 | £ 299,000 | BUY | 7 / 10 | 0.08 KM |
Nearby Properties
| Address | Price | Distance |
|---|---|---|
| 3 Woodlands Close | £ 200,000 | 0.17 KM |
| 6 Woodlands Close | £ 500,000 | 0.17 KM |
| 33 Woodlands Close | £ 225,000 | 0.17 KM |
| 14 Woodlands Close | £ 1,220,000 | 0.17 KM |
| 5 Woodlands Close | £ 165,000 | 0.17 KM |