Shobnall Road, Burton-on-Trent, DE14
By Newton Fallowell
£ 120,000
Reviews
2 out of 5 stars
Newton Fallowell says ..
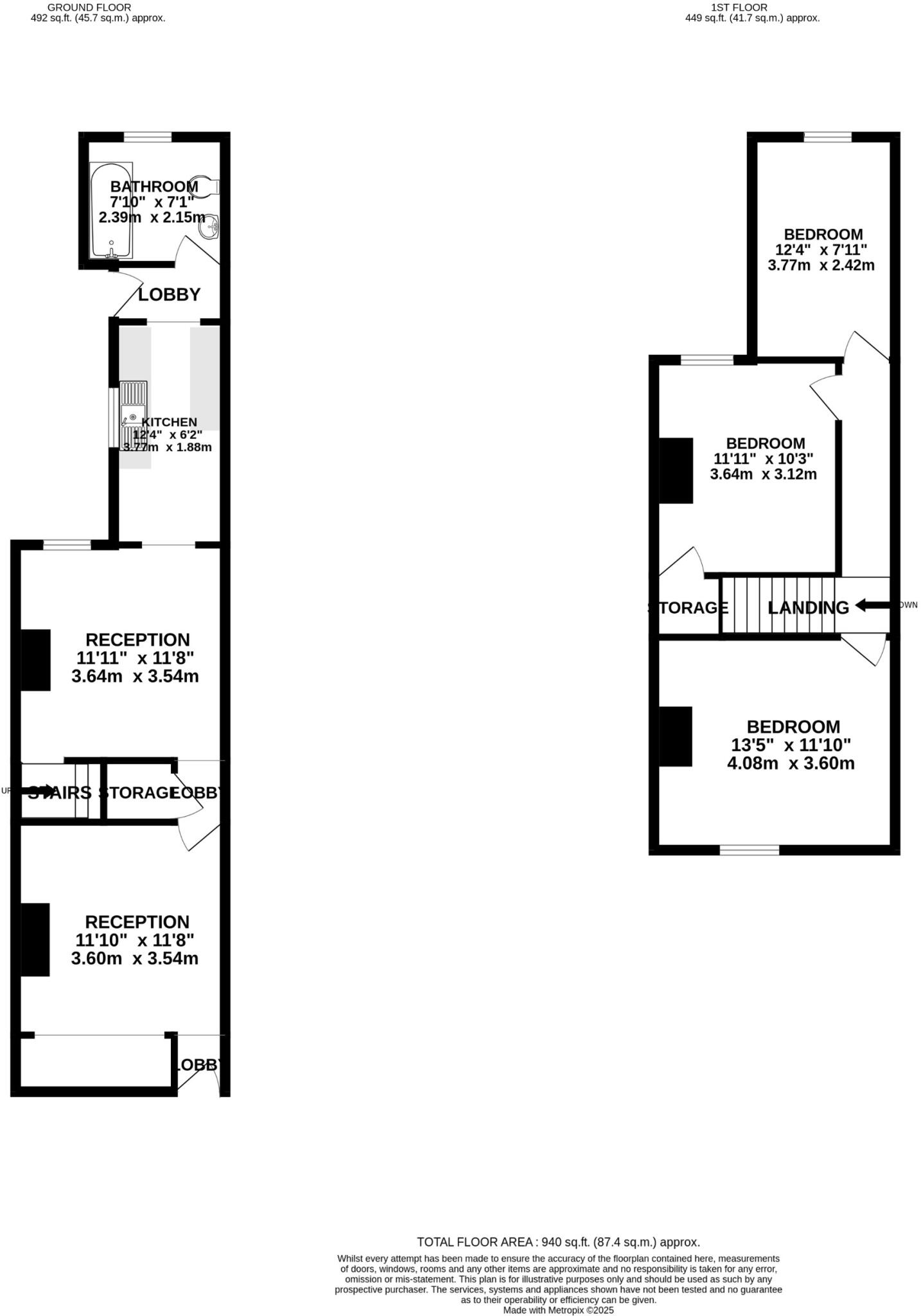
Newton Fallowell are pleased to be able to offer for sale this three bedroomed spacious traditional terraced home which whilst in need of improvement and up-grading the property offers great potential. In brief the accommodation comprises: - entrance lobby, bay windowed front sitting roo...
Property Oracle says ..
This is a three-bedroom terraced house located on Shobnall Road in Burton-on-Trent. The property requires significant renovation but is priced competitively at £120,000. The location offers proximity to local schools and transportation links, making it suitable for families or commuters. While the garden needs attention, it provides outdoor space. The property presents a good investment opportunity for those willing to undertake a renovation project.
Therefore, we give this property 5 / 10. *Disclaimer: This is our option and does constitute a recommendation or financial advice. Do your own research. *
- Price
- 8
- Condition
- 3
- Location
- 6
- Land
- 5
- Bedrooms
- 3
- Bathrooms
- 1
- Sqft (est)
- 786.00
The heatmap indicates the level of crime in the area. The color of the heatmap indicates the crime severity and recency.
Metrics Year-on-Year
- Average area value
- 199,199.00 £Increased by 8.24 %
- Est sale value
- 319,902.00 £Increased by 101.49 %
- Average area rental value
- 766.00 £/moIncreased by 24.55 %
- Est letting value
- 786.00 £/mo
- Est rental Yield
- 4.61 %Increased by 14.96 %
- Crime Rate
- 18.00 %Unchanged by 0.00 %
Agent Activity
Newton Fallowell created the listing.
Nearby Schools
| Name | Type | Ofsted | Distance |
|---|---|---|---|
| Shobnall Primary & Nursery School | Academy Converter | 0.28 KM | |
| Scientia Academy | Academy Sponsor Led | Good | 2.09 KM |
| Henhurst Ridge Primary Academy | Free Schools | 2.28 KM | |
| Grange School | Academy Converter | 2.29 KM | |
| Rykneld Primary School | Academy Converter | 2.47 KM |
Images
Nearby Streets
| Name | Average Price | Average Sqft | Distance |
|---|---|---|---|
| Reservoir Road | £ 279,950 | 0 | 0.00 KM |
| Union Way | £ 0 | 0 | 0.00 KM |
| Glade View Drive | £ 0 | 0 | 0.00 KM |
| Fern Tree Walk | £ 292,500 | 0 | 0.00 KM |
| Willow Street | £ 350,000 | 0 | 0.00 KM |
Nearby Transport
| Name | NLC | TLC | Distance |
|---|---|---|---|
| Burton-On-Trent | 1658 | BUT | 2.73 KM |
| Tutbury And Hatton | 1783 | TUT | 6.22 KM |
Nearby Listings
| Address | Price | Type | Score | Distance |
|---|---|---|---|---|
| Shobnall Road, Burton-on-Trent, DE14 | £ 120,000 | BUY | 5 / 10 | 0.00 KM |
| Shobnall Road, Burton-on-Trent, DE14 | £ 140,000 | BUY | Unknown | 0.04 KM |
| Lordswell Road, Burton-On-Trent | £ 275,000 | BUY | 6 / 10 | 0.11 KM |
| Lordswell Road, Burton Upon Trent | £ 295,000 | BUY | 5 / 10 | 0.16 KM |
| Shobnall Road, Burton-On-Trent, DE14 2BE | £ 330,000 | BUY | 8 / 10 | 0.17 KM |
Nearby Properties
| Address | Price | Distance |
|---|---|---|
| 185 Shobnall Road | £ 84,000 | 0.00 KM |
| 166 Shobnall Road | £ 127,000 | 0.00 KM |
| 172 Shobnall Road | £ 159,950 | 0.00 KM |
| 159 Shobnall Road | £ 121,000 | 0.00 KM |
| 178 Shobnall Road | £ 159,000 | 0.00 KM |