PR
Attfield Close, Ash, Aldershot, Surrey, GU12
By Prospect Estate Agency
£ 295,000
Reviews
3 out of 5 stars
Prospect Estate Agency says ..
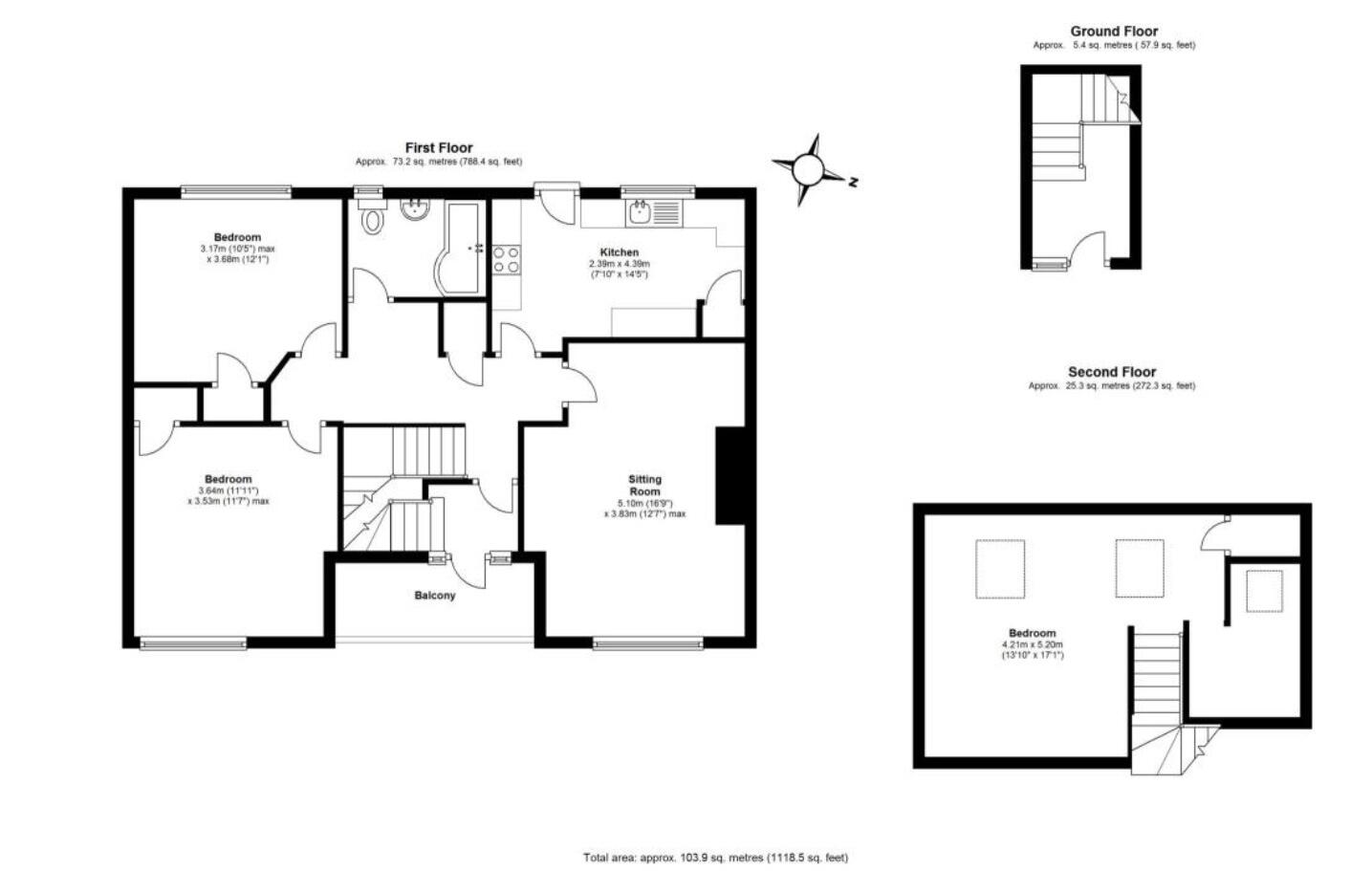
NO ONWARD CHAIN This first floor maisonette comes to the market with no onward chain and is located only a short walk from many local amenities, Schools, Blackwater River and plenty of woodlands. The property comprises a large living room with feature fireplace, a modern ki...
Property Oracle says ..
Therefore, we give this property 7 / 10. *Disclaimer: This is our option and does constitute a recommendation or financial advice. Do your own research. *
- Price
- 8
- Condition
- 6
- Location
- 7
- Land
- 7
- Bedrooms
- 3
- Bathrooms
- 1
- Sqft (est)
- 822.58
The heatmap indicates the level of crime in the area. The color of the heatmap indicates the crime severity and recency.
Metrics Year-on-Year
- Average area value
- 415,000.00 £Decreased by 13.65 %
- Est sale value
- 467,225.44 £Increased by 69.05 %
- Average area rental value
- 1,095.00 £/moDecreased by 45.71 %
- Est letting value
- 822.58 £/moUnchanged by 0.00 %
- Est rental Yield
- 3.17 %Decreased by 37.10 %
- Crime Rate
- 3.00 %Unchanged by 0.00 %
from 480,598.00 £
from 276,386.88 £
from 2,017.00 £/mo
from 822.58 £/mo
from 5.04 %
from 3.00 %
Agent Activity
Prospect Estate Agency created the listing.
Nearby Schools
| Name | Type | Ofsted | Distance |
|---|---|---|---|
| Walsh Cofe Junior School | Voluntary Controlled School | Requires improvement | 0.42 KM |
| Walsh Memorial Cofe Controlled Infant School | Voluntary Controlled School | Outstanding | 0.42 KM |
| Ash Manor School | Community School | Good | 0.63 KM |
| Shawfield Primary School | Community School | Good | 1.21 KM |
| St Paul'S C/E Infant School & Sure Start Children'S Centre | Children's Centre | 1.27 KM |
Images
Nearby Streets
| Name | Average Price | Average Sqft | Distance |
|---|---|---|---|
| Tudor Court | £ 0 | 0 | 0.00 KM |
| Windsor Gardens | £ 0 | 0 | 0.00 KM |
| Manor Road cycle path | £ 0 | 0 | 0.00 KM |
| The Woodridges | £ 0 | 0 | 0.00 KM |
| Lea Way | £ 350,000 | 0 | 0.00 KM |
Nearby Transport
| Name | NLC | TLC | Distance |
|---|---|---|---|
| Ash | 5641 | ASH | 1.95 KM |
| Ash Vale | 5547 | AHV | 3.05 KM |
| Aldershot | 5623 | AHT | 3.29 KM |
| North Camp | 5636 | NCM | 3.30 KM |
| Farnborough (Main) | 5521 | FNB | 6.29 KM |
Nearby Listings
| Address | Price | Type | Score | Distance |
|---|---|---|---|---|
| Attfield Close, Ash, Aldershot, Surrey, GU12 | £ 285,000 | BUY | 7 / 10 | 0.00 KM |
| Attfield Close, Ash, Aldershot, Surrey, GU12 | £ 295,000 | BUY | 7 / 10 | 0.00 KM |
| Attfield Close, Ash, Surrey, GU12 | £ 285,000 | BUY | Unknown | 0.03 KM |
| Attfield Close, Ash, Surrey, GU12 | £ 210,000 | BUY | 5 / 10 | 0.07 KM |
| Attfield Close, Ash, Surrey, GU12 | £ 550,000 | BUY | 7 / 10 | 0.09 KM |
Nearby Properties
| Address | Price | Distance |
|---|---|---|
| 23a Attfield Close | £ 262,000 | 0.10 KM |
| 4 Attfield Close | £ 415,000 | 0.10 KM |
| 6 Attfield Close | £ 250,000 | 0.10 KM |
| 15 Attfield Close | £ 130,000 | 0.10 KM |
| 26 Attfield Close | £ 545,000 | 0.10 KM |