Zorbit Mews, Hyde, SK14 4GN **DRIVEWAY**
By Simple Lettings and Sales
£ 211,200
Reviews
3 out of 5 stars
Simple Lettings and Sales says ..
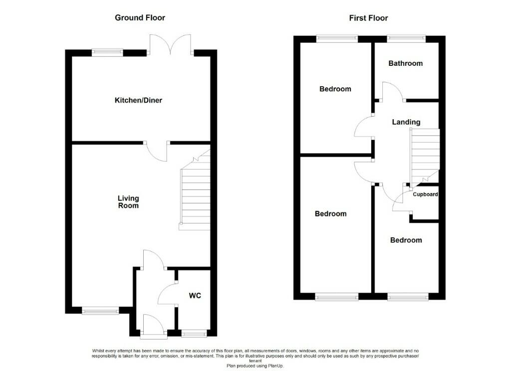
simple SALES offer this GREAT SIZED MEWS home.Boasts NO VENDOR CHAIN! Rented @ £1155 pcm. SPACIOUS LOUNGE,downstairs WC & CONTEMPORARY DINING KITCHEN with PATIO DOORS.2 DOUBLE BEDROOMS,good sized 3rd single & family BATHROOM with shower.Boasts GARDENS to FRONT & REAR, OFF ROAD DRIVEWAY PARKING
Property Oracle says ..
This three-bedroom mews house in Hyde, Greater Manchester, presents a decent opportunity for first-time buyers or families seeking a property in a convenient location. The property boasts three bedrooms, one bathroom, a downstairs WC, a spacious lounge, and a contemporary dining kitchen with patio doors leading to the rear garden. A notable advantage is the off-road driveway parking, a valuable asset in many areas. The proximity to train stations ensures good transport links to Manchester city centre and beyond, while the presence of several schools, some with good Ofsted ratings, increases its appeal to families. The interior photos show a relatively clean and well-maintained property, although some buyers might wish to add personal touches. The modest-sized garden offers an outdoor space. The property is described as having ‘no vendor chain’, which makes the purchasing process simpler. However, precise square footage data for direct comparisons with nearby properties is missing from the dataset and that would help to clarify the value offered by this property further. In addition, further information on the overall condition of the property is lacking, including any potential maintenance or repair work required.
Therefore, we give this property 6 / 10. *Disclaimer: This is our option and does constitute a recommendation or financial advice. Do your own research. *
- Price
- 7
- Condition
- 6
- Location
- 7
- Land
- 4
- Bedrooms
- 3
- Bathrooms
- 1
- Sqft (est)
- 800.00
The heatmap indicates the level of crime in the area. The color of the heatmap indicates the crime severity and recency.
Metrics Year-on-Year
- Average area value
- 241,667.00 £Increased by 2.45 %
- Est sale value
- 215,200.00 £Increased by 0.37 %
- Average area rental value
- 948.00 £/moDecreased by 4.53 %
- Est letting value
- 800.00 £/moUnchanged by 0.00 %
- Est rental Yield
- 4.71 %Decreased by 6.73 %
- Crime Rate
- 2.00 %Unchanged by 0.00 %
Agent Activity
Simple Lettings and Sales created the listing.
Nearby Schools
| Name | Type | Ofsted | Distance |
|---|---|---|---|
| Hyde Flowery Children'S Centre | Children's Centre | 0.41 KM | |
| Hyde High School | Community School | Requires improvement | 0.47 KM |
| Flowery Field Primary School | Academy Converter | Good | 0.49 KM |
| Thomas Ashton School | Community Special School | Good | 0.61 KM |
| St George'S Cofe Primary School | Academy Converter | 1.16 KM |
Images
Nearby Streets
| Name | Average Price | Average Sqft | Distance |
|---|---|---|---|
| Newton Walk | £ 0 | 0 | 0.00 KM |
| Well Meadow | £ 0 | 0 | 0.00 KM |
| Broadbent Street | £ 0 | 0 | 0.00 KM |
| Water Street | £ 275,000 | 0 | 0.00 KM |
| Bibby Street | £ 240,000 | 0 | 0.00 KM |
Nearby Transport
| Name | NLC | TLC | Distance |
|---|---|---|---|
| Hyde Central | 2829 | HYC | 0.56 KM |
| Flowery Field | 2786 | FLF | 0.65 KM |
| Hyde North | 2959 | HYT | 1.00 KM |
| Newton For Hyde | 2789 | NWN | 1.71 KM |
| Godley | 2948 | GDL | 3.12 KM |
Nearby Listings
| Address | Price | Type | Score | Distance |
|---|---|---|---|---|
| Zorbit Mews, Hyde, SK14 4GN **DRIVEWAY** | £ 211,200 | BUY | 6 / 10 | 0.00 KM |
| Zorbit Mews, Hyde | £ 240,000 | BUY | 7 / 10 | 0.04 KM |
| Carrfield, Hyde | £ 135,000 | BUY | 6 / 10 | 0.08 KM |
| Newton Street, Hyde, Cheshire | £ 115,000 | BUY | 5 / 10 | 0.09 KM |
| , Carrfield Mill Road, Hyde | £ 270,000 | BUY | Unknown | 0.12 KM |
Nearby Properties
| Address | Price | Distance |
|---|---|---|
| 14 Zorbit Mews | £ 287,550 | 0.00 KM |
| 17 Zorbit Mews | £ 244,110 | 0.00 KM |
| 27 Zorbit Mews | £ 220,000 | 0.00 KM |
| 39 Zorbit Mews | £ 139,000 | 0.00 KM |
| 41 Zorbit Mews | £ 119,150 | 0.00 KM |