Anthony James says ..
Anthony James Estate Agents are pleased to offer to the market CHAIN FREE this well presented three bedroom, two bathroom semi detached home. Situated in a quiet cul-de-sac off of Shinglewell Road, this a certainly a home to be enjoyed by family - with multiple school options, transport links ...
Property Oracle says ..
Therefore, we give this property 6 / 10. *Disclaimer: This is our option and does constitute a recommendation or financial advice. Do your own research. *
- Price
- 6
- Condition
- 6
- Location
- 7
- Land
- 7
- Bedrooms
- 3
- Bathrooms
- 2
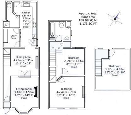
- Sqft (est)
- 1,173.05
The heatmap indicates the level of crime in the area. The color of the heatmap indicates the crime severity and recency.
Metrics Year-on-Year
- Average area value
- 314,999.00 £Increased by 6.27 %
- Est sale value
- 351,915.00 £Increased by 30.43 %
- Average area rental value
- 1,090.00 £/moIncreased by 10.89 %
- Est letting value
- 1,173.05 £/mo
- Est rental Yield
- 4.15 %Increased by 4.27 %
- Crime Rate
- 4.00 %Unchanged by 0.00 %
from 296,407.00 £
from 269,801.50 £
from 983.00 £/mo
from 0.00 £/mo
from 3.98 %
from 4.00 %
Agent Activity
Anthony James marked this listing as sold.
Anthony James created the listing.
Nearby Schools
| Name | Type | Ofsted | Distance |
|---|---|---|---|
| Wrotham Road Primary School | Academy Converter | 0.54 KM | |
| Saint George'S Church Of England School | Academy Converter | Good | 0.83 KM |
| Whitehill Primary School | Academy Converter | Good | 1.01 KM |
| Bronte School | Other Independent School | 1.02 KM | |
| Holy Trinity Church Of England Primary School | Academy Converter | 1.03 KM |
Images
Nearby Streets
| Name | Average Price | Average Sqft | Distance |
|---|---|---|---|
| Portland Road | £ 0 | 0 | 0.00 KM |
| Portland Avenue | £ 0 | 0 | 0.00 KM |
| Cross Lane East | £ 400,000 | 0 | 0.00 KM |
| Old Road East | £ 342,500 | 0 | 0.00 KM |
| Sheppy Place | £ 0 | 0 | 0.00 KM |
Nearby Transport
| Name | NLC | TLC | Distance |
|---|---|---|---|
| Gravesend | 5172 | GRV | 1.01 KM |
| Tilbury Town | 7462 | TIL | 3.67 KM |
| Northfleet | 5120 | NFL | 5.03 KM |
| Meopham | 5116 | MEP | 5.25 KM |
| Ebbsfleet International | 5566 | EBD | 5.31 KM |
Nearby Listings
| Address | Price | Type | Score | Distance |
|---|---|---|---|---|
| Park Road, Gravesend | £ 425,000 | BUY | 6 / 10 | 0.00 KM |
| Old Road West, Gravesend, Kent, DA11 | £ 500,000 | BUY | Unknown | 0.09 KM |
| Woodfield Avenue, Gravesend | £ 375,000 | BUY | Unknown | 0.12 KM |
| Singlewell Road, Gravesend, Kent, DA11 | £ 400,000 | BUY | 7 / 10 | 0.14 KM |
| Old Road West, Gravesend | £ 550,000 | BUY | 8 / 10 | 0.14 KM |
Nearby Properties
| Address | Price | Distance |
|---|---|---|
| 4 Park Road | £ 180,000 | 0.01 KM |
| 18 Park Road | £ 390,000 | 0.01 KM |
| 14 Park Road | £ 303,000 | 0.01 KM |
| 9 Park Road | £ 232,000 | 0.01 KM |
| 13 Park Road | £ 280,000 | 0.01 KM |