RO
Carlisle Road, Dartford, Kent, DA1
By Robinson Jackson
£ 250,000
Reviews
2 out of 5 stars
Robinson Jackson says ..
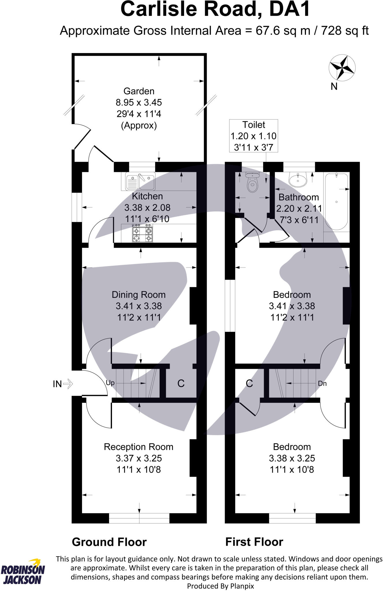
Guide Price £250,000-£275,000 This two-bedroom end-of-terrace house presents a fantastic opportunity for buyers seeking a full renovation project. Situated in a residential area, the property offers a traditional layout, with two separate reception rooms providing flexible living...
Property Oracle says ..
Therefore, we give this property 4 / 10. *Disclaimer: This is our option and does constitute a recommendation or financial advice. Do your own research. *
- Price
- 4
- Condition
- 3
- Location
- 7
- Land
- 5
- Bedrooms
- 2
- Bathrooms
- 1
- Sqft (est)
- 727.64
The heatmap indicates the level of crime in the area. The color of the heatmap indicates the crime severity and recency.
Metrics Year-on-Year
- Average area value
- 245,074.00 £Decreased by 15.93 %
- Est sale value
- 170,995.40 £Decreased by 37.50 %
- Average area rental value
- 1,254.00 £/moDecreased by 5.43 %
- Est letting value
- 727.64 £/moUnchanged by 0.00 %
- Est rental Yield
- 6.14 %Increased by 12.45 %
- Crime Rate
- 15.00 %Unchanged by 0.00 %
from 291,529.00 £
from 273,592.64 £
from 1,326.00 £/mo
from 727.64 £/mo
from 5.46 %
from 15.00 %
Agent Activity
Robinson Jackson created the listing.
Nearby Schools
| Name | Type | Ofsted | Distance |
|---|---|---|---|
| St Anselm'S Catholic Primary School | Voluntary Aided School | Good | 0.71 KM |
| Dartford Primary Academy | Academy Converter | Good | 0.74 KM |
| The Gateway Primary Academy | Academy Converter | Good | 0.81 KM |
| Temple Hill Primary Academy | Academy Converter | Good | 0.97 KM |
| Temple Hill Children'S Centre | Children's Centre | 0.97 KM |
Images
Nearby Streets
| Name | Average Price | Average Sqft | Distance |
|---|---|---|---|
| Brentfield Road | £ 426,250 | 0 | 0.00 KM |
| Rochester Road | £ 0 | 0 | 0.00 KM |
| York Road | £ 375,000 | 0 | 0.00 KM |
| Masefield Road | £ 0 | 0 | 0.00 KM |
| St Vincents Villas | £ 0 | 0 | 0.00 KM |
Nearby Transport
| Name | NLC | TLC | Distance |
|---|---|---|---|
| Dartford | 5101 | DFD | 1.66 KM |
| Stone Crossing | 5248 | SCG | 3.36 KM |
| Purfleet | 7453 | PFL | 4.00 KM |
| Farningham Road | 5105 | FNR | 4.84 KM |
| Greenhithe For Bluewater | 5138 | GNH | 5.15 KM |
Nearby Listings
| Address | Price | Type | Score | Distance |
|---|---|---|---|---|
| Carlisle Road, Dartford, Kent, DA1 | £ 250,000 | BUY | 4 / 10 | 0.00 KM |
| Mildred Close, Dartford | £ 330,000 | BUY | 7 / 10 | 0.08 KM |
| Mildred Close, Dartford, DA1 | £ 330,000 | BUY | 7 / 10 | 0.09 KM |
| Dartford, Kent, DA1 | £ 325,000 | BUY | Unknown | 0.09 KM |
| Bayly Road, Dartford, Kent, DA1 | £ 290,000 | BUY | 5 / 10 | 0.13 KM |
Nearby Properties
| Address | Price | Distance |
|---|---|---|
| 6 Carlisle Road | £ 126,500 | 0.05 KM |
| 10 Carlisle Road | £ 300,000 | 0.05 KM |
| 58 Carlisle Road | £ 287,500 | 0.05 KM |
| 12 Carlisle Road | £ 265,000 | 0.05 KM |
| 52 Carlisle Road | £ 245,000 | 0.05 KM |