Danygraig Road, Risca, NP11
By Number One Real Estate
£ 275,000
Reviews
3 out of 5 stars
Number One Real Estate says ..
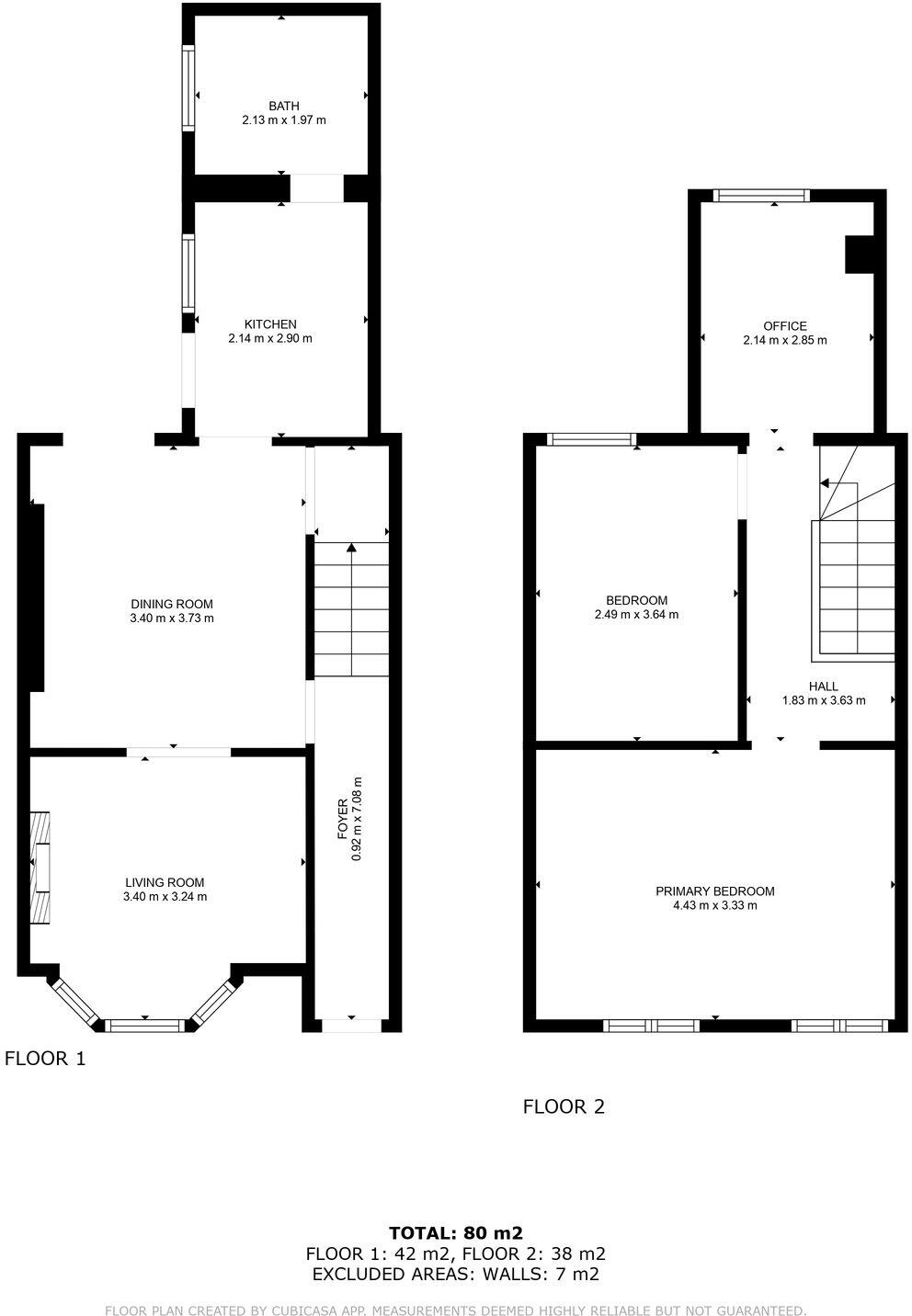
**GUIDE PRICE £275,000 - £300,000**SEMI DETCHAED**THREE BEDROOM**
Property Oracle says ..
Therefore, we give this property 7 / 10. *Disclaimer: This is our option and does constitute a recommendation or financial advice. Do your own research. *
- Price
- 6
- Condition
- 9
- Location
- 7
- Land
- 8
- Bedrooms
- 3
- Bathrooms
- 1
- Sqft (est)
- 830.66
The heatmap indicates the level of crime in the area. The color of the heatmap indicates the crime severity and recency.
Metrics Year-on-Year
- Average area value
- 209,988.00 £Increased by 6.16 %
- Est sale value
- 205,173.02 £Increased by 23.50 %
- Average area rental value
- 750.00 £/moDecreased by 9.96 %
- Est letting value
- 0.00 £/mo
- Est rental Yield
- 4.29 %Decreased by 15.05 %
- Crime Rate
- 15.00 %Unchanged by 0.00 %
from 197,796.00 £
from 166,132.00 £
from 833.00 £/mo
from 0.00 £/mo
from 5.05 %
from 15.00 %
Agent Activity
Number One Real Estate created the listing.
Nearby Schools
| Name | Type | Ofsted | Distance |
|---|---|---|---|
| Risca Primary School | Welsh Establishment | 0.00 KM | |
| Ty Sign Primary School | Welsh Establishment | 1.17 KM | |
| Pentwynmawr Primary School | Welsh Establishment | 1.29 KM | |
| Ty Isaf Infants & Nursery School | Welsh Establishment | 1.34 KM | |
| Waunfawr Primary School | Welsh Establishment | 2.82 KM |
Images
Nearby Streets
| Name | Average Price | Average Sqft | Distance |
|---|---|---|---|
| Bridge Street | £ 230,000 | 0 | 0.00 KM |
| Wesley Place | £ 165,000 | 0 | 0.00 KM |
| Tir-y-cwm Road | £ 240,000 | 0 | 0.00 KM |
| Tir-y-cwm Lane | £ 310,000 | 0 | 0.00 KM |
| Highfield Close | £ 182,667 | 0 | 0.00 KM |
Nearby Transport
| Name | NLC | TLC | Distance |
|---|---|---|---|
| Risca And Pontymister | 9920 | RCA | 1.21 KM |
| Crosskeys | 9902 | CKY | 2.93 KM |
| Rogerstone | 9921 | ROR | 4.25 KM |
| Newbridge | 9919 | NBE | 7.75 KM |
| Pye Corner | 1663 | PYE | 7.90 KM |
Nearby Listings
| Address | Price | Type | Score | Distance |
|---|---|---|---|---|
| Danygraig Road, Risca, NP11 | £ 320,000 | BUY | 6 / 10 | 0.00 KM |
| Danygraig Road, Risca, NP11 | £ 275,000 | BUY | 7 / 10 | 0.00 KM |
| Danygraig Road, Risca, NP11 | £ 260,000 | BUY | 7 / 10 | 0.00 KM |
| Bridge Street, Risca, NP11 | £ 250,000 | BUY | 7 / 10 | 0.12 KM |
| Ebbw Street, Risca, Newport, NP11 | £ 220,000 | BUY | 6 / 10 | 0.18 KM |
Nearby Properties
| Address | Price | Distance |
|---|---|---|
| 23 Danygraig Road | £ 129,950 | 0.00 KM |
| 7 Danygraig Road | £ 83,000 | 0.00 KM |
| 35 Danygraig Road | £ 155,000 | 0.00 KM |
| 39 Danygraig Road | £ 120,000 | 0.00 KM |
| 3 Danygraig Road | £ 36,000 | 0.00 KM |