York Road, Elvington, York, YO41 4DY
HU

York Road, Elvington, York, YO41 4DY

By Hudson Moody

£ 435,000

Reviews

3 out of 5 stars

Hudson Moody says ..

Standing on a good sized plot is a modern family home in a most desirable village, to the east of the City of York. Together with immaculately presented accommodation and a beautiful fully enclosed rear garden plus garage and off street parking for several vehicles.

Property Oracle says ..

This property is located in Elvington, a village near York. Based on the provided images, the property appears to be well-maintained and in good condition. The interior looks recently updated and modern. The property includes a sizable garden, as shown in the aerial and ground-level photos. The list price is slightly below the average price for the area, but the average price per square foot is higher than the property’s implied price per square foot. Considering its condition, the garden, and the location in a desirable village near York, the list price appears reasonable.

Therefore, we give this property 7 / 10. *Disclaimer: This is our option and does constitute a recommendation or financial advice. Do your own research. *

Price
7
Condition
8
Location
7
Land
9
Bedrooms
4
Bathrooms
2
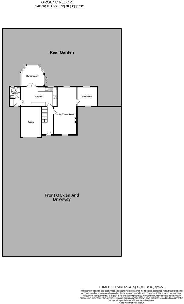
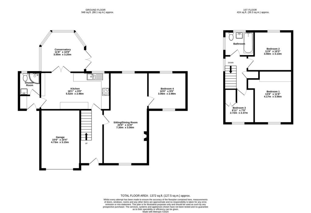
Sqft (est)
1,372.40

The heatmap indicates the level of crime in the area. The color of the heatmap indicates the crime severity and recency.

Metrics Year-on-Year

Average area value
591,875.00 £
Increased by 5.13 %
from 562,987.00 £
Est sale value
654,634.80 £
Decreased by 6.47 %
from 699,924.00 £
Average area rental value
1,194.00 £/mo
Decreased by 3.63 %
from 1,239.00 £/mo
Est letting value
0.00 £/mo
Decreased by 100.00 %
from 1,372.40 £/mo
Est rental Yield
2.42 %
Decreased by 8.33 %
from 2.64 %
Crime Rate
93.00 %
Unchanged by 0.00 %
from 93.00 %

Agent Activity

  • Hudson Moody marked this listing as sold.

  • Hudson Moody created the listing.

Nearby Schools

NameTypeOfstedDistance
Elvington Church Of England Voluntary Controlled Primary SchoolVoluntary Controlled SchoolGood1.40 KM
Wheldrake With Thorganby Church Of England Primary SchoolAcademy Converter3.37 KM
Sutton Upon Derwent Church Of England Voluntary Controlled Primary SchoolVoluntary Controlled SchoolGood3.48 KM
Dunnington Church Of England Primary SchoolAcademy Converter5.64 KM
Wilberfoss Church Of England Voluntary Controlled Primary SchoolVoluntary Controlled SchoolGood7.45 KM

Images

Lawnswood_5.jpg Lawnswood_7.jpg Lawnswood__13.jpg Lawnswood__25.jpg Lawnswood__16.jpg Lawnswood__34.jpg Lawnswood__22.jpg Lawnswood__28.jpg Lawnswood__52.jpg Lawnswood__49.jpg Lawnswood__43.jpg Lawnswood__46.jpg Lawnswood__31.jpg Lawnswood__40.jpg Lawnswood__37.jpg Lawnswood__4.jpg Lawnswood__1.jpg Lawnswood__7.jpg Lawnswood__10.jpg Lawnswood_6.jpg Lawnswood_1.jpg Lawnswood_2.jpg Lawnswood_3.jpg Lawnswood_4.jpg Lawnswood_8.jpg Lawnswood_9.jpg Lawnswood-High.jpg Lawnswood-High-2.jpg

Nearby Streets

NameAverage PriceAverage SqftDistance
Derwent Close £ 425,00000.00 KM

Nearby Listings

AddressPriceTypeScoreDistance
Elvington Park, Elvington, York, North Yorkshire, YO41 £ 280,000BUY6 / 100.05 KM
Elvington Park, Elvington £ 275,000BUY6 / 100.09 KM
The Conifers, Elvington, York YO41 4DL £ 204,700BUYUnknown0.17 KM
The conifers, York, YO41 £ 230,000BUY6 / 100.20 KM
Algarth Terrace, Elvington, YORK £ 240,000BUY7 / 100.26 KM

Nearby Properties

AddressPriceDistance
28 Elvington Park £ 262,0000.11 KM
42a Elvington Park £ 257,5000.11 KM
21 Elvington Park £ 320,0000.11 KM
38 Elvington Park £ 159,0000.11 KM
58 Elvington Park £ 265,0000.11 KM