St. Christophers Place, Oxford
By Amelies Estate Agents
£ 420,000
Reviews
3 out of 5 stars
Amelies Estate Agents says ..
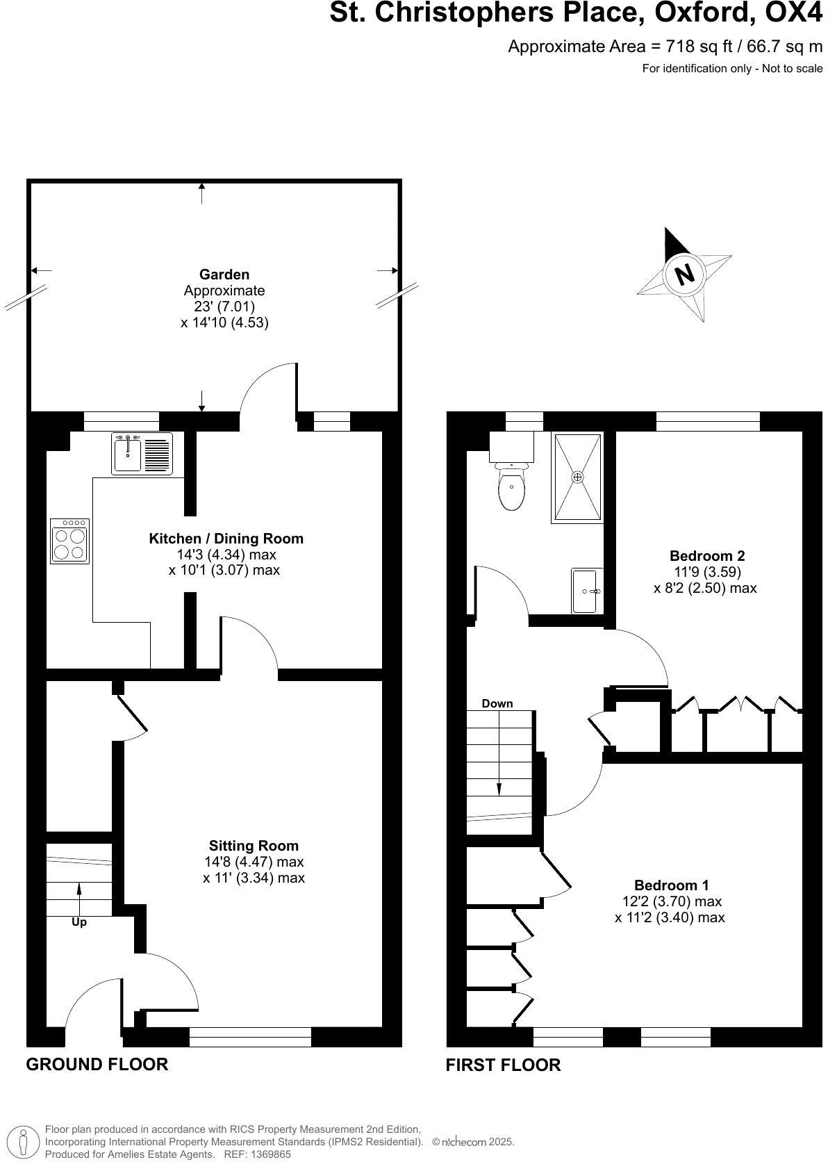
If you've been searching for a beautifully presented two-bedroom home in a sought-after East Oxford location, this could be the one for you. With a modern kitchen and bathroom, stylish interiors, and a private garden, this charming home is ready to move straight into. Call Amelies to book you...
Property Oracle says ..
This is a well-presented two-bedroom terraced house in the popular Temple Cowley area of Oxford. The property benefits from a modern interior, a well-maintained garden, and proximity to local amenities and schools. While the square footage is not provided, the property appears to be a comfortable size for a small family or couple. The asking price is reasonable for the area and the condition of the property.
Therefore, we give this property 6 / 10. *Disclaimer: This is our option and does constitute a recommendation or financial advice. Do your own research. *
- Price
- 6
- Condition
- 8
- Location
- 7
- Land
- 6
- Bedrooms
- 2
- Bathrooms
- 1
The heatmap indicates the level of crime in the area. The color of the heatmap indicates the crime severity and recency.
Metrics Year-on-Year
- Average area value
- 312,500.00 £Decreased by 31.71 %
- Average area rental value
- 1,568.00 £/moDecreased by 14.08 %
- Est rental Yield
- 6.02 %Increased by 25.68 %
- Crime Rate
- 6.00 %Unchanged by 0.00 %
Agent Activity
Amelies Estate Agents created the listing.
Nearby Schools
| Name | Type | Ofsted | Distance |
|---|---|---|---|
| Kings Education (Oxford) | Other Independent School | Good | 0.18 KM |
| St Christopher'S Church Of England School, Cowley | Academy Sponsor Led | Good | 0.21 KM |
| Tyndale Community School | Free Schools | Good | 0.40 KM |
| Our Lady'S Roman Catholic Primary School | Academy Converter | Good | 0.49 KM |
| Oxford Spires Academy | Academy Sponsor Led | Good | 1.01 KM |
Images
Nearby Streets
| Name | Average Price | Average Sqft | Distance |
|---|---|---|---|
| William Morris Close | £ 372,500 | 0 | 0.00 KM |
| Littlehay Road | £ 0 | 0 | 0.00 KM |
| Chancellor's Court | £ 0 | 0 | 0.00 KM |
| St James Place | £ 350,000 | 0 | 0.00 KM |
| Cinnaminta Road | £ 0 | 0 | 0.00 KM |
Nearby Transport
| Name | NLC | TLC | Distance |
|---|---|---|---|
| Radley | 3118 | RAD | 6.55 KM |
| Oxford | 3115 | OXF | 6.62 KM |
| Culham | 3107 | CUM | 9.75 KM |
Nearby Listings
| Address | Price | Type | Score | Distance |
|---|---|---|---|---|
| St. Christophers Place, Oxford | £ 420,000 | BUY | 6 / 10 | 0.00 KM |
| Temple Cowley, East Oxford, OX4 | £ 250,000 | BUY | 6 / 10 | 0.08 KM |
| Crescent Road, Temple Cowley, East Oxford | £ 270,000 | BUY | 6 / 10 | 0.08 KM |
| Don Bosco Close, Oxford, OX4 | £ 575,000 | BUY | 8 / 10 | 0.12 KM |
| Crescent Road, Oxford, Oxfordshire, OX4 | £ 375,000 | BUY | 6 / 10 | 0.12 KM |
Nearby Properties
| Address | Price | Distance |
|---|---|---|
| 35 St Christophers Place | £ 545,000 | 0.01 KM |
| 13 St Christophers Place | £ 355,000 | 0.01 KM |
| 10 St Christophers Place | £ 273,000 | 0.01 KM |
| 20 St Christophers Place | £ 219,000 | 0.01 KM |
| 25 St Christophers Place | £ 297,500 | 0.01 KM |