Norfolk Road, Edgbaston, Birmingham, West Midlands, B15
By Dixons
£ 139,950
Reviews
3 out of 5 stars
Dixons says ..
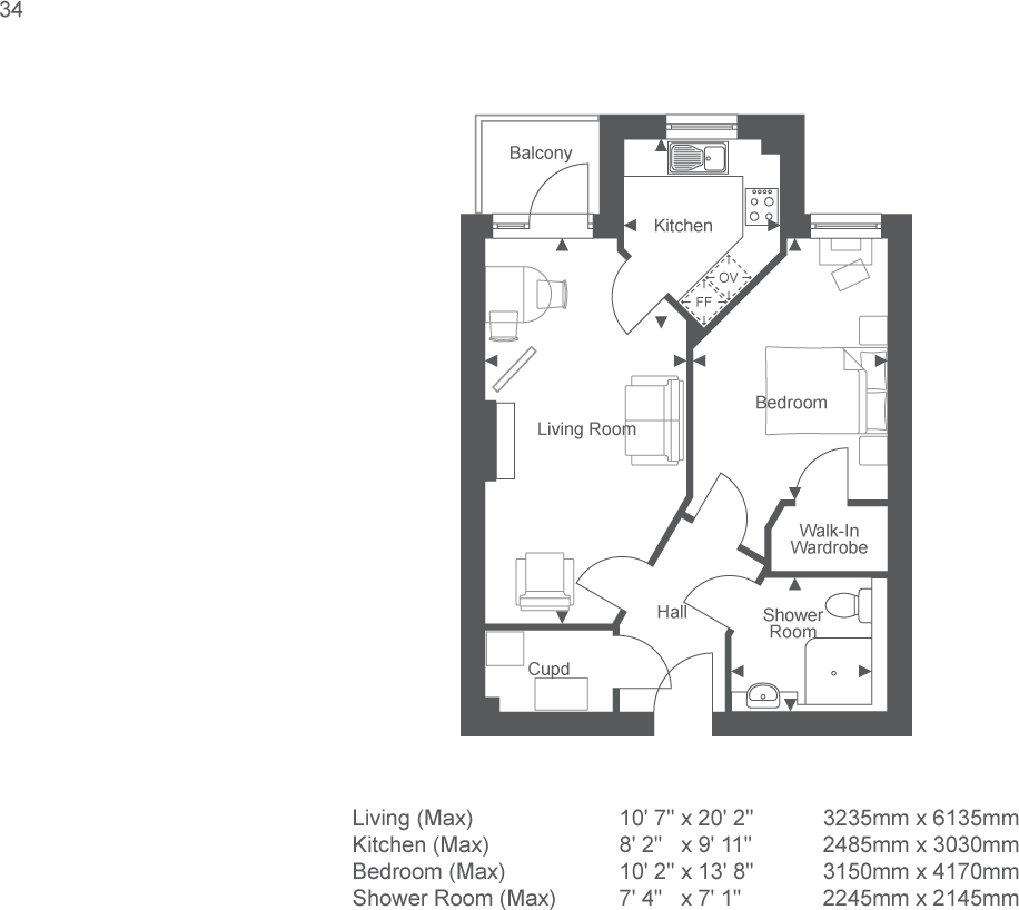
PART EXCHANGE OPTION AVAILABLE, PLEASE CALL FOR MORE INFORMATION. A beautiful one double bedroom apartment is available for sale in this luxury Retirement complex. This is a must view for those over 70 who are looking to move an easier and enjoyable life. Ryland Place - Ryl...
Property Oracle says ..
This one-bedroom apartment at Ryland Place in Edgbaston, Birmingham, presents a compelling proposition for a specific buyer profile. Situated within a modern retirement complex, the property showcases a contemporary design and high-quality finishes. The photos reveal a well-maintained interior with modern appliances and a comfortable layout. The property benefits from a well-landscaped communal garden and appears to be part of a well-managed development. The location in Edgbaston is advantageous given proximity to reputable schools and transport links. However, potential buyers should understand that the apartment is part of a retirement complex, targeting a particular demographic, and comes with a smaller private space compared to traditional housing. The lack of a private garden might be a drawback for some. The price point relative to the target market and the apparent quality of the apartment makes this property worth considering for those meeting the criteria of the complex.
Therefore, we give this property 6 / 10. *Disclaimer: This is our option and does constitute a recommendation or financial advice. Do your own research. *
- Price
- 7
- Condition
- 9
- Location
- 7
- Land
- 4
- Bedrooms
- 1
- Bathrooms
- 1
- Sqft (est)
- 728.39
The heatmap indicates the level of crime in the area. The color of the heatmap indicates the crime severity and recency.
Metrics Year-on-Year
- Average area value
- 547,000.00 £Decreased by 8.72 %
- Est sale value
- 281,158.54 £Decreased by 5.62 %
- Average area rental value
- 1,401.00 £/moDecreased by 1.27 %
- Est letting value
- 0.00 £/mo
- Est rental Yield
- 3.07 %Increased by 8.10 %
- Crime Rate
- 8.00 %Unchanged by 0.00 %
Agent Activity
Dixons created the listing.
Nearby Schools
| Name | Type | Ofsted | Distance |
|---|---|---|---|
| Norfolk House School | Other Independent School | 0.14 KM | |
| St Paul'S School For Girls | Voluntary Aided School | Outstanding | 0.56 KM |
| Chad Vale Primary School | Community School | Good | 0.81 KM |
| Harborne Academy | Academy Sponsor Led | Good | 1.08 KM |
| The Blue Coat School Birmingham | Other Independent School | 1.17 KM |
Images
Nearby Streets
| Name | Average Price | Average Sqft | Distance |
|---|---|---|---|
| Aston Bury | £ 950,000 | 0 | 0.00 KM |
| St Augustine's Road | £ 0 | 0 | 0.00 KM |
| Manor Road | £ 147,500 | 0 | 0.00 KM |
| Moorland Road | £ 895,000 | 0 | 0.00 KM |
| Holly Road | £ 268,000 | 0 | 0.00 KM |
Nearby Transport
| Name | NLC | TLC | Distance |
|---|---|---|---|
| University (Birmingham) | 4504 | UNI | 2.26 KM |
| Five Ways | 4503 | FWY | 3.24 KM |
| Selly Oak | 1105 | SLY | 3.28 KM |
| Jewellery Quarter | 1097 | JEQ | 3.83 KM |
| Smethwick Rolfe Street | 1150 | SMR | 4.24 KM |
Nearby Listings
| Address | Price | Type | Score | Distance |
|---|---|---|---|---|
| Norfolk Road, Edgbaston, Birmingham | £ 120,000 | BUY | 7 / 10 | 0.00 KM |
| Norfolk Road, Edgbaston, Birmingham | £ 80,000 | BUY | 8 / 10 | 0.00 KM |
| Norfolk Road, Edgbaston, Birmingham | £ 80,000 | BUY | 7 / 10 | 0.00 KM |
| Norfolk Road, Edgbaston, Birmingham, West Midlands, B15 | £ 139,950 | BUY | 6 / 10 | 0.00 KM |
| Norfolk Road, Edgbaston, Birmingham, West Midlands, B15 | £ 100,000 | BUY | 7 / 10 | 0.00 KM |
Nearby Properties
| Address | Price | Distance |
|---|---|---|
| 25 Norfolk Road | £ 350,000 | 0.06 KM |
| 2 Broomhurst | £ 680,000 | 0.11 KM |
| 10b Augustus Road | £ 495,000 | 0.17 KM |
| 18 Augustus Road | £ 1,700,000 | 0.17 KM |
| 10 Augustus Road | £ 450,000 | 0.17 KM |