Ambler Road, London, N4
WI

Ambler Road, London, N4

By Winkworth

£ 1,850,000

Reviews

4 out of 5 stars

Winkworth says ..

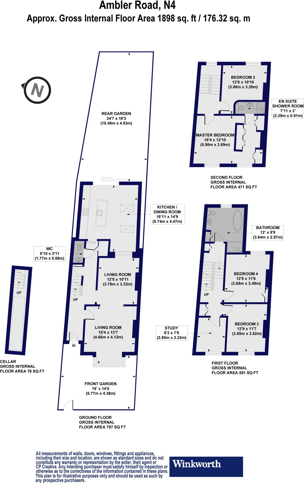
A stunning, four bedroom (plus study), two-bathroom family home set moments from the tube on Ambler Road, N4. Standing close to 1,900 sqft, the property has been tastefully decorated throughout and benefits from a wealth of period charm. Accommodation comprises of a wonderfully bright double rece...

Property Oracle says ..

This property is a beautifully presented four bedroom terraced house located on Ambler Road, Highbury West, Islington. The property has been significantly extended and refurbished to an excellent standard throughout, creating a stunning family home. The house benefits from a spacious open plan kitchen/dining area with bi-fold doors leading to a private rear garden. There are four well-proportioned bedrooms, two modern bathrooms, and ample storage space. The location is highly desirable, within easy reach of excellent schools, transport links, and local amenities. The property is offered for sale chain-free.

Therefore, we give this property 8 / 10. *Disclaimer: This is our option and does constitute a recommendation or financial advice. Do your own research. *

Price
7
Condition
10
Location
10
Land
8
Bedrooms
4
Bathrooms
2
Sqft (est)
1,897.89

The heatmap indicates the level of crime in the area. The color of the heatmap indicates the crime severity and recency.

Metrics Year-on-Year

Average area value
676,538.00 £
Decreased by 22.00 %
from 867,375.00 £
Est sale value
1,717,590.45 £
Decreased by 5.83 %
from 1,823,872.29 £
Average area rental value
2,530.00 £/mo
Increased by 2.22 %
from 2,475.00 £/mo
Est letting value
5,693.67 £/mo
Increased by 50.00 %
from 3,795.78 £/mo
Est rental Yield
4.49 %
Increased by 31.29 %
from 3.42 %
Crime Rate
2.00 %
Unchanged by 0.00 %
from 2.00 %

Agent Activity

  • Winkworth created the listing.

Nearby Schools

NameTypeOfstedDistance
Ambler Primary School And Children'S CentreCommunity SchoolOutstanding0.27 KM
Ambler Children'S CentreChildren's Centre0.34 KM
Gillespie Primary SchoolCommunity SchoolOutstanding0.40 KM
St John'S Highbury Vale Cofe Primary SchoolVoluntary Aided SchoolOutstanding0.43 KM
Conewood Street Children'S CentreChildren's Centre0.47 KM

Images

Picture No. 19 Picture No. 23 Picture No. 10 Picture No. 08 Picture No. 04 Picture No. 17 Picture No. 14 Picture No. 12 Picture No. 13 Picture No. 16 Picture No. 15 Picture No. 11 Picture No. 07 Picture No. 18 Picture No. 06 Picture No. 05 Picture No. 03 Picture No. 09 Picture No. 20 Picture No. 21 Picture No. 22

Nearby Streets

NameAverage PriceAverage SqftDistance
Vivian Comma Close £ 000.00 KM
Ashburton Triangle £ 000.00 KM
Citizen Road £ 500,00000.00 KM
Cornwallis Square £ 250,00000.00 KM
Kings Crescent £ 000.00 KM

Nearby Transport

NameNLCTLCDistance
Finsbury Park6119FPK0.48 KM
Drayton Park6000DYP0.93 KM
Highbury And Islington6009HHY1.64 KM
Harringay6012HGY1.84 KM
Canonbury1441CNN1.85 KM

Nearby Listings

AddressPriceTypeScoreDistance
Ambler Road, London, N4 £ 1,850,000BUY8 / 100.00 KM
Ambler Road, London, N4 £ 1,600,000BUY8 / 100.04 KM
Plimsoll Road, London, N4 £ 1,850,000BUY7 / 100.06 KM
Avenell Road,, London, N5 £ 1,750,000BUY7 / 100.08 KM
Avenell Road, London, N5 £ 750,000BUYUnknown0.09 KM

Nearby Properties

AddressPriceDistance
61 Ambler Road £ 1,220,0000.02 KM
51 Ambler Road £ 1,535,0000.02 KM
55 Ambler Road £ 1,515,0000.02 KM
73 Ambler Road £ 350,0000.02 KM
77 Ambler Road £ 110,0000.02 KM