Hamilton Smith says ..
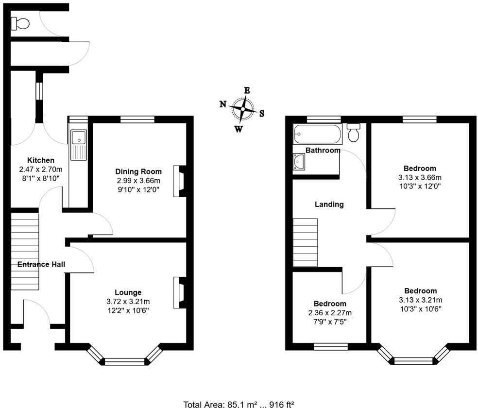
NO CHAIN -This THREE bedroom double bay house situated on the popular Dales development within walking distance of Broomhill Park. Been in the family since it was built this SPACIOUS family house benefits from an entrance hall, 2 reception rooms, 1st floor bathroom, double glazed windows, front ...
Property Oracle says ..
This three-bedroom terraced house in Ipswich is located on Kensington Road, within the Castle Hill locality. The property benefits from a relatively small garden, and its proximity to Springfield Infant School and Nursery (rated ‘Good’ by Ofsted) and several other schools is a plus for families. Ipswich train station is approximately 2.22km away, providing convenient access to other parts of the region. The house itself appears to be in need of some modernisation and updating. The interior features dated wallpaper, carpets, and fixtures. The kitchen and bathroom are particularly in need of renovation. While the property includes a garage and a shed, the overall condition detracts from its potential value. The list price of £210,000 is lower than the average house price in the area (£337,647), however, the need for significant renovations must be considered. Compared to nearby properties, the price seems relatively reasonable considering its condition and size, but prospective buyers should budget for substantial refurbishment costs.
Therefore, we give this property 5 / 10. *Disclaimer: This is our option and does constitute a recommendation or financial advice. Do your own research. *
- Price
- 6
- Condition
- 4
- Location
- 7
- Land
- 5
- Bedrooms
- 3
- Bathrooms
- 1
- Sqft (est)
- 706.00
- Lot (est)
- 916.00
The heatmap indicates the level of crime in the area. The color of the heatmap indicates the crime severity and recency.
Metrics Year-on-Year
- Average area value
- 275,000.00 £Decreased by 9.87 %
- Est sale value
- 208,270.00 £Decreased by 8.67 %
- Average area rental value
- 1,300.00 £/moIncreased by 27.45 %
- Est letting value
- 706.00 £/moUnchanged by 0.00 %
- Est rental Yield
- 5.67 %Increased by 41.40 %
- Crime Rate
- 1.00 %Unchanged by 0.00 %
Agent Activity
Hamilton Smith created the listing.
Nearby Schools
| Name | Type | Ofsted | Distance |
|---|---|---|---|
| Springfield Junior School | Academy Converter | 0.52 KM | |
| Wellington Children'S Centre | Children's Centre | 0.55 KM | |
| Meredith Children'S Centre | Children's Centre | 0.55 KM | |
| West Lodge School | Other Independent Special School | Requires improvement | 0.61 KM |
| Springfield Infant School And Nursery | Academy Converter | Good | 0.77 KM |
Images
Nearby Streets
| Name | Average Price | Average Sqft | Distance |
|---|---|---|---|
| Sherrington Road | £ 0 | 0 | 0.00 KM |
| Thetford Road | £ 0 | 0 | 0.00 KM |
| Norwich Road | £ 0 | 0 | 0.00 KM |
| Providence Lane | £ 0 | 0 | 0.00 KM |
| Wesley Way | £ 195,000 | 0 | 0.00 KM |
Nearby Transport
| Name | NLC | TLC | Distance |
|---|---|---|---|
| Ipswich | 7217 | IPS | 2.22 KM |
| Westerfield | 7226 | WFI | 3.42 KM |
| Derby Road (Ipswich) | 7212 | DBR | 5.42 KM |
Nearby Listings
| Address | Price | Type | Score | Distance |
|---|---|---|---|---|
| Kensington Road, Ipswich | £ 210,000 | BUY | 5 / 10 | 0.00 KM |
| Kensington Road, Ipswich, IP1 | £ 200,000 | BUY | Unknown | 0.04 KM |
| Norwich Road, Ipswich | £ 140,000 | BUY | 7 / 10 | 0.12 KM |
| Westholme Road, Ipswich, Suffolk, IP1 | £ 335,000 | BUY | 7 / 10 | 0.14 KM |
| Lower Dales View Road, Ipswich, IP1 | £ 340,000 | BUY | 7 / 10 | 0.14 KM |
Nearby Properties
| Address | Price | Distance |
|---|---|---|
| 52 Kensington Road | £ 53,500 | 0.01 KM |
| 24 Kensington Road | £ 138,000 | 0.01 KM |
| 54 Kensington Road | £ 135,000 | 0.01 KM |
| 26 Kensington Road | £ 218,000 | 0.01 KM |
| 58 Kensington Road | £ 153,500 | 0.01 KM |