Zenko Properties says ..
** TOP FLOOR ** TWO BEDROOMS AND TWO BATHROOMS ** PARKING ** WRAP AROUND BALCONY ** CURRENTLY LET AT £1000 PCM / AVAILABLE WITH VACANT POSSESSION **
Property Oracle says ..
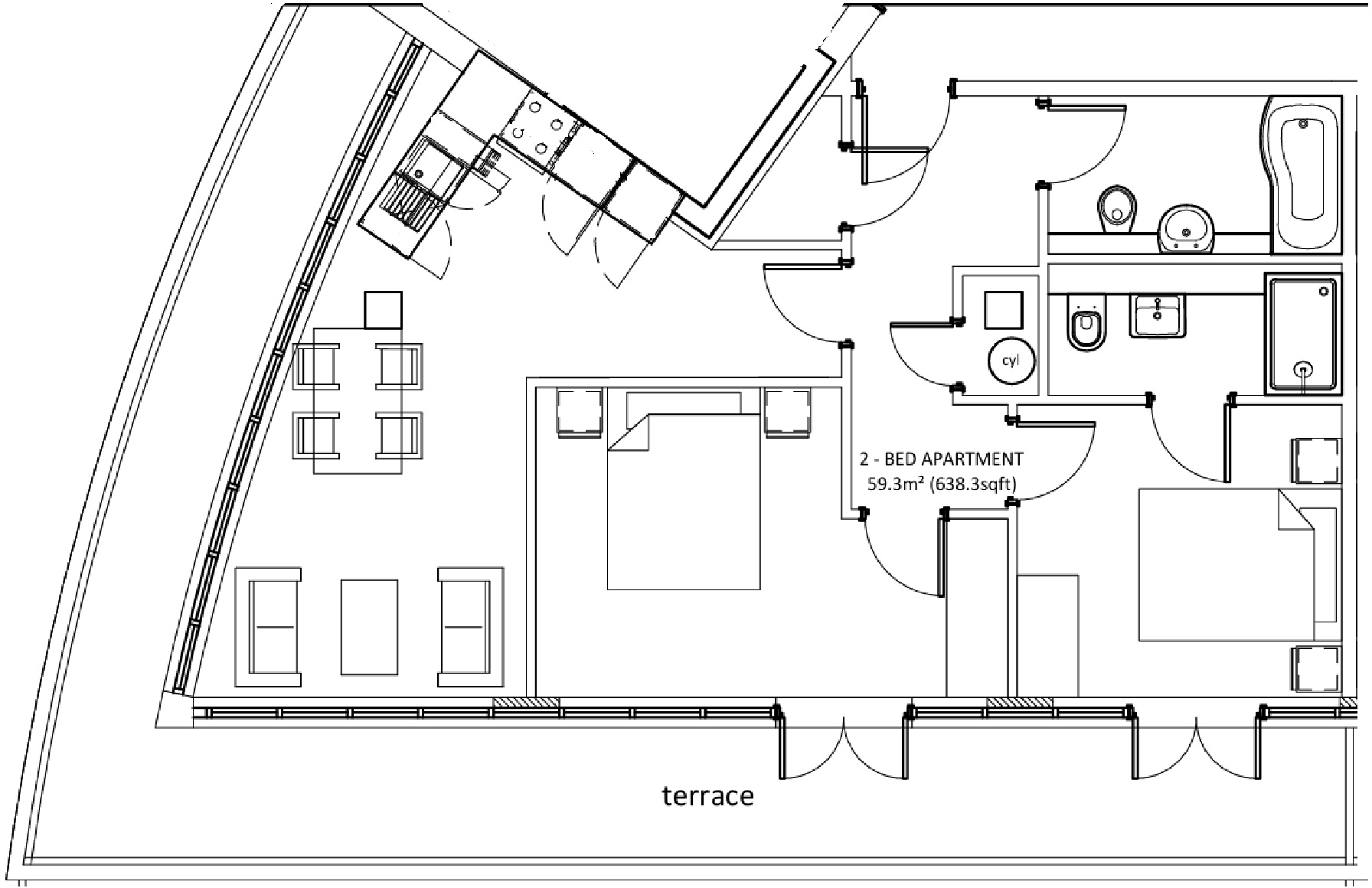
This two-bedroom, two-bathroom apartment located on East Street in Leeds is situated in the Burmantofts & Richmond Hill locality. The property is a part of a modern development, and images suggest a contemporary interior with a neutral color palette. The apartment benefits from ample natural light, modern kitchen appliances, and two bathrooms – one with a bathtub and the other with a shower. A notable feature is a wrap-around balcony which provides outdoor space, albeit communal. While the specific size of the property in square feet is stated as 638.30, many nearby listings do not provide square footage and pricing details, making direct comparisons difficult. The lack of a private garden or substantial plot size is a point of consideration. Overall, the property appears well-maintained and situated in a convenient location with good access to transport links and amenities. However, potential buyers should weigh the benefits of the apartment against the relative lack of private outdoor space and proximity to a busy main road and urban environment.
Therefore, we give this property 5 / 10. *Disclaimer: This is our option and does constitute a recommendation or financial advice. Do your own research. *
- Price
- 7
- Condition
- 8
- Location
- 7
- Land
- 1
- Bedrooms
- 2
- Bathrooms
- 2
- Sqft (est)
- 638.30
The heatmap indicates the level of crime in the area. The color of the heatmap indicates the crime severity and recency.
Metrics Year-on-Year
- Average area value
- 134,444.00 £Decreased by 13.73 %
- Est sale value
- 105,319.50 £Decreased by 25.68 %
- Average area rental value
- 1,095.00 £/moIncreased by 5.59 %
- Est letting value
- 638.30 £/moUnchanged by 0.00 %
- Est rental Yield
- 9.77 %Increased by 22.43 %
- Crime Rate
- 3.00 %Unchanged by 0.00 %
Agent Activity
Zenko Properties marked this listing as sold.
Zenko Properties created the listing.
Nearby Schools
| Name | Type | Ofsted | Distance |
|---|---|---|---|
| Mount St Mary'S Catholic High School | Voluntary Aided School | Good | 0.36 KM |
| Leeds College Of Music | Higher Education Institutions | 0.54 KM | |
| The Ruth Gorse Academy | Free Schools | Outstanding | 0.64 KM |
| University Technical College Leeds | University Technical College | Requires improvement | 0.75 KM |
| St Peter'S Church Of England Primary School, Leeds | Voluntary Aided School | Outstanding | 0.79 KM |
Images
Nearby Streets
| Name | Average Price | Average Sqft | Distance |
|---|---|---|---|
| Armouries Drive | £ 0 | 0 | 0.00 KM |
| The Close | £ 149,950 | 0 | 0.00 KM |
| Dockside | £ 0 | 0 | 0.00 KM |
| Shannon Street | £ 0 | 0 | 0.00 KM |
| St. Peters Square | £ 0 | 0 | 0.00 KM |
Nearby Transport
| Name | NLC | TLC | Distance |
|---|---|---|---|
| Leeds | 8487 | LDS | 1.99 KM |
| Burley Park | 8500 | BUY | 5.66 KM |
| Cottingley | 8505 | COT | 6.98 KM |
| Headingley | 8498 | HDY | 7.59 KM |
| Morley | 8504 | MLY | 8.29 KM |
Nearby Listings
| Address | Price | Type | Score | Distance |
|---|---|---|---|---|
| East Point, East Street, Leeds, West Yorkshire, LS9 | £ 115,000 | BUY | 5 / 10 | 0.00 KM |
| East Street, Leeds | £ 149,950 | BUY | 5 / 10 | 0.00 KM |
| East Street, Leeds, LS9 | £ 150,000 | BUY | 7 / 10 | 0.00 KM |
| East Street, Leeds, LS9 | £ 110,000 | BUY | 6 / 10 | 0.01 KM |
| East Point, East Street, Leeds, LS9 | £ 325,000 | BUY | 6 / 10 | 0.01 KM |
Nearby Properties
| Address | Price | Distance |
|---|---|---|
| 603 Timble Beck | £ 118,000 | 0.10 KM |
| 303 Timble Beck | £ 123,500 | 0.10 KM |
| 503 Timble Beck | £ 124,000 | 0.10 KM |
| 101 Timble Beck | £ 79,250 | 0.10 KM |
| 502 Timble Beck | £ 130,000 | 0.10 KM |