Renmuir Street, Tooting
By Jacksons Estate Agents
£ 500,000
Reviews
3 out of 5 stars
Jacksons Estate Agents says ..
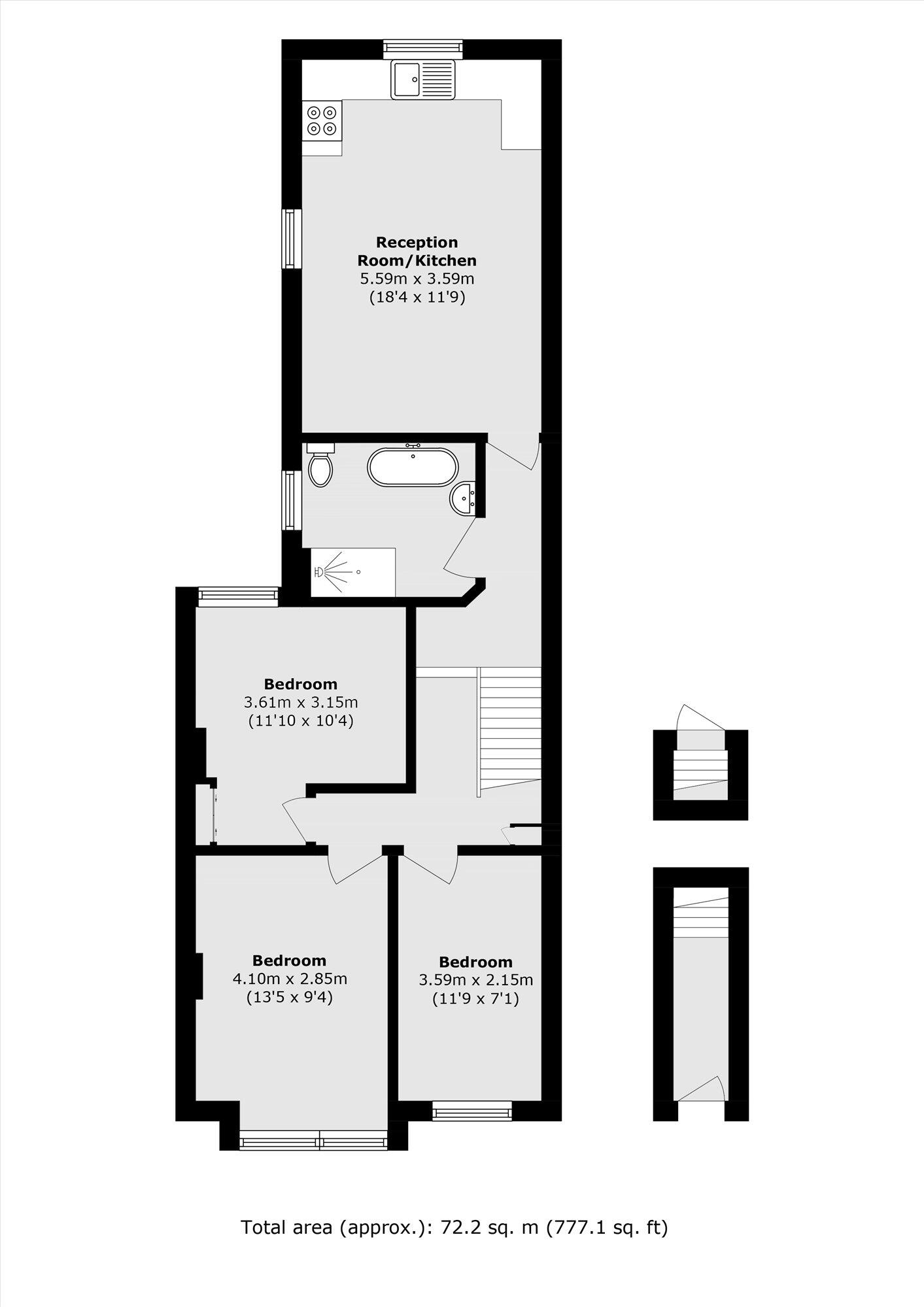
A generously sized three double bedroom first-floor period maisonette, offered with 100+ year lease. This charming property boasts three generously sized bedrooms, a open plan living/dining space, a spacious kitchen at the rear leading into a private garden, and a modern fitted bathroom which off...
Property Oracle says ..
This is a three-bedroom flat in Tooting, offered by Jacksons Estate Agents. The property is 777.15 sqft and is listed for £500,000. The flat benefits from its location in Tooting, with good access to transport, schools, and local amenities. While the interior appears to be in fair condition, the garden needs some work. The price is competitive for the area, making it an attractive opportunity.
Therefore, we give this property 6 / 10. *Disclaimer: This is our option and does constitute a recommendation or financial advice. Do your own research. *
- Price
- 7
- Condition
- 6
- Location
- 7
- Land
- 4
- Bedrooms
- 3
- Bathrooms
- 1
- Sqft (est)
- 777.15
The heatmap indicates the level of crime in the area. The color of the heatmap indicates the crime severity and recency.
Metrics Year-on-Year
- Average area value
- 685,278.00 £Increased by 17.39 %
- Est sale value
- 433,649.70 £Decreased by 18.30 %
- Average area rental value
- 2,413.00 £/moDecreased by 6.91 %
- Est letting value
- 777.15 £/moDecreased by 66.67 %
- Est rental Yield
- 4.23 %Decreased by 20.64 %
- Crime Rate
- 4.00 %Unchanged by 0.00 %
Agent Activity
Jacksons Estate Agents created the listing.
Nearby Schools
| Name | Type | Ofsted | Distance |
|---|---|---|---|
| Lavender Children'S Centre | Children's Centre Linked Site | 0.44 KM | |
| Sellincourt Primary School | Community School | Good | 0.60 KM |
| Francis Barber Pupil Referral Unit | Pupil Referral Unit | Good | 0.62 KM |
| Tooting Primary School | Free Schools | Outstanding | 0.66 KM |
| St Boniface Rc Primary School | Voluntary Aided School | Outstanding | 0.70 KM |
Images
Nearby Streets
| Name | Average Price | Average Sqft | Distance |
|---|---|---|---|
| London Road | £ 0 | 0 | 0.00 KM |
| Watson Close | £ 375,000 | 0 | 0.00 KM |
| Victoria Road | £ 608,333 | 0 | 0.00 KM |
| North Place | £ 0 | 0 | 0.00 KM |
| Laurel Close | £ 0 | 0 | 0.00 KM |
Nearby Transport
| Name | NLC | TLC | Distance |
|---|---|---|---|
| Tooting | 5389 | TOO | 0.30 KM |
| Mitcham Eastfields | 5069 | MTC | 1.79 KM |
| Balham | 5399 | BAL | 2.76 KM |
| Wandsworth Common | 5395 | WSW | 2.79 KM |
| Haydons Road | 5289 | HYR | 2.82 KM |
Nearby Listings
| Address | Price | Type | Score | Distance |
|---|---|---|---|---|
| Renmuir Street, Tooting | £ 500,000 | BUY | 6 / 10 | 0.00 KM |
| Renmuir Street, Tooting | £ 575,000 | BUY | 6 / 10 | 0.00 KM |
| Renmuir Street, Tooting | £ 525,000 | BUY | 8 / 10 | 0.02 KM |
| Glasford Street, London, SW17 | £ 525,000 | BUY | 7 / 10 | 0.04 KM |
| Longley Road, London, SW17 | £ 415,000 | BUY | 6 / 10 | 0.07 KM |
Nearby Properties
| Address | Price | Distance |
|---|---|---|
| 49 Renmuir Street | £ 518,500 | 0.03 KM |
| 47a Renmuir Street | £ 465,000 | 0.03 KM |
| 49a Renmuir Street | £ 153,000 | 0.03 KM |
| 55a Renmuir Street | £ 250,000 | 0.03 KM |
| 57 Renmuir Street | £ 24,000 | 0.03 KM |