CA
Wintergreen Boulevard, West Drayton
By Cameron Estate Agents
£ 299,000
Reviews
3 out of 5 stars
Cameron Estate Agents says ..
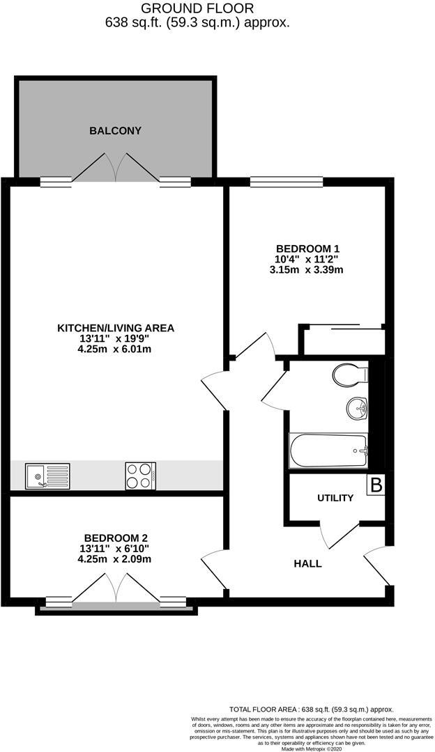
Set within an exclusive modern development, this well-presented two-bedroom apartment offers generously proportioned accommodation, complemented by a private balcony and allocated parking.
Property Oracle says ..
Therefore, we give this property 7 / 10. *Disclaimer: This is our option and does constitute a recommendation or financial advice. Do your own research. *
- Price
- 8
- Condition
- 8
- Location
- 7
- Land
- 6
- Bedrooms
- 2
- Bathrooms
- 1
- Sqft (est)
- 638.00
The heatmap indicates the level of crime in the area. The color of the heatmap indicates the crime severity and recency.
Metrics Year-on-Year
- Average area value
- 446,667.00 £Increased by 5.47 %
- Est sale value
- 357,918.00 £Increased by 26.35 %
- Average area rental value
- 1,473.00 £/moDecreased by 14.21 %
- Est letting value
- 638.00 £/moUnchanged by 0.00 %
- Est rental Yield
- 3.96 %Decreased by 18.69 %
- Crime Rate
- 12.00 %Unchanged by 0.00 %
from 423,499.00 £
from 283,272.00 £
from 1,717.00 £/mo
from 638.00 £/mo
from 4.87 %
from 12.00 %
Agent Activity
Cameron Estate Agents created the listing.
Nearby Schools
| Name | Type | Ofsted | Distance |
|---|---|---|---|
| West Drayton Academy | Academy Converter | Good | 0.82 KM |
| Cherry Lane Primary School | Community School | Good | 0.87 KM |
| Cherry Lane Children'S Centre | Children's Centre | 0.87 KM | |
| The Skills Hub | Academy Alternative Provision Converter | Good | 1.19 KM |
| Yiewsley Cornerstone Children'S Centre | Children's Centre | 1.41 KM |
Images
Nearby Streets
| Name | Average Price | Average Sqft | Distance |
|---|---|---|---|
| Oak Avenue | £ 0 | 0 | 0.00 KM |
| Weston Walk | £ 0 | 0 | 0.00 KM |
| Eastwood Road | £ 0 | 0 | 0.00 KM |
| Queens Road | £ 0 | 0 | 0.00 KM |
| Bell Avenue | £ 0 | 0 | 0.00 KM |
Nearby Transport
| Name | NLC | TLC | Distance |
|---|---|---|---|
| West Drayton | 3174 | WDT | 1.57 KM |
| Heathrow Terminals 2 And 3 (Rail Station Only) | 7090 | HXX | 3.75 KM |
| Hayes And Harlington | 3186 | HAY | 4.25 KM |
| Heathrow Terminal 5 | 9846 | HWV | 5.20 KM |
| Iver | 3170 | IVR | 5.28 KM |
Nearby Listings
| Address | Price | Type | Score | Distance |
|---|---|---|---|---|
| Wintergreen Boulevard, West Drayton | £ 299,000 | BUY | 7 / 10 | 0.00 KM |
| Hampstead House, West Drayton | £ 215,000 | BUY | 6 / 10 | 0.07 KM |
| Spring Promenade, West Drayton, Greater London, Middlesex | £ 585,000 | BUY | 7 / 10 | 0.08 KM |
| Spring Promenade, West Drayton, UB7 | £ 240,000 | BUY | 6 / 10 | 0.08 KM |
| Spring Promenade, West Drayton, Middlesex, UB7 | £ 590,000 | BUY | Unknown | 0.08 KM |
Nearby Properties
| Address | Price | Distance |
|---|---|---|
| 24 Spring Promenade | £ 600,000 | 0.08 KM |
| 14 Spring Promenade | £ 375,000 | 0.08 KM |
| 36 Spring Promenade | £ 387,500 | 0.08 KM |
| 6 Spring Promenade | £ 377,500 | 0.08 KM |
| 30 Spring Promenade | £ 377,500 | 0.08 KM |