TA
QUINTON, Dufton Road
By Taylors Estate Agents
£ 189,950
Reviews
3 out of 5 stars
Taylors Estate Agents says ..
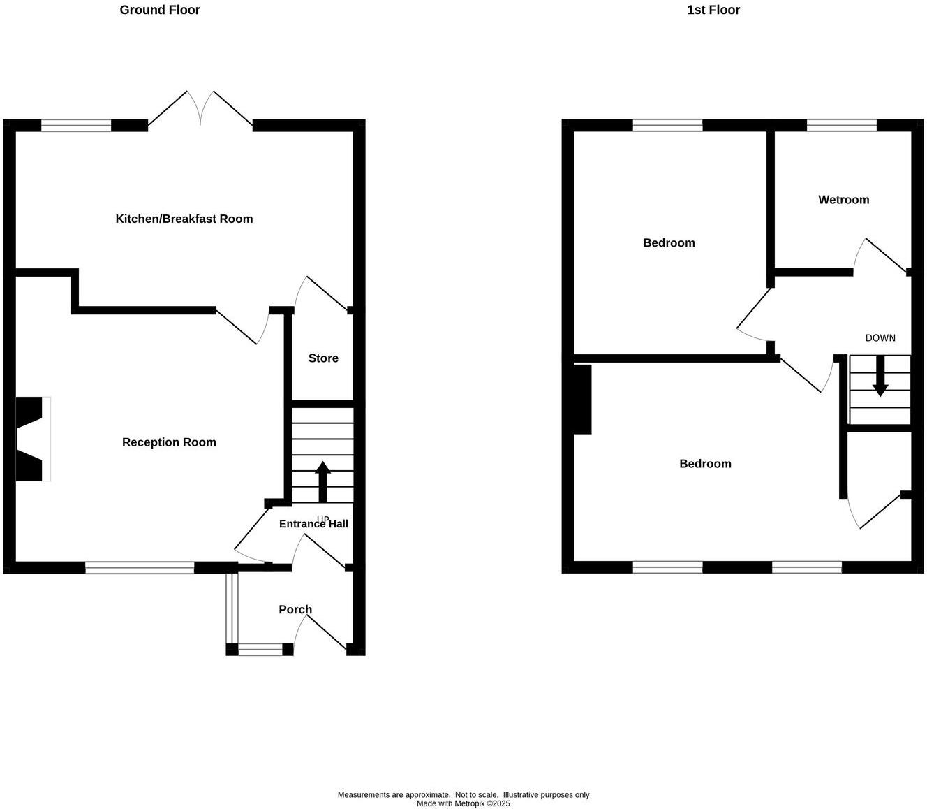
A two bedroom, mid terraced home ideal for first time buyers, having gas central heating and double glazing, comprising; welcoming hall, delightful lounge, breakfast kitchen, two double bedrooms, re fitted shower room, and lovely, sunny rear garden.
Property Oracle says ..
Therefore, we give this property 7 / 10. *Disclaimer: This is our option and does constitute a recommendation or financial advice. Do your own research. *
- Price
- 8
- Condition
- 6
- Location
- 7
- Land
- 7
- Bedrooms
- 2
- Bathrooms
- 1
- Sqft (est)
- 968.00
The heatmap indicates the level of crime in the area. The color of the heatmap indicates the crime severity and recency.
Metrics Year-on-Year
- Average area value
- 343,500.00 £Decreased by 10.23 %
- Est sale value
- 291,368.00 £Increased by 62.70 %
- Average area rental value
- 1,207.00 £/moDecreased by 5.18 %
- Est letting value
- 968.00 £/mo
- Est rental Yield
- 4.22 %Increased by 5.76 %
- Crime Rate
- 7.00 %Unchanged by 0.00 %
from 382,656.00 £
from 179,080.00 £
from 1,273.00 £/mo
from 0.00 £/mo
from 3.99 %
from 7.00 %
Agent Activity
Taylors Estate Agents created the listing.
Nearby Schools
| Name | Type | Ofsted | Distance |
|---|---|---|---|
| World'S End Junior School | Community School | Good | 0.69 KM |
| World'S End Infant And Nursery School | Community School | Good | 0.69 KM |
| Keystone Children'S Centre | Children's Centre | 0.72 KM | |
| Woodhouse Primary Academy | Academy Sponsor Led | Good | 0.78 KM |
| Welsh House Farm Community School And Special Needs Resources Base | Community School | Good | 0.80 KM |
Images
Nearby Streets
| Name | Average Price | Average Sqft | Distance |
|---|---|---|---|
| Moat Meadows | £ 256,667 | 0 | 0.00 KM |
| Woodhouse Road | £ 220,714 | 0 | 0.00 KM |
| Barnwood Road | £ 150,000 | 0 | 0.00 KM |
| Corfe Close | £ 187,500 | 0 | 0.00 KM |
| West Boulevard | £ 0 | 0 | 0.00 KM |
Nearby Transport
| Name | NLC | TLC | Distance |
|---|---|---|---|
| University (Birmingham) | 4504 | UNI | 4.92 KM |
| Smethwick Rolfe Street | 1150 | SMR | 4.94 KM |
| Selly Oak | 1105 | SLY | 5.17 KM |
| Langley Green | 4607 | LGG | 5.23 KM |
| Northfield | 1111 | NFD | 5.29 KM |
Nearby Listings
| Address | Price | Type | Score | Distance |
|---|---|---|---|---|
| QUINTON, Dufton Road | £ 189,950 | BUY | 7 / 10 | 0.00 KM |
| Dufton Road, Quinton, Birmingham | £ 170,000 | BUY | 6 / 10 | 0.01 KM |
| West Boulevard, Quinton, Birmingham | £ 250,000 | BUY | 6 / 10 | 0.06 KM |
| West Boulevard, Quinton, Birmingham, B32 | £ 250,000 | BUY | 6 / 10 | 0.07 KM |
| Dufton Road, Quinton, Birmingham | £ 195,000 | BUY | 7 / 10 | 0.09 KM |
Nearby Properties
| Address | Price | Distance |
|---|---|---|
| 20 Dufton Road | £ 140,000 | 0.01 KM |
| 41 Dufton Road | £ 113,650 | 0.01 KM |
| 33 Dufton Road | £ 77,500 | 0.01 KM |
| 40 Dufton Road | £ 86,500 | 0.01 KM |
| 25 Dufton Road | £ 140,000 | 0.01 KM |