Chancellors says ..
A two-bedroom retirement apartment situated within Swift House, an over 70's development within 0.4 miles to Maidenhead town centre. With communal facilities, the apartment is well proportioned and finished to a high standard.
Property Oracle says ..
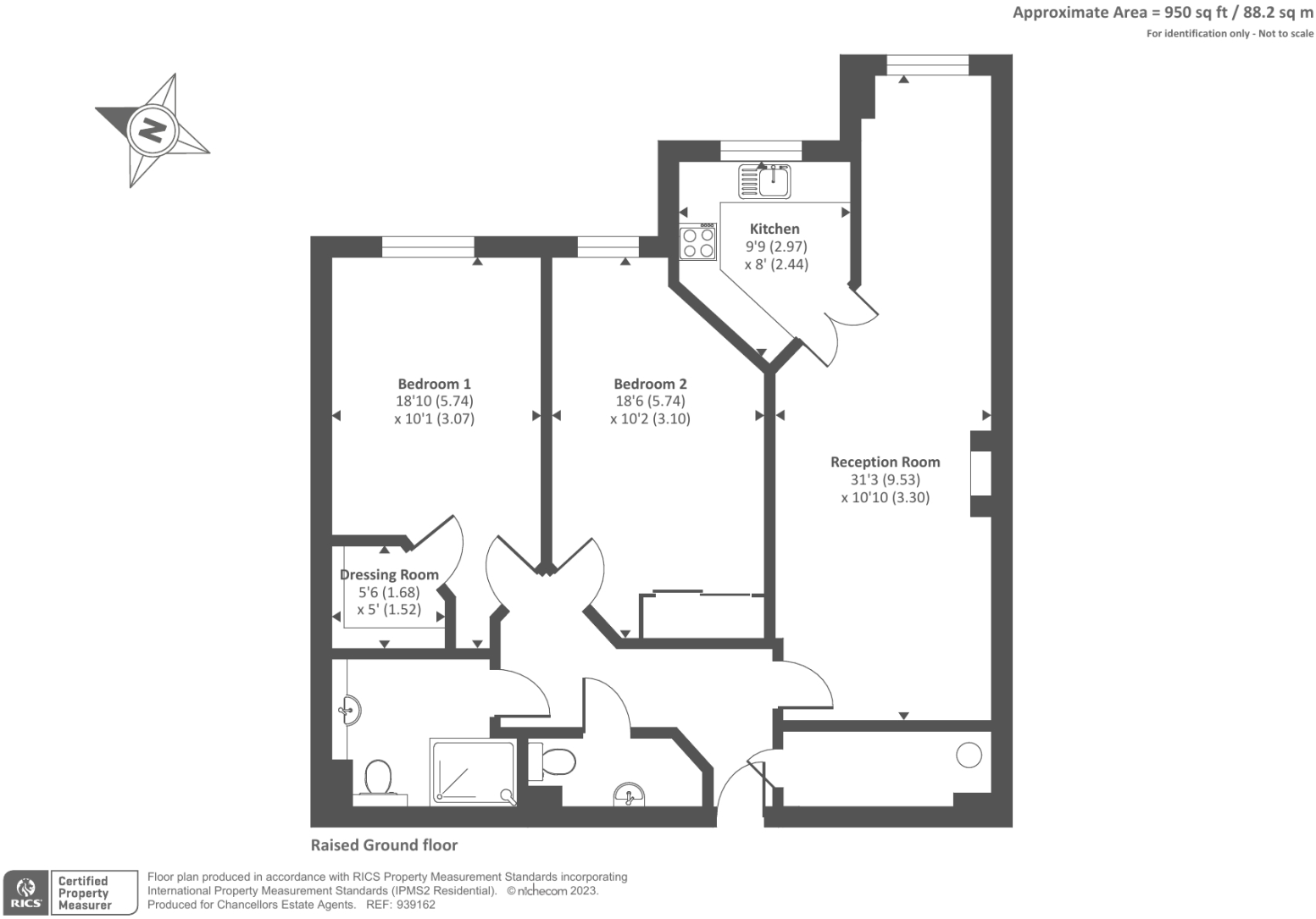
The property is a 2-bedroom apartment located in Maidenhead, Berkshire. The apartment is in a modern development and appears to be in excellent condition based on the provided images. The interior is well-maintained and features a modern kitchen and bathroom. The living area is spacious and bright. The location is convenient, with nearby transportation links and schools. However, the property lacks a garden or outdoor space, which may be a drawback for some buyers. The list price of £350,000 is lower than the average price for the area (£520,205), but it’s important to consider that the average property size is also larger (1,002 sqft compared to 950 sqft). The average price per sqft in the area is £519.00, which suggests the property might be priced competitively, although the lack of plot size information makes a definitive statement difficult. The nearby listings show a range of prices, but many lack sqft data, making direct comparisons challenging. The proximity to Maidenhead train station and several well-regarded schools is a positive aspect of the location.
Therefore, we give this property 6 / 10. *Disclaimer: This is our option and does constitute a recommendation or financial advice. Do your own research. *
- Price
- 7
- Condition
- 9
- Location
- 8
- Land
- 1
- Bedrooms
- 2
- Bathrooms
- 1
- Sqft (est)
- 950.00
The heatmap indicates the level of crime in the area. The color of the heatmap indicates the crime severity and recency.
Metrics Year-on-Year
- Average area value
- 524,714.00 £Increased by 15.54 %
- Est sale value
- 586,150.00 £Increased by 48.67 %
- Average area rental value
- 1,989.00 £/moIncreased by 4.74 %
- Est letting value
- 1,900.00 £/moIncreased by 100.00 %
- Est rental Yield
- 4.55 %Decreased by 9.36 %
- Crime Rate
- 5.00 %Unchanged by 0.00 %
Agent Activity
Chancellors created the listing.
Nearby Schools
| Name | Type | Ofsted | Distance |
|---|---|---|---|
| Highfield Preparatory School Limited | Other Independent School | 0.38 KM | |
| Claires Court Schools | Other Independent School | 0.66 KM | |
| St Luke'S Cofe Primary School | Academy Converter | Outstanding | 0.76 KM |
| Riverside Children'S Centre (Formerly Ellington) | Children's Centre | 0.87 KM | |
| St Mary'S Catholic Primary School, Maidenhead | Academy Converter | Good | 0.87 KM |
Images
Nearby Streets
| Name | Average Price | Average Sqft | Distance |
|---|---|---|---|
| Fairford Road | £ 308,333 | 0 | 0.00 KM |
| King Street | £ 0 | 0 | 0.00 KM |
| Denmark Street | £ 235,000 | 0 | 0.00 KM |
| West Street | £ 265,000 | 0 | 0.00 KM |
| Valley Walk | £ 600,000 | 0 | 0.00 KM |
Nearby Transport
| Name | NLC | TLC | Distance |
|---|---|---|---|
| Maidenhead | 3147 | MAI | 0.70 KM |
| Furze Platt | 3144 | FZP | 1.04 KM |
| Cookham | 3019 | COO | 3.75 KM |
| Taplow | 3151 | TAP | 4.93 KM |
| Bourne End | 3018 | BNE | 6.16 KM |
Nearby Listings
| Address | Price | Type | Score | Distance |
|---|---|---|---|---|
| Maidenhead, Berkshire, SL6 | £ 250,000 | BUY | 8 / 10 | 0.00 KM |
| Maidenhead, Berkshire, SL6 | £ 325,000 | BUY | 6 / 10 | 0.00 KM |
| Maidenhead, Berkshire, SL6 | £ 350,000 | BUY | 6 / 10 | 0.00 KM |
| Maidenhead, Berkshire, SL6 | £ 350,000 | BUY | 5 / 10 | 0.00 KM |
| 21 Marlow Road, Maidenhead, Berkshire, SL6 7AA | £ 235,000 | BUY | 6 / 10 | 0.06 KM |
Nearby Properties
| Address | Price | Distance |
|---|---|---|
| 45 Marlow Road | £ 990,000 | 0.09 KM |
| 2 The Crescent | £ 545,000 | 0.12 KM |
| 10 The Crescent | £ 302,500 | 0.12 KM |
| 20a The Crescent | £ 560,000 | 0.12 KM |
| 20 Bailey Close | £ 260,000 | 0.12 KM |