AL
Warren Road, London
By All in the postcode...SW19.com
£ 475,000
Reviews
2 out of 5 stars
All in the postcode...SW19.com says ..
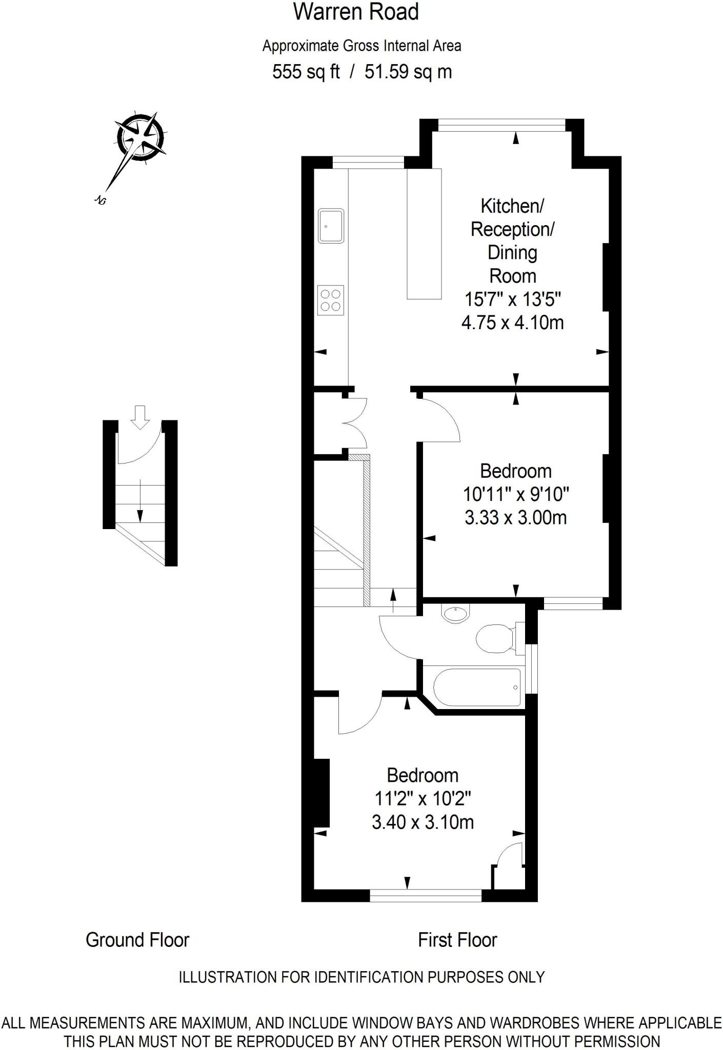
Fantastic first floor two double bedroom flat in sought after residential tree lined road in the heart of Colliers Wood. Walking distance to the Northern Line tube station and featuring an open plan kitchen, dining, and reception area, the property is well-presented throughout with a modern, st...
Property Oracle says ..
Therefore, we give this property 5 / 10. *Disclaimer: This is our option and does constitute a recommendation or financial advice. Do your own research. *
- Price
- 6
- Condition
- 7
- Location
- 8
- Land
- 2
- Bedrooms
- 2
- Bathrooms
- 0
- Sqft (est)
- 555.00
The heatmap indicates the level of crime in the area. The color of the heatmap indicates the crime severity and recency.
Metrics Year-on-Year
- Average area value
- 578,333.00 £Increased by 10.22 %
- Est sale value
- 392,385.00 £Increased by 13.48 %
- Average area rental value
- 2,070.00 £/moIncreased by 12.32 %
- Est letting value
- 1,110.00 £/moUnchanged by 0.00 %
- Est rental Yield
- 4.30 %Increased by 2.14 %
- Crime Rate
- 1.00 %Unchanged by 0.00 %
from 524,724.00 £
from 345,765.00 £
from 1,843.00 £/mo
from 1,110.00 £/mo
from 4.21 %
from 1.00 %
Agent Activity
All in the postcode...SW19.com created the listing.
Nearby Schools
| Name | Type | Ofsted | Distance |
|---|---|---|---|
| Singlegate Primary School | Community School | Outstanding | 0.50 KM |
| Sellincourt Primary School | Community School | Good | 0.60 KM |
| St George'S Hospital Medical School | Higher Education Institutions | 0.80 KM | |
| St Boniface Rc Primary School | Voluntary Aided School | Outstanding | 1.14 KM |
| All Saints' Cofe Primary School | Voluntary Aided School | Good | 1.14 KM |
Images
Nearby Streets
| Name | Average Price | Average Sqft | Distance |
|---|---|---|---|
| Holmbury Court | £ 0 | 0 | 0.00 KM |
| Douglas Court | £ 0 | 0 | 0.00 KM |
| Watson Close | £ 375,000 | 0 | 0.00 KM |
| Breakspear Gardens | £ 0 | 0 | 0.00 KM |
| North Place | £ 0 | 0 | 0.00 KM |
Nearby Transport
| Name | NLC | TLC | Distance |
|---|---|---|---|
| Tooting | 5389 | TOO | 1.29 KM |
| Haydons Road | 5289 | HYR | 1.85 KM |
| Mitcham Eastfields | 5069 | MTC | 2.46 KM |
| Earlsfield | 5584 | EAD | 2.94 KM |
| Wandsworth Common | 5395 | WSW | 3.06 KM |
Nearby Listings
| Address | Price | Type | Score | Distance |
|---|---|---|---|---|
| Warren Road, London | £ 475,000 | BUY | 5 / 10 | 0.00 KM |
| Warren Road, Colliers Wood | £ 375,000 | BUY | 6 / 10 | 0.05 KM |
| Clive Road, Colliers Wood | £ 795,000 | BUY | 5 / 10 | 0.06 KM |
| Warren Road, Colliers Wood | £ 425,000 | BUY | 6 / 10 | 0.07 KM |
| High Street, Colliers Wood, London, SW19 | £ 375,000 | BUY | 6 / 10 | 0.07 KM |
Nearby Properties
| Address | Price | Distance |
|---|---|---|
| 60a Warren Road | £ 345,000 | 0.01 KM |
| 34 Warren Road | £ 279,950 | 0.01 KM |
| 38a Warren Road | £ 29,000 | 0.01 KM |
| 20 Warren Road | £ 775,000 | 0.01 KM |
| 44a Warren Road | £ 224,000 | 0.01 KM |