Ingle Road, Chatham, Kent, ME4
By Robinson Michael & Jackson
£ 180,000
Reviews
3 out of 5 stars
Robinson Michael & Jackson says ..
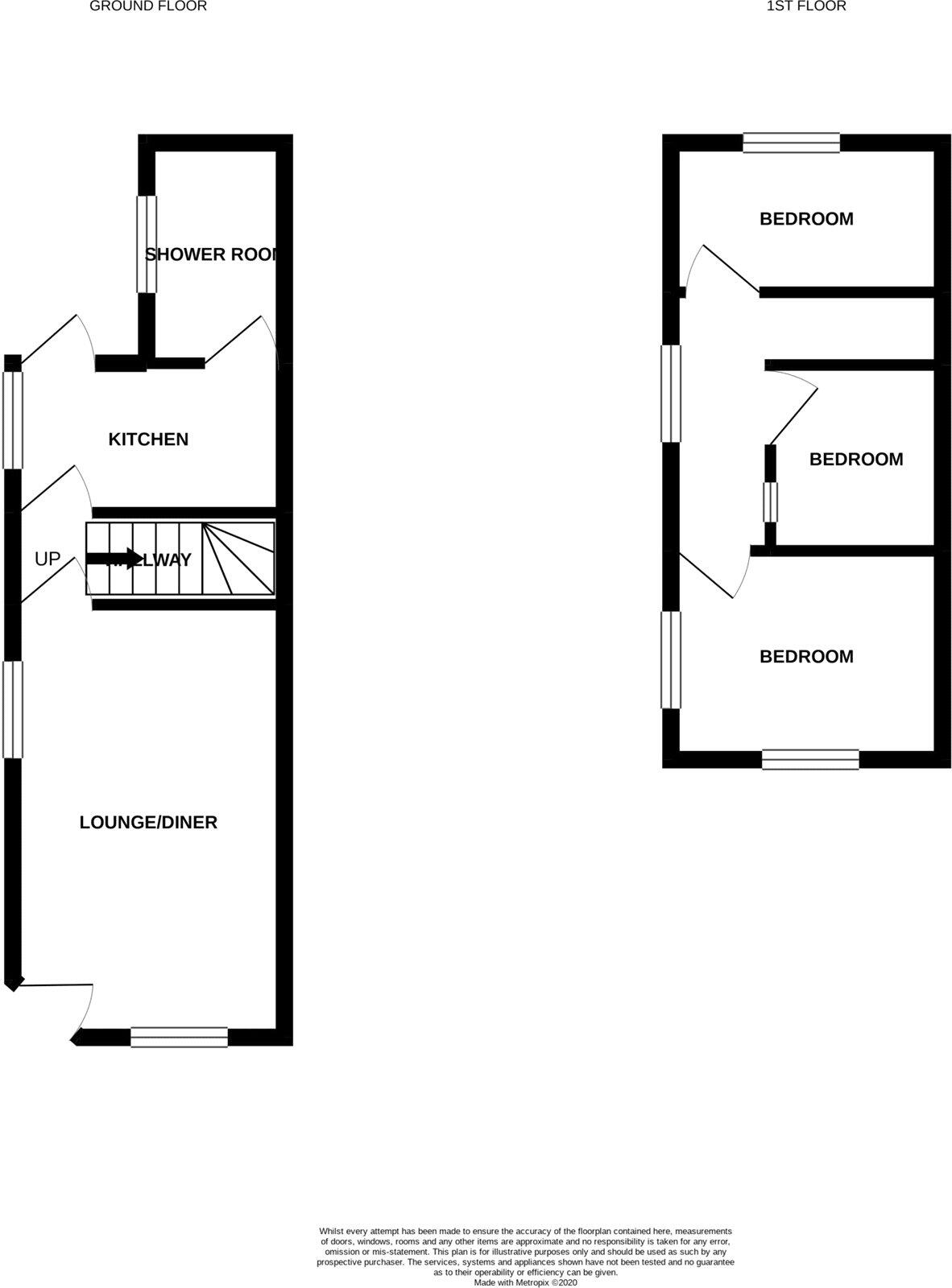
** GUIDE PRICE £180,000 - £200,000 ** Located on the conveniently located Ingle Road in Chatham, this 3-bedroom terraced property offers a fantastic opportunity for buyers or investors looking for a home with great potential. The property benefits from three bedr...
Property Oracle says ..
This end-of-terrace property on Ingle Road, Chatham, presents a good opportunity for buyers. While the property requires some renovation, its location offers convenient access to transportation and local amenities. The presence of a garden is a plus, and the price appears attractive compared to the average price per square foot in the area. The property has 3 bedrooms and 1 bathroom, making it suitable for a small family or individuals looking for extra space. Nearby schools offer a range of options, although some have lower Ofsted ratings. Overall, this property has potential for improvement and could be a good investment.
Therefore, we give this property 6 / 10. *Disclaimer: This is our option and does constitute a recommendation or financial advice. Do your own research. *
- Price
- 8
- Condition
- 4
- Location
- 6
- Land
- 6
- Bedrooms
- 3
- Bathrooms
- 1
- Sqft (est)
- 832.00
The heatmap indicates the level of crime in the area. The color of the heatmap indicates the crime severity and recency.
Metrics Year-on-Year
- Average area value
- 281,500.00 £Increased by 3.99 %
- Est sale value
- 277,888.00 £Increased by 3.73 %
- Average area rental value
- 1,328.00 £/moIncreased by 4.08 %
- Est letting value
- 832.00 £/moUnchanged by 0.00 %
- Est rental Yield
- 5.66 %Unchanged by 0.00 %
- Crime Rate
- 5.00 %Unchanged by 0.00 %
Agent Activity
Robinson Michael & Jackson created the listing.
Nearby Schools
| Name | Type | Ofsted | Distance |
|---|---|---|---|
| Blue Skies School | Other Independent Special School | Requires improvement | 0.25 KM |
| St Michael'S Rc Primary School | Voluntary Aided School | Good | 0.45 KM |
| Phoenix Primary School | Academy Sponsor Led | Requires improvement | 0.58 KM |
| St John'S Church Of England Infant School | Academy Converter | Good | 0.59 KM |
| St John Fisher Catholic Comprehensive School | Voluntary Aided School | Good | 0.75 KM |
Images
Nearby Streets
| Name | Average Price | Average Sqft | Distance |
|---|---|---|---|
| Glencoe Road | £ 0 | 0 | 0.00 KM |
| St Alban's Walk | £ 0 | 0 | 0.00 KM |
| The Mount | £ 0 | 0 | 0.00 KM |
| New Road | £ 231,105 | 0 | 0.00 KM |
| Mozart Court | £ 0 | 0 | 0.00 KM |
Nearby Transport
| Name | NLC | TLC | Distance |
|---|---|---|---|
| Chatham | 5199 | CTM | 0.69 KM |
| Rochester | 5203 | RTR | 1.88 KM |
| Gillingham (Kent) | 5169 | GLM | 3.24 KM |
| Strood (Kent) | 5191 | SOO | 3.54 KM |
| Cuxton | 5201 | CUX | 6.80 KM |
Nearby Listings
| Address | Price | Type | Score | Distance |
|---|---|---|---|---|
| Ingle Road, Chatham, Kent, ME4 | £ 180,000 | BUY | 6 / 10 | 0.00 KM |
| Ingle Road, Chatham, Kent, ME4 | £ 220,000 | BUY | 5 / 10 | 0.00 KM |
| Ingle Road, Chatham, ME4 | £ 325,000 | BUY | 7 / 10 | 0.00 KM |
| Ingle Road, Chatham | £ 315,000 | BUY | 7 / 10 | 0.03 KM |
| Ingle Road, Chatham, ME4 | £ 250,000 | BUY | 7 / 10 | 0.03 KM |
Nearby Properties
| Address | Price | Distance |
|---|---|---|
| 47 Ingle Road | £ 180,000 | 0.01 KM |
| 93 Ingle Road | £ 243,500 | 0.01 KM |
| 49 Ingle Road | £ 180,000 | 0.01 KM |
| 51 Ingle Road | £ 220,000 | 0.01 KM |
| 75 Ingle Road | £ 148,000 | 0.01 KM |