Christian Lewis says ..
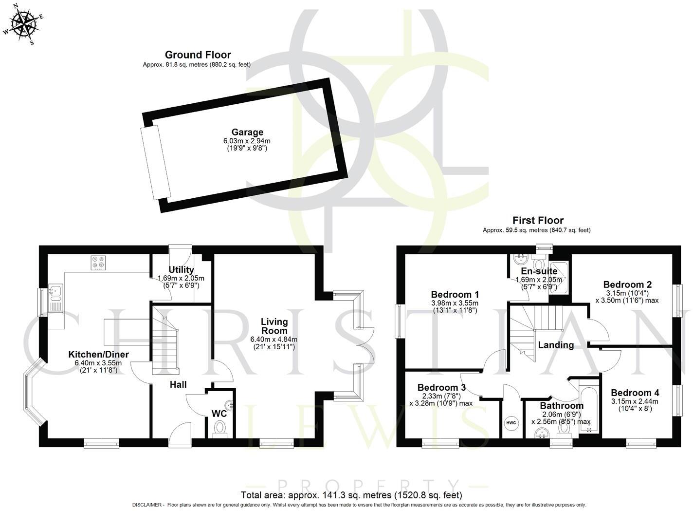
A LARGER THAN AVERAGE GARDEN FOR A MODERN DEATCHED HOME! This beautifully presented four-bedroom detached family home offers generous living space inside and out, making it the perfect choice for growing families. Set within a desirable cul-de-sac location, the property enjoys a large pl...
Property Oracle says ..
Therefore, we give this property 7 / 10. *Disclaimer: This is our option and does constitute a recommendation or financial advice. Do your own research. *
- Price
- 7
- Condition
- 8
- Location
- 8
- Land
- 7
- Bedrooms
- 4
- Bathrooms
- 2
- Sqft (est)
- 1,335.80
The heatmap indicates the level of crime in the area. The color of the heatmap indicates the crime severity and recency.
Metrics Year-on-Year
- Average area value
- 366,352.00 £Increased by 17.02 %
- Est sale value
- 370,016.60 £Increased by 3.75 %
- Average area rental value
- 875.00 £/moDecreased by 12.24 %
- Est letting value
- 0.00 £/mo
- Est rental Yield
- 2.87 %Decreased by 24.87 %
- Crime Rate
- 12.00 %Unchanged by 0.00 %
from 313,055.00 £
from 356,658.60 £
from 997.00 £/mo
from 0.00 £/mo
from 3.82 %
from 12.00 %
Agent Activity
Christian Lewis created the listing.
Nearby Schools
| Name | Type | Ofsted | Distance |
|---|---|---|---|
| Bengeworth Ce Academy | Academy Converter | 1.15 KM | |
| Evesham Nursery School | Local Authority Nursery School | Good | 1.58 KM |
| Prince Henry'S High School | Academy Converter | Outstanding | 1.64 KM |
| The De Montfort School | Academy Sponsor Led | 1.74 KM | |
| Spring Vale Children'S Centre | Children's Centre Linked Site | 1.78 KM |
Images
Nearby Streets
| Name | Average Price | Average Sqft | Distance |
|---|---|---|---|
| Ellison Close | £ 550,000 | 0 | 0.00 KM |
| Wych Elm Grove | £ 0 | 0 | 0.00 KM |
| Russet Close | £ 0 | 0 | 0.00 KM |
| Gladstone Avenue | £ 0 | 0 | 0.00 KM |
| Jenner Drive | £ 206,250 | 0 | 0.00 KM |
Nearby Transport
| Name | NLC | TLC | Distance |
|---|---|---|---|
| Evesham | 4740 | EVE | 2.27 KM |
Nearby Listings
| Address | Price | Type | Score | Distance |
|---|---|---|---|---|
| Ellison Close, Evesham | £ 420,000 | BUY | 7 / 10 | 0.00 KM |
| Ellison Close , Evesham, WR11 3JN | £ 230,000 | BUY | 7 / 10 | 0.00 KM |
| Ellison Close, Evesham | £ 230,000 | BUY | 7 / 10 | 0.04 KM |
| Ellison Close, Evesham | £ 230,000 | BUY | 7 / 10 | 0.04 KM |
| Ellison Close, Evesham | £ 420,000 | BUY | 8 / 10 | 0.05 KM |
Nearby Properties
| Address | Price | Distance |
|---|---|---|
| 11 Crump Way | £ 164,995 | 0.10 KM |
| 30 Crump Way | £ 300,000 | 0.13 KM |
| 8 Codling Road | £ 267,500 | 0.14 KM |
| 12 Codling Road | £ 177,000 | 0.14 KM |
| 18 Codling Road | £ 169,000 | 0.14 KM |