Stapleton Long says ..
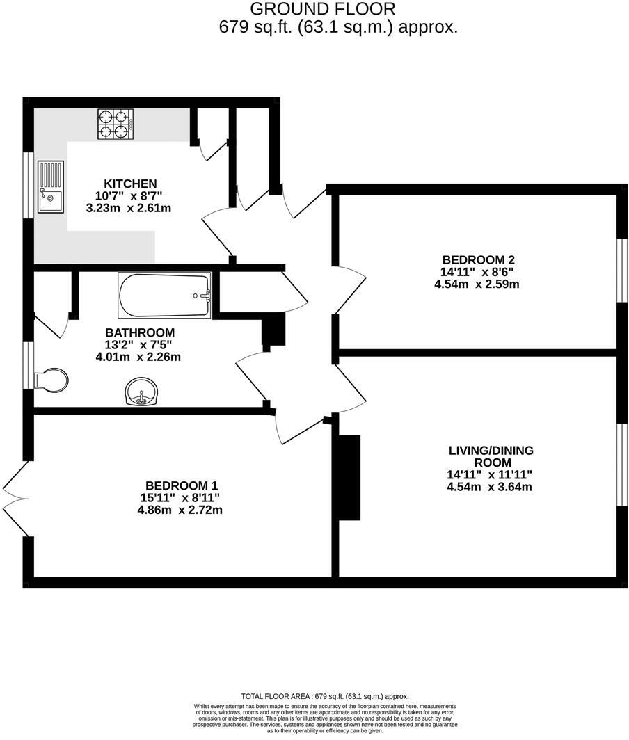
This stunning ground floor flat has been refurbished to a very high standard, the property comprises of entrance hall with storage cupboards, two double bedrooms, main reception room, bathroom and fully fitted kitchen with integrated appliances. Other benefits include gas central heating, double ...
Property Oracle says ..
This two-bedroom flat located on Hamilton Road in Gipsy Hill, Lambeth, is presented in excellent condition. The property has undergone a recent refurbishment, boasting modern features in the kitchen and bathroom. Images display contemporary flooring, and neutral colour palettes throughout. The layout appears functional and makes good use of space. A small common garden may be associated with the development. The location offers good access to public transport via nearby train stations and is within reach of several well-regarded schools. While no specific street data is available, surrounding street average prices range from £175,000 to £807,500 with variations in property type and size. This highlights the price diversity found in the area, and it’s not possible to establish price per sq ft. Overall, the property provides a decent package for potential buyers, striking a balance between location, condition, and cost; however, the lack of substantial private outdoor space is a limitation. Further investigation of the immediate vicinity and local market conditions would be recommended before committing to purchase.
Therefore, we give this property 6 / 10. *Disclaimer: This is our option and does constitute a recommendation or financial advice. Do your own research. *
- Price
- 7
- Condition
- 8
- Location
- 7
- Land
- 2
- Bedrooms
- 2
- Bathrooms
- 1
- Sqft (est)
- 679.20
The heatmap indicates the level of crime in the area. The color of the heatmap indicates the crime severity and recency.
Metrics Year-on-Year
- Average area value
- 455,829.00 £Decreased by 18.48 %
- Est sale value
- 338,241.60 £Decreased by 36.07 %
- Average area rental value
- 2,118.00 £/moDecreased by 3.99 %
- Est letting value
- 1,358.40 £/moDecreased by 33.33 %
- Est rental Yield
- 5.58 %Increased by 17.97 %
- Crime Rate
- 9.00 %Unchanged by 0.00 %
Agent Activity
Stapleton Long created the listing.
Nearby Schools
| Name | Type | Ofsted | Distance |
|---|---|---|---|
| Elm Wood School | Community School | Good | 0.07 KM |
| Kingswood Primary School | Community School | Good | 0.53 KM |
| Kingswood Primary School & Children'S Centre | Children's Centre | 0.72 KM | |
| Kingswood Children'S Centre At Norwood Park | Children's Centre Linked Site | 0.72 KM | |
| Park Campus Academy | Academy Alternative Provision Converter | Good | 0.74 KM |
Images
Nearby Streets
| Name | Average Price | Average Sqft | Distance |
|---|---|---|---|
| St Benards Close | £ 302,500 | 0 | 0.00 KM |
| St Gothard Road | £ 0 | 0 | 0.00 KM |
| Park Hall Road | £ 0 | 0 | 0.00 KM |
| Berridge Road | £ 500,000 | 0 | 0.00 KM |
| Bristow Road | £ 0 | 0 | 0.00 KM |
Nearby Transport
| Name | NLC | TLC | Distance |
|---|---|---|---|
| West Dulwich | 5086 | WDU | 1.04 KM |
| Gipsy Hill | 5363 | GIP | 1.20 KM |
| West Norwood | 5438 | WNW | 1.29 KM |
| Sydenham Hill | 5085 | SYH | 1.31 KM |
| Tulse Hill | 5390 | TUH | 1.71 KM |
Nearby Listings
| Address | Price | Type | Score | Distance |
|---|---|---|---|---|
| Hamilton Road, London | £ 335,000 | BUY | 6 / 10 | 0.00 KM |
| Carnac Street, West Norwood, London, SE27 | £ 475,000 | BUY | 7 / 10 | 0.04 KM |
| Carnac Street, London | £ 325,000 | BUY | 6 / 10 | 0.05 KM |
| Violette Szabo House, Hamilton road London, SE27 | £ 335,000 | BUY | 6 / 10 | 0.08 KM |
| 45 Carnac Street, Norwood, London, SE27 9RR | £ 500,000 | BUY | 5 / 10 | 0.09 KM |
Nearby Properties
| Address | Price | Distance |
|---|---|---|
| 23 Carnac Street | £ 60,500 | 0.05 KM |
| 17 Carnac Street | £ 807,500 | 0.05 KM |
| 25 Carnac Street | £ 75,000 | 0.05 KM |
| 43 Carnac Street | £ 440,000 | 0.05 KM |
| 21a Carnac Street | £ 175,000 | 0.05 KM |