Kingsbridge Road, Morden
EL

Kingsbridge Road, Morden

By Ellisons

£ 585,000

Reviews

3 out of 5 stars

Ellisons says ..

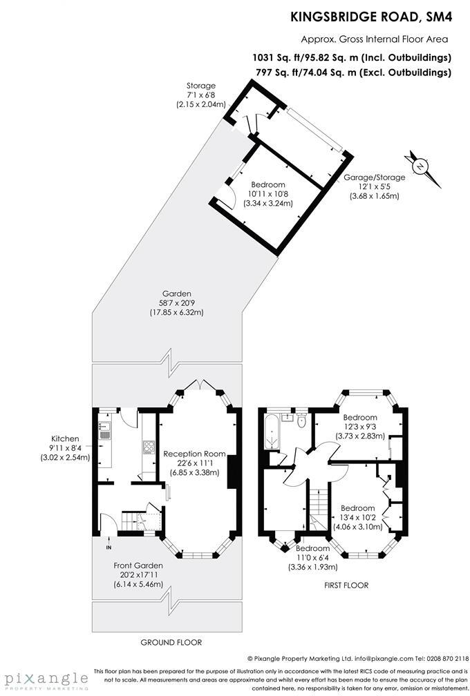
A well presented three bedroom terraced ‘Crouch-built’ Kingston style period family home enviably located in a sought after residential road in Lower Morden, boasting a beautiful 58ft south-west facing garden and garage at the rear which has been converted to create a fourth bedroom/office room. ...

Property Oracle says ..

This is a three-bedroom terraced house on Kingsbridge Road, Morden. The property offers a good amount of living space and a well-maintained garden. While the house is in generally good condition, some areas could benefit from modernisation. The location is convenient for families, with nearby schools and transportation links. The asking price of £585,000 seems reasonable given the property’s features and recent sales in the area. The property is a traditional build.

Therefore, we give this property 7 / 10. *Disclaimer: This is our option and does constitute a recommendation or financial advice. Do your own research. *

Price
7
Condition
7
Location
7
Land
8
Bedrooms
3
Bathrooms
1
Sqft (est)
2,461.65

The heatmap indicates the level of crime in the area. The color of the heatmap indicates the crime severity and recency.

Metrics Year-on-Year

Average area value
575,778.00 £
Increased by 14.54 %
from 502,698.00 £
Est sale value
1,243,133.25 £
Decreased by 6.48 %
from 1,329,291.00 £
Average area rental value
2,096.00 £/mo
Decreased by 8.39 %
from 2,288.00 £/mo
Est letting value
2,461.65 £/mo
Decreased by 50.00 %
from 4,923.30 £/mo
Est rental Yield
4.37 %
Decreased by 19.96 %
from 5.46 %
Crime Rate
0.00 %
from 0.00 %

Agent Activity

  • Ellisons created the listing.

Nearby Schools

NameTypeOfstedDistance
Lower Morden Children'S CentreChildren's Centre Linked Site0.28 KM
Aragon Primary SchoolAcademy ConverterGood0.40 KM
Hatfeild Primary SchoolCommunity SchoolGood0.77 KM
St John Fisher Rc Primary SchoolVoluntary Aided SchoolGood0.78 KM
St Cecilia'S Catholic Primary SchoolVoluntary Aided SchoolOutstanding1.19 KM

Images

Kingsbridge Road Kingsbridge Road Kingsbridge Road Kingsbridge Road Kingsbridge Road Kingsbridge Road Kingsbridge Road Kingsbridge Road Kingsbridge Road Kingsbridge Road Kingsbridge Road Kingsbridge Road Kingsbridge Road Kingsbridge Road Kingsbridge Road Kingsbridge Road Kingsbridge Road Kingsbridge Road Kingsbridge Road Kingsbridge Road

Nearby Streets

NameAverage PriceAverage SqftDistance
Essex Close £ 000.00 KM
Pig Farm Alley £ 000.00 KM
Coniston Close £ 383,92900.00 KM
Stanton Close £ 000.00 KM
Trafalgar Avenue £ 396,25000.00 KM

Nearby Transport

NameNLCTLCDistance
Motspur Park5645MOT1.93 KM
Raynes Park5569RAY2.46 KM
Worcester Park5579WCP2.50 KM
Wimbledon Chase5612WBO2.62 KM
South Merton5292SMO2.64 KM

Nearby Listings

AddressPriceTypeScoreDistance
Kingsbridge Road, Morden £ 585,000BUY7 / 100.00 KM
Kingsbridge Road, Morden, SM4 £ 475,000BUY5 / 100.03 KM
Lynmouth Avenue, Morden, SM4 £ 575,000BUY7 / 100.07 KM
Lynmouth Avenue, Morden, SM4 £ 650,000BUY8 / 100.07 KM
Kingsbridge Road, Morden, SM4 £ 600,000BUY7 / 100.08 KM

Nearby Properties

AddressPriceDistance
289 Kingsbridge Road £ 390,0000.07 KM
285 Kingsbridge Road £ 409,0000.07 KM
301 Kingsbridge Road £ 425,0000.07 KM
279 Kingsbridge Road £ 360,0000.07 KM
265 Kingsbridge Road £ 375,0000.07 KM