WalkersXchange says ..
Inviting offers between £380,000 and £400,000 this four bedroom detached property in Sunniside, positioned on a beautiful corner plot with mature trees enclosing the gardens. This family home has great access to schools, local amenities and convenient transport links which make it ...
Property Oracle says ..
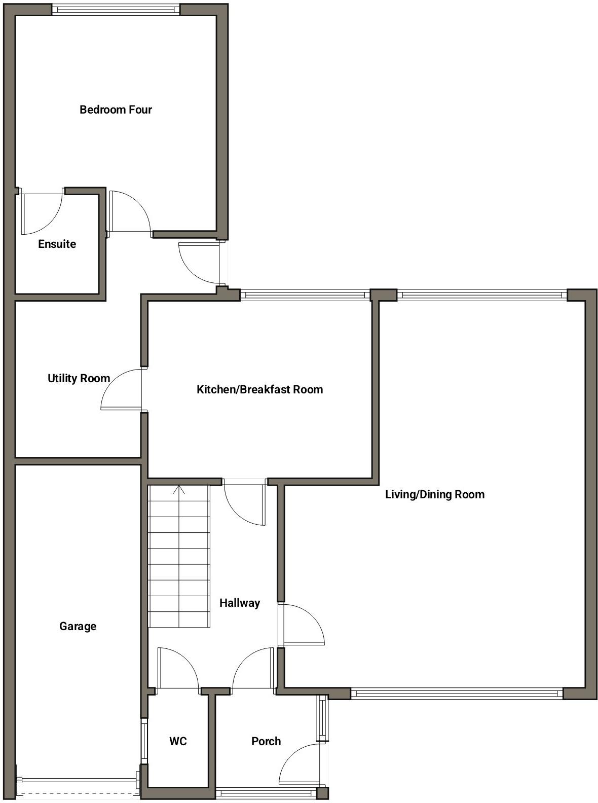
Kingsway, Sunniside is located in the Whickham South And Sunniside area of Gateshead, Tyne and Wear. The property is a four-bedroom detached house with two bathrooms, and a total area of 890 sqft. It’s listed at £380,000. The average house price in the area is £272,679, with an average price per sqft of £244. This property is smaller than average at 890 sqft compared to the average of 1,114 sqft. Nearby properties range in price from £5,650 to £300,000, indicating a wide variation in property types and values within the immediate vicinity. The lack of sqft data for these nearby properties makes direct comparison difficult. The property benefits from being close to several outstanding-rated primary schools (Clover Hill Community Primary School and Whickham Parochial Church Of England Primary School), and a good-rated secondary school (Whickham School). These schools are all within a reasonable distance, making the location attractive to families. Several train stations are also within a reasonable distance, providing good transport links. Based on the images provided, the property appears to be in good condition. The interior is well-maintained and modern, with a recently updated kitchen and bathrooms. There is evidence of a recently fitted wood burning stove. The exterior also appears to be well-maintained. The property includes a garden with a patio area and a detached garage. The size of the garden appears to be relatively modest. Considering the property’s good condition, convenient location near schools and transport links, and the inclusion of a garden and garage, the list price of £380,000 appears to be at the higher end of the market value for the area. However, the smaller size of the property compared to the area average should be considered. The final price is likely to depend on buyer demand and negotiation.
Therefore, we give this property 7 / 10. *Disclaimer: This is our option and does constitute a recommendation or financial advice. Do your own research. *
- Price
- 7
- Condition
- 8
- Location
- 9
- Land
- 6
- Bedrooms
- 4
- Bathrooms
- 2
- Sqft (est)
- 890.00
The heatmap indicates the level of crime in the area. The color of the heatmap indicates the crime severity and recency.
Metrics Year-on-Year
- Average area value
- 372,500.00 £Increased by 27.60 %
- Est sale value
- 603,420.00 £Increased by 268.48 %
- Average area rental value
- 750.00 £/moDecreased by 20.97 %
- Est letting value
- 890.00 £/mo
- Est rental Yield
- 2.42 %Decreased by 37.95 %
- Crime Rate
- 13.00 %Unchanged by 0.00 %
Agent Activity
WalkersXchange created the listing.
Nearby Schools
| Name | Type | Ofsted | Distance |
|---|---|---|---|
| Clover Hill Community Primary School | Community School | Outstanding | 1.15 KM |
| Whickham Parochial Church Of England Primary School | Voluntary Controlled School | Outstanding | 1.32 KM |
| Whickham School | Academy Converter | Good | 1.45 KM |
| Fellside Community Primary School | Community School | Outstanding | 1.60 KM |
| Washingwell Community Primary School | Community School | Good | 1.87 KM |
Images
Nearby Streets
| Name | Average Price | Average Sqft | Distance |
|---|---|---|---|
| Highfield | £ 0 | 0 | 0.00 KM |
| Riding Barnes Way | £ 0 | 0 | 0.00 KM |
| Orchard Close | £ 0 | 0 | 0.00 KM |
| Cloverhill | £ 0 | 0 | 0.00 KM |
| Dykenook Close | £ 0 | 0 | 0.00 KM |
Nearby Transport
| Name | NLC | TLC | Distance |
|---|---|---|---|
| Metrocentre | 7725 | MCE | 3.80 KM |
| Dunston | 7744 | DOT | 4.94 KM |
| Blaydon | 7503 | BLO | 5.47 KM |
| Newcastle | 7728 | NCL | 8.34 KM |
| Manors | 7603 | MAS | 9.77 KM |
Nearby Listings
| Address | Price | Type | Score | Distance |
|---|---|---|---|---|
| Kingsway, Sunniside | £ 380,000 | BUY | 7 / 10 | 0.00 KM |
| Coanwood Way, Sunniside, Newcastle Upon Tyne | £ 150,000 | BUY | 7 / 10 | 0.08 KM |
| Catton Grove, Sunniside, NE16 | £ 245,000 | BUY | 8 / 10 | 0.18 KM |
| Calder Walk, Sunniside, NE16 | £ 115,000 | BUY | 7 / 10 | 0.21 KM |
| Hole Lane, Sunniside, NE16 | £ 395,000 | BUY | 7 / 10 | 0.22 KM |
Nearby Properties
| Address | Price | Distance |
|---|---|---|
| 5 Coanwood Way | £ 249,950 | 0.10 KM |
| 12 Coanwood Way | £ 122,000 | 0.10 KM |
| 38 Coanwood Way | £ 125,000 | 0.10 KM |
| 8 Coanwood Way | £ 134,250 | 0.10 KM |
| 36 Coanwood Way | £ 225,000 | 0.10 KM |