LA
Dalbeattie Braes, Chapelhall, Airdrie, ML6
By Lanarkshire Law Estate Agents Limited
£ 244,995
Reviews
3 out of 5 stars
Lanarkshire Law Estate Agents Limited says ..
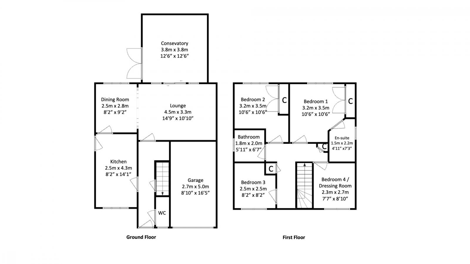
4-Bedroom Detached Home, Dalbeattie Braes, ChapelhallSet within the sought-after Dalbeattie Braes development, built in the early 2000s, this impressive detached villa offers generous living space, excellent storage, and a superb location for family life.
Property Oracle says ..
Therefore, we give this property 7 / 10. *Disclaimer: This is our option and does constitute a recommendation or financial advice. Do your own research. *
- Price
- 8
- Condition
- 8
- Location
- 6
- Land
- 7
- Bedrooms
- 4
- Bathrooms
- 3
The heatmap indicates the level of crime in the area. The color of the heatmap indicates the crime severity and recency.
Metrics Year-on-Year
- Average area value
- 925,000.00 £Increased by 139.51 %
- Average area rental value
- 825.00 £/moDecreased by 10.71 %
- Est rental Yield
- 1.07 %Decreased by 62.72 %
- Crime Rate
- 0.00 %
from 386,204.00 £
from 924.00 £/mo
from 2.87 %
from 0.00 %
Agent Activity
Lanarkshire Law Estate Agents Limited created the listing.
Images
Nearby Streets
| Name | Average Price | Average Sqft | Distance |
|---|---|---|---|
| Dalbeattie Braes | £ 239,997 | 0 | 0.00 KM |
| Kirkandrews Place | £ 200,000 | 0 | 0.00 KM |
| Pennine Grove | £ 161,248 | 0 | 0.00 KM |
| Lammermuir Way | £ 194,874 | 0 | 0.00 KM |
| Dundrennan Drive | £ 0 | 0 | 0.00 KM |
Nearby Transport
| Name | NLC | TLC | Distance |
|---|---|---|---|
| Drumgelloch | 9757 | DRU | 3.14 KM |
| Carfin | 9877 | CRF | 3.92 KM |
| Holytown | 9738 | HLY | 4.59 KM |
| Airdrie | 9759 | ADR | 5.21 KM |
| Cleland | 9718 | CEA | 5.29 KM |
Nearby Listings
| Address | Price | Type | Score | Distance |
|---|---|---|---|---|
| Dalbeattie Braes, Chapelhall, Airdrie, ML6 | £ 244,995 | BUY | 7 / 10 | 0.00 KM |
| Dalbeattie Braes, Airdrie, ML6 | £ 245,000 | BUY | 7 / 10 | 0.08 KM |
| Dundrennan Drive, Chapelhall | £ 293,500 | BUY | Unknown | 0.26 KM |
| Lammermuir Way, Chapelhall, ML6 | £ 149,995 | BUY | 7 / 10 | 0.28 KM |
| McPherson Crescent, Chapelhall, Airdrie | £ 115,000 | BUY | 6 / 10 | 0.34 KM |