The Dell, Woodford Green
CA

The Dell, Woodford Green

By Caplen Estates

£ 1,750,000

Reviews

3 out of 5 stars

Caplen Estates says ..

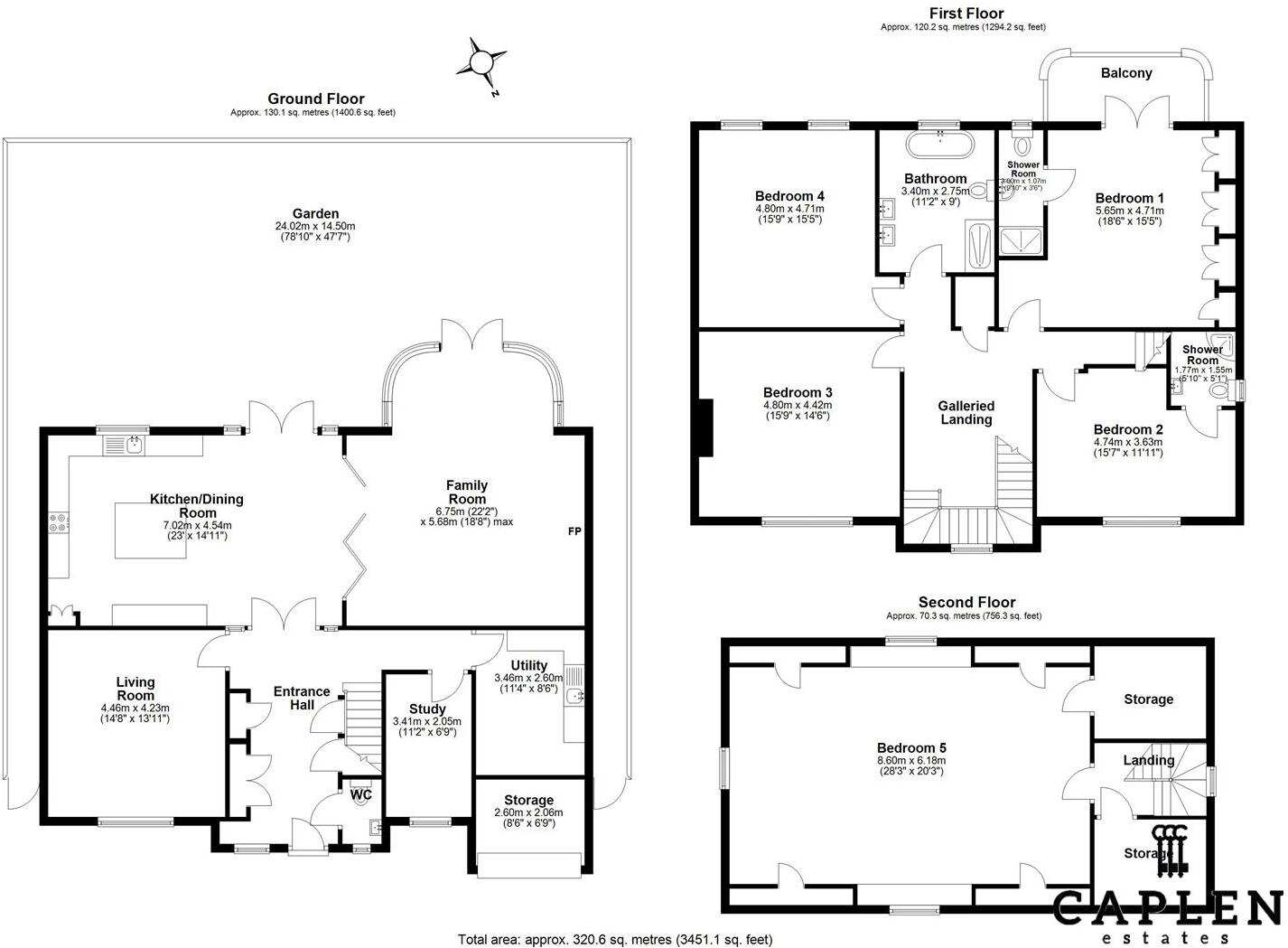
Nestled in the charming area of Woodford Green, The Dell presents an exceptional opportunity to acquire a stunning detached house which is "Chain Free" and boasts an impressive 3,451 square feet of living space. This remarkable property offers the perfect blend for entertaining guests or enjoying...

Property Oracle says ..

This is a well-presented, modern detached house in a sought-after location in Woodford Green. The property boasts five bedrooms, three bathrooms, and a good-sized garden. The interiors are modern and well-maintained, with a recently renovated kitchen and bathrooms. The property also benefits from off-street parking and a garage. While the asking price is above the local average, the property’s size, condition, and location justify the premium.

Therefore, we give this property 7 / 10. *Disclaimer: This is our option and does constitute a recommendation or financial advice. Do your own research. *

Price
6
Condition
9
Location
8
Land
7
Bedrooms
5
Bathrooms
3

The heatmap indicates the level of crime in the area. The color of the heatmap indicates the crime severity and recency.

Metrics Year-on-Year

Average area value
960,000.00 £
Increased by 4.36 %
from 919,894.00 £
Average area rental value
1,533.00 £/mo
Decreased by 30.63 %
from 2,210.00 £/mo
Est rental Yield
1.92 %
Decreased by 33.33 %
from 2.88 %
Crime Rate
3.00 %
Unchanged by 0.00 %
from 3.00 %

Agent Activity

  • Caplen Estates created the listing.

Nearby Schools

NameTypeOfstedDistance
Bancrofts SchoolOther Independent School0.28 KM
Bancrofts Preparatory SchoolOther Independent School0.28 KM
Wells Primary SchoolCommunity SchoolOutstanding0.43 KM
Avon House SchoolOther Independent School0.70 KM
Trinity Catholic High SchoolVoluntary Aided SchoolOutstanding0.97 KM

Images

4D4A3369.JPG 4D4A3307.jpg 4D4A3302.jpg 4D4A3327.jpg 4D4A3257.jpg 4D4A3252.jpg 4D4A3297.jpg 4D4A3272.jpg 4D4A3226.jpg 4D4A3236.jpg 4D4A3250.jpg 4D4A3230.jpg 4D4A3285.jpg 4D4A3150.jpg 4D4A3160.jpg 4D4A3145.jpg 4D4A3210.jpg 4D4A3185.jpg 4D4A3180.jpg 4D4A3206.jpg 4D4A3201.jpg 4D4A3334.jpg 4D4A3190.jpg 4D4A3220.jpg 4D4A3216.jpg 4D4A3165.jpg 4D4A3170.jpg 4D4A3342.jpg 4D4A3337.jpg 4D4A3352.jpg 4D4A3347.jpg DJI_20251010111527_0298_D copy.jpg DJI_20251010152316_0305_D copy.jpg 4D4A3357.jpg

Nearby Streets

NameAverage PriceAverage SqftDistance
Forest Close £ 000.00 KM
Belmont Close £ 1,566,66700.00 KM
Chandos Close £ 000.00 KM
Cromer Road £ 525,00000.00 KM
Nursery Close £ 000.00 KM

Nearby Transport

NameNLCTLCDistance
Chingford6914CHI2.58 KM
Highams Park6919HIP3.50 KM
Wood Street6954WST5.10 KM
Leytonstone High Road7403LER6.69 KM
Walthamstow Central6953WHC6.81 KM

Nearby Listings

AddressPriceTypeScoreDistance
The Dell, Woodford Green, IG8 £ 1,750,000BUY7 / 100.00 KM
The Dell, Woodford Green £ 1,750,000BUY7 / 100.00 KM
The Dell, Woodford Green, IG8 £ 2,750,000BUY7 / 100.03 KM
The Glade, Woodford Green £ 1,500,000BUY7 / 100.06 KM
The Glade, Woodford Green £ 1,750,000BUY7 / 100.09 KM

Nearby Properties

AddressPriceDistance
3 The Dell £ 2,200,0000.01 KM
13 The Dell £ 1,050,0000.01 KM
8 The Dell £ 780,0000.01 KM
10 The Dell £ 1,000,0000.01 KM
6 The Dell £ 1,300,0000.01 KM