JA
Harbour Terrace, Boscastle, PL35
By Jackie Stanley
£ 625,000
Reviews
4 out of 5 stars
Jackie Stanley says ..
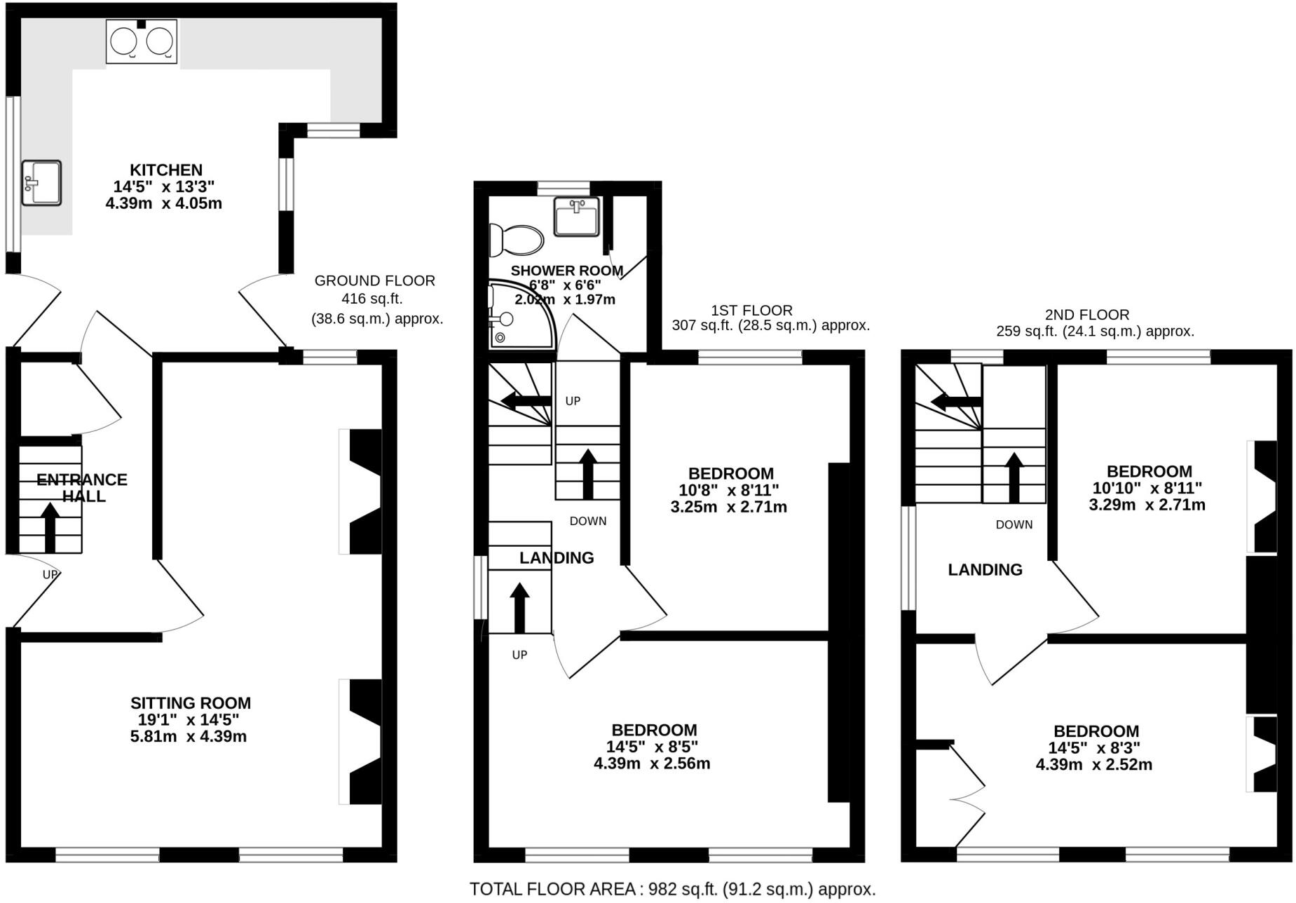
4 Harbour Terrace is a handsome end terrace period property with bags of character, situated right on the harbourside in the coastal village of Boscastle on the North coast of Cornwall.
Property Oracle says ..
Therefore, we give this property 8 / 10. *Disclaimer: This is our option and does constitute a recommendation or financial advice. Do your own research. *
- Price
- 7
- Condition
- 9
- Location
- 9
- Land
- 7
- Bedrooms
- 4
- Bathrooms
- 1
- Sqft (est)
- 892.64
- Lot (est)
- 982.00
The heatmap indicates the level of crime in the area. The color of the heatmap indicates the crime severity and recency.
Metrics Year-on-Year
- Average area value
- 445,833.00 £Increased by 35.94 %
- Est sale value
- 266,006.72 £Increased by 18.25 %
- Average area rental value
- 800.00 £/moDecreased by 24.74 %
- Est letting value
- 0.00 £/mo
- Est rental Yield
- 2.15 %Decreased by 44.73 %
- Crime Rate
- 1.00 %Unchanged by 0.00 %
from 327,971.00 £
from 224,945.28 £
from 1,063.00 £/mo
from 0.00 £/mo
from 3.89 %
from 1.00 %
Agent Activity
Jackie Stanley created the listing.
Nearby Schools
| Name | Type | Ofsted | Distance |
|---|---|---|---|
| Boscastle Community Primary School | Foundation School | Good | 0.67 KM |
| Tintagel Children'S Centre | Children's Centre Linked Site | 6.89 KM | |
| Tintagel Primary School | Academy Converter | Good | 6.89 KM |
| Camelford Community Primary School | Academy Converter | 7.69 KM | |
| Sir James Smith'S School | Academy Converter | 7.72 KM |
Images
Nearby Streets
| Name | Average Price | Average Sqft | Distance |
|---|---|---|---|
| Barnpark Road | £ 0 | 0 | 0.00 KM |
| Polrunny | £ 750,000 | 0 | 0.00 KM |
| Polrunny Cottage | £ 0 | 0 | 0.00 KM |
Nearby Listings
| Address | Price | Type | Score | Distance |
|---|---|---|---|---|
| Harbour Terrace, Boscastle, PL35 | £ 625,000 | BUY | 8 / 10 | 0.00 KM |
| The Harbour, Boscastle | £ 350,000 | BUY | 7 / 10 | 0.04 KM |
| Boscastle Harbour, North Cornwall | £ 695,000 | BUY | 7 / 10 | 0.18 KM |
| The Bridge, Boscastle, PL35 | £ 265,000 | BUY | Unknown | 0.27 KM |
| Marine Terrace, Old Road, Boscastle, Cornwall, PL35 | £ 270,000 | BUY | 6 / 10 | 0.29 KM |
Nearby Properties
| Address | Price | Distance |
|---|---|---|
| 4 Harbour Terrace | £ 372,000 | 0.03 KM |
| 4 Penally Terrace | £ 570,000 | 0.17 KM |
| 3a Penally Terrace | £ 155,850 | 0.17 KM |
| 1 Penally Terrace | £ 450,000 | 0.17 KM |
| 3 Penally Terrace | £ 410,000 | 0.17 KM |