Cricklade Road, Swindon
RE

Cricklade Road, Swindon

By Resides Swindon

£ 265,000

Reviews

3 out of 5 stars

Resides Swindon says ..

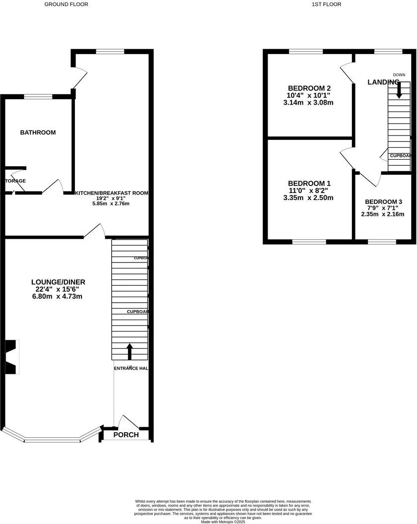
NO ONWARD CHAIN.. Newly modernized three bedroom terrace property, the home will be finished inside and out in the next couple of weeks. The works include a new flat roof, damproofing in the lounge, refitted kitchen and bathroom which is nearly finished and freshly painted throughout. New carpets...

Property Oracle says ..

This is a 3-bedroom terraced house on Cricklade Road, Swindon, presented by Resides Swindon. The property offers a garden and is situated in a location with access to transportation and schools. While the house requires some renovation, particularly regarding the flooring, the kitchen and bathroom appear functional. The asking price of £265,000 seems fair in relation to the local market, but potential buyers should factor in the cost of necessary repairs and upgrades.

Therefore, we give this property 6 / 10. *Disclaimer: This is our option and does constitute a recommendation or financial advice. Do your own research. *

Price
7
Condition
4
Location
6
Land
7
Bedrooms
3
Bathrooms
1
Sqft (est)
843.14

The heatmap indicates the level of crime in the area. The color of the heatmap indicates the crime severity and recency.

Metrics Year-on-Year

Average area value
481,967.00 £
Increased by 28.07 %
from 376,332.00 £
Est sale value
337,256.00 £
Decreased by 15.97 %
from 401,334.64 £
Average area rental value
1,254.00 £/mo
Increased by 10.97 %
from 1,130.00 £/mo
Est letting value
843.14 £/mo
Unchanged by 0.00 %
from 843.14 £/mo
Est rental Yield
3.12 %
Decreased by 13.33 %
from 3.60 %
Crime Rate
4.00 %
Unchanged by 0.00 %
from 4.00 %

Agent Activity

  • Resides Swindon created the listing.

Nearby Schools

NameTypeOfstedDistance
Gorse Hill Children'S CentreChildren's Centre0.32 KM
Gorse Hill Primary SchoolAcademy ConverterRequires improvement0.43 KM
Crowdys Hill SchoolCommunity Special SchoolGood0.82 KM
Swindon AcademyAcademy Sponsor LedGood1.26 KM
Eotas SwindonPupil Referral UnitGood1.43 KM

Images

IMG_3627.jpg IMG_3628.jpg IMG_3632.jpg IMG_3620.jpg IMG_3626.jpg IMG_3631.jpg IMG_3622.jpg IMG_3624.jpg IMG_3623.jpg IMG_3621.jpg IMG_3625.jpg IMG_3835.jpg IMG_3837 (1)r.jpg IMG_3836.jpg IMG_3851.jpg IMG_3847.jpg IMG_3844.jpg IMG_3839.jpg IMG_3838.jpg IMG_3840.jpg IMG_3841.jpg IMG_3842.jpg IMG_3848.jpg IMG_3843.jpg IMG_3937.jpg IMG_3929.jpg IMG_3926.jpg IMG_3933.jpg IMG_3930.jpg IMG_3934.jpg

Nearby Streets

NameAverage PriceAverage SqftDistance
Firethorn Close £ 210,00000.00 KM
Acacia Grove £ 000.00 KM
Cirencester Way £ 000.00 KM
Cherry Orchard West £ 000.00 KM
Murdoch £ 000.00 KM

Nearby Transport

NameNLCTLCDistance
Swindon (Wilts)3333SWI1.38 KM

Nearby Listings

AddressPriceTypeScoreDistance
Cricklade Road, Swindon £ 265,000BUY6 / 100.00 KM
Cricklade Road, Gorse Hill, Swindon, Wiltshire, SN2 £ 190,000BUY5 / 100.02 KM
Cricklade Road, Gorse Hill, Swindon, SN2 £ 250,000BUY6 / 100.09 KM
Cricklade Road, Gorse Hill, Swindon, SN2 £ 167,500BUYUnknown0.11 KM
Cricklade Road, Gorse Hill, Swindon, SN2 £ 270,000BUYUnknown0.12 KM

Nearby Properties

AddressPriceDistance
257 Cricklade Road £ 112,0000.01 KM
177 Cricklade Road £ 113,0000.01 KM
197 Cricklade Road £ 100,0000.01 KM
187 Cricklade Road £ 97,0000.01 KM
227 Cricklade Road £ 107,5000.01 KM