MA
Church Road West, Farnborough, Hampshire, GU14
By Mackenzie Smith
£ 550,000
Reviews
3 out of 5 stars
Mackenzie Smith says ..
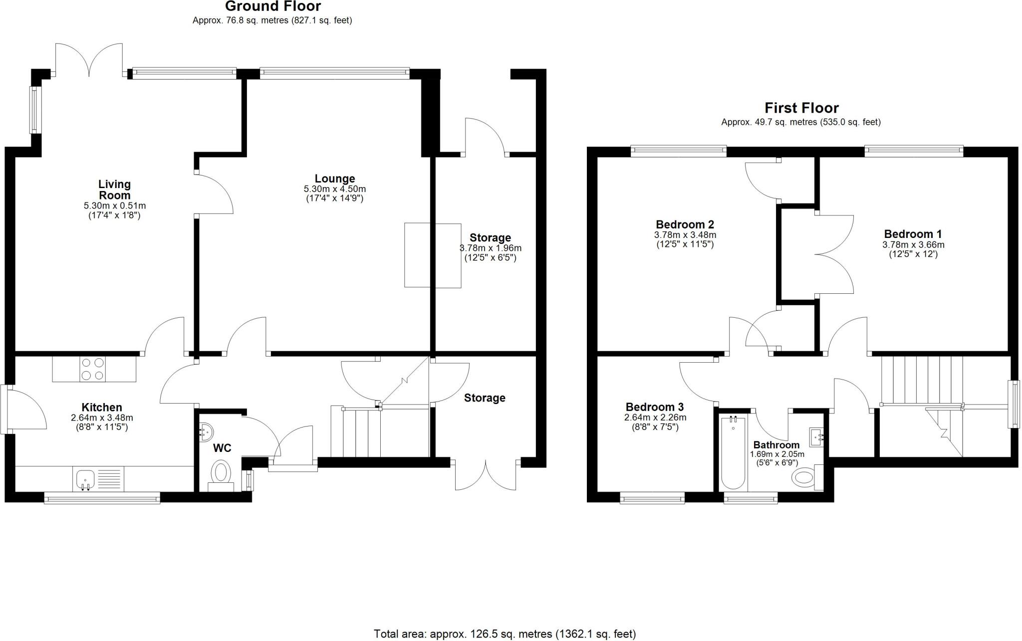
Set near the desirable Church Circle area, this refurbished three-bedroom detached home is offered with no onward chain and features a south-facing garden.
Property Oracle says ..
Therefore, we give this property 6 / 10. *Disclaimer: This is our option and does constitute a recommendation or financial advice. Do your own research. *
- Price
- 4
- Condition
- 7
- Location
- 8
- Land
- 5
- Bedrooms
- 3
- Bathrooms
- 1
- Sqft (est)
- 856.53
The heatmap indicates the level of crime in the area. The color of the heatmap indicates the crime severity and recency.
Metrics Year-on-Year
- Average area value
- 485,833.00 £Decreased by 9.02 %
- Est sale value
- 280,941.84 £Decreased by 15.46 %
- Average area rental value
- 2,833.00 £/moIncreased by 31.77 %
- Est letting value
- 856.53 £/moUnchanged by 0.00 %
- Est rental Yield
- 7.00 %Increased by 44.93 %
- Crime Rate
- 12.00 %Unchanged by 0.00 %
from 534,023.00 £
from 332,333.64 £
from 2,150.00 £/mo
from 856.53 £/mo
from 4.83 %
from 12.00 %
Agent Activity
Mackenzie Smith created the listing.
Nearby Schools
| Name | Type | Ofsted | Distance |
|---|---|---|---|
| Farnborough College Of Technology | Further Education | Outstanding | 0.41 KM |
| Salesian College | Other Independent School | 0.72 KM | |
| St Mark'S Church Of England Aided Primary School | Voluntary Aided School | Outstanding | 0.73 KM |
| South Farnborough Infant School | Community School | Outstanding | 0.92 KM |
| South Farnborough Junior School | Community School | Outstanding | 1.01 KM |
Images
Nearby Streets
| Name | Average Price | Average Sqft | Distance |
|---|---|---|---|
| RAE Road | £ 0 | 0 | 0.00 KM |
| Canterbury Walk | £ 630,000 | 0 | 0.00 KM |
| Church Path | £ 0 | 0 | 0.00 KM |
| Bedford Court | £ 0 | 0 | 0.00 KM |
| Trenchard Way | £ 135,000 | 0 | 0.00 KM |
Nearby Transport
| Name | NLC | TLC | Distance |
|---|---|---|---|
| Farnborough (Main) | 5521 | FNB | 1.73 KM |
| North Camp | 5636 | NCM | 2.14 KM |
| Farnborough North | 5688 | FNN | 2.29 KM |
| Ash Vale | 5547 | AHV | 3.27 KM |
| Frimley | 5683 | FML | 3.28 KM |
Nearby Listings
| Address | Price | Type | Score | Distance |
|---|---|---|---|---|
| Church Road West, Farnborough, Hampshire, GU14 | £ 550,000 | BUY | 6 / 10 | 0.00 KM |
| Church Road West, Farnborough, Hampshire | £ 750,000 | BUY | 6 / 10 | 0.03 KM |
| Quinneys, Farnborough , GU14 | £ 210,000 | BUY | 6 / 10 | 0.10 KM |
| Quinneys, Farnborough, Hampshire, GU14 | £ 225,000 | BUY | 6 / 10 | 0.10 KM |
| Alexandra Road, Farnborough, Hampshire | £ 375,000 | BUY | 6 / 10 | 0.12 KM |
Nearby Properties
| Address | Price | Distance |
|---|---|---|
| 23 Church Road West | £ 610,000 | 0.01 KM |
| 31 Church Road West | £ 722,000 | 0.01 KM |
| 17 Church Road West | £ 374,000 | 0.01 KM |
| 21 Church Road West | £ 180,000 | 0.01 KM |
| 46 Church Road West | £ 230,000 | 0.06 KM |