Jenkinson Estates says ..
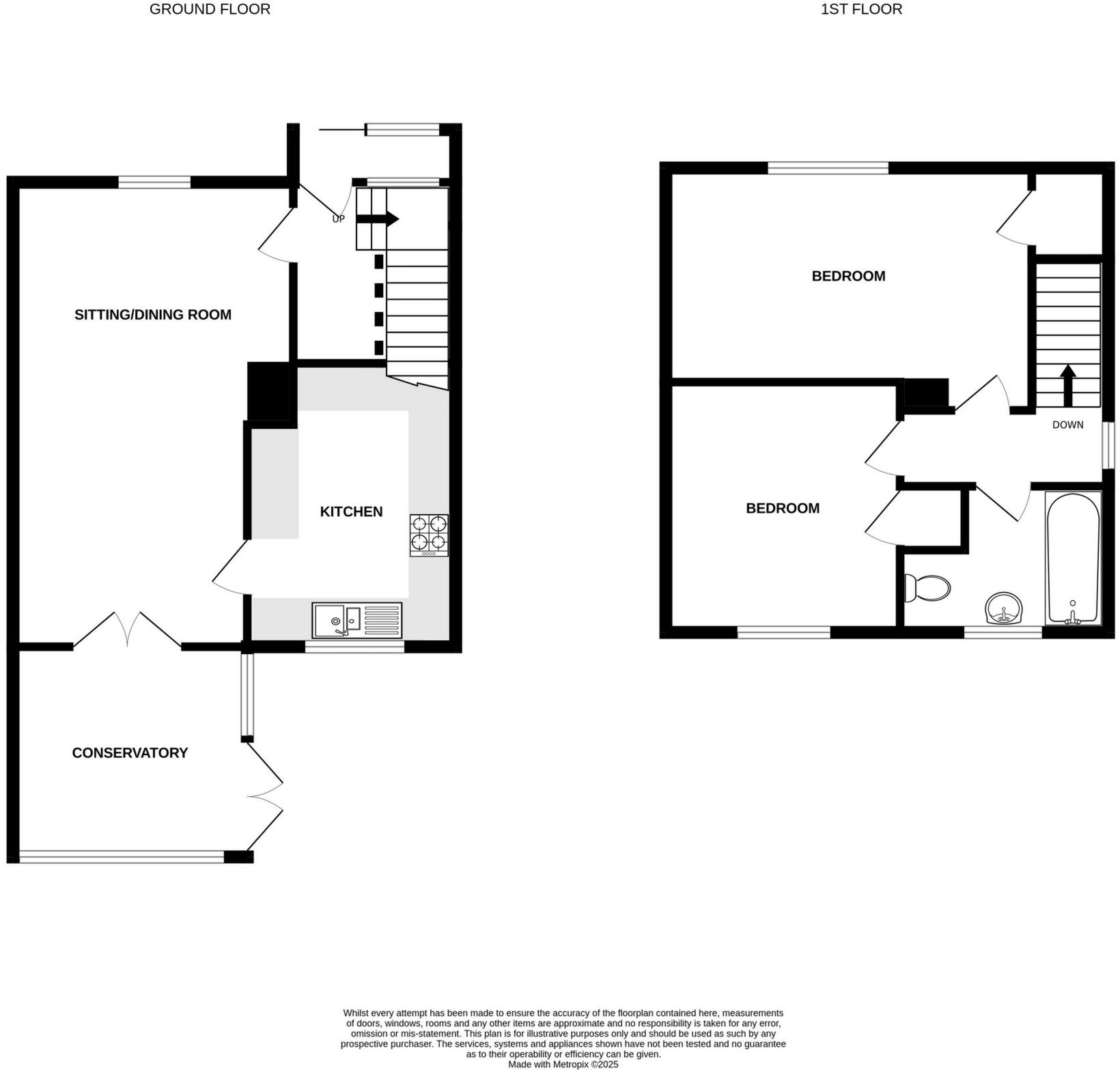
Jenkinson Estates are pleased to offer to the market this end of terraced home situated yards from the promenade and famous seafront of Deal. A property with scope and potential, this really would be an ideal home for anyone looking to take advantage of owning a home that can grow with them. The ...
Property Oracle says ..
This end-of-terrace property is located in North Deal, offering proximity to local amenities and transportation links. The property features two bedrooms, one bathroom, and an 800 sqft layout. While the property includes a garden, which is a plus, some areas, particularly the bathroom, could benefit from modernisation. The asking price of £249,950 appears reasonable when compared to the average price per square foot in the area. Overall, this property presents a good opportunity for buyers looking to put their own stamp on a home in a sought-after coastal town.
Therefore, we give this property 6 / 10. *Disclaimer: This is our option and does constitute a recommendation or financial advice. Do your own research. *
- Price
- 7
- Condition
- 5
- Location
- 7
- Land
- 6
- Bedrooms
- 2
- Bathrooms
- 1
- Sqft (est)
- 800.00
The heatmap indicates the level of crime in the area. The color of the heatmap indicates the crime severity and recency.
Metrics Year-on-Year
- Average area value
- 505,375.00 £Increased by 53.39 %
- Est sale value
- 395,200.00 £Increased by 26.99 %
- Average area rental value
- 1,085.00 £/moDecreased by 20.22 %
- Est letting value
- 800.00 £/moUnchanged by 0.00 %
- Est rental Yield
- 2.58 %Decreased by 47.88 %
- Crime Rate
- 11.00 %Unchanged by 0.00 %
Agent Activity
Jenkinson Estates created the listing.
Nearby Schools
| Name | Type | Ofsted | Distance |
|---|---|---|---|
| Sandown School | Academy Converter | 0.93 KM | |
| Brewood Secondary School | Other Independent Special School | Good | 2.09 KM |
| Goodwin Academy | Academy Sponsor Led | 2.61 KM | |
| Deal Parochial Church Of England Primary School | Academy Converter | 2.74 KM | |
| Warden House Primary School | Academy Converter | Outstanding | 2.95 KM |
Images
Nearby Streets
| Name | Average Price | Average Sqft | Distance |
|---|---|---|---|
| Hengist Road | £ 0 | 0 | 0.00 KM |
| Dibdin Road | £ 0 | 0 | 0.00 KM |
| Sandown Court | £ 0 | 0 | 0.00 KM |
| Peter Street | £ 0 | 0 | 0.00 KM |
| Brewer Street | £ 950,000 | 0 | 0.00 KM |
Nearby Transport
| Name | NLC | TLC | Distance |
|---|---|---|---|
| Deal | 5011 | DEA | 1.60 KM |
| Walmer | 5041 | WAM | 4.28 KM |
| Sandwich | 5026 | SDW | 7.42 KM |
| Martin Mill | 5040 | MTM | 9.44 KM |
Nearby Listings
| Address | Price | Type | Score | Distance |
|---|---|---|---|---|
| Canute Road, Deal, CT14 | £ 249,950 | BUY | 6 / 10 | 0.00 KM |
| Canute Walk, Deal, CT14 | £ 120,000 | BUY | 6 / 10 | 0.06 KM |
| Canute Road, Deal, CT14 | £ 460,000 | BUY | 7 / 10 | 0.08 KM |
| Ethelbert Road, Deal, CT14 | £ 132,000 | BUY | 7 / 10 | 0.12 KM |
| Canute Road, Deal, CT14 | £ 450,000 | BUY | 7 / 10 | 0.15 KM |
Nearby Properties
| Address | Price | Distance |
|---|---|---|
| 61 Canute Road | £ 225,000 | 0.04 KM |
| 77 Canute Road | £ 108,000 | 0.05 KM |
| 69 Canute Road | £ 350,000 | 0.05 KM |
| 32 Canute Road | £ 292,000 | 0.05 KM |
| 53 Canute Road | £ 470,000 | 0.05 KM |