Brian Cox says ..
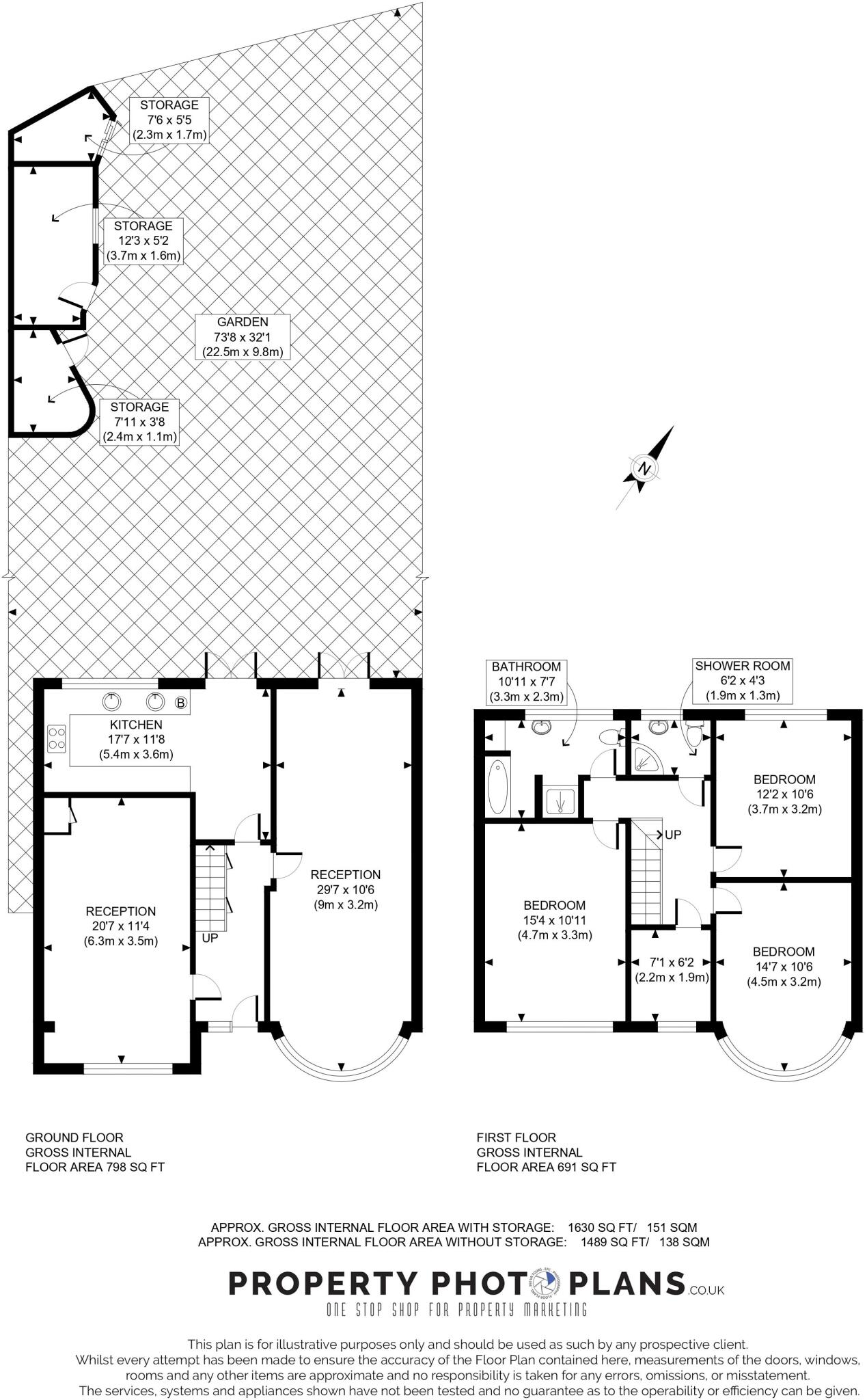
Brian Cox & Company are pleased to present this substantial five-bedroom end-of-terrace home, ideally situated on a popular residential road in Rayners Lane. Offering generous proportions throughout, this spacious property presents an excellent opportunity for families seeking room to grow...
Property Oracle says ..
Therefore, we give this property 6 / 10. *Disclaimer: This is our option and does constitute a recommendation or financial advice. Do your own research. *
- Price
- 7
- Condition
- 4
- Location
- 7
- Land
- 6
- Bedrooms
- 5
- Bathrooms
- 2
- Sqft (est)
- 3,815.75
The heatmap indicates the level of crime in the area. The color of the heatmap indicates the crime severity and recency.
Metrics Year-on-Year
- Average area value
- 341,429.00 £Increased by 9.95 %
- Est sale value
- 1,194,329.75 £Decreased by 25.65 %
- Average area rental value
- 875.00 £/moDecreased by 18.53 %
- Est letting value
- 0.00 £/moDecreased by 100.00 %
- Est rental Yield
- 3.08 %Decreased by 25.78 %
- Crime Rate
- 4.00 %Unchanged by 0.00 %
from 310,533.00 £
from 1,606,430.75 £
from 1,074.00 £/mo
from 3,815.75 £/mo
from 4.15 %
from 4.00 %
Agent Activity
Brian Cox created the listing.
Nearby Schools
| Name | Type | Ofsted | Distance |
|---|---|---|---|
| Newton Farm Nursery, Infant And Junior School | Community School | Outstanding | 0.49 KM |
| Rooks Heath School | Academy Converter | Good | 0.60 KM |
| Harrow Independent College | Other Independent School | Good | 0.61 KM |
| Heathland School | Academy Converter | 0.64 KM | |
| Alexandra School | Academy Special Converter | Outstanding | 0.75 KM |
Images
Nearby Streets
| Name | Average Price | Average Sqft | Distance |
|---|---|---|---|
| Lynton Road | £ 0 | 0 | 0.00 KM |
| Kenilworth Avenue | £ 0 | 0 | 0.00 KM |
| Newton Close | £ 282,500 | 0 | 0.00 KM |
| Windsor Close | £ 0 | 0 | 0.00 KM |
| The Fairway | £ 708,333 | 0 | 0.00 KM |
Nearby Transport
| Name | NLC | TLC | Distance |
|---|---|---|---|
| Northolt Park | 1478 | NLT | 2.06 KM |
| South Ruislip | 3057 | SRU | 2.70 KM |
| Greenford | 3136 | GFD | 4.23 KM |
| Sudbury Hill Harrow | 1484 | SDH | 4.55 KM |
| Harrow-On-The-Hill | 598 | HOH | 4.60 KM |
Nearby Listings
| Address | Price | Type | Score | Distance |
|---|---|---|---|---|
| Malvern Avenue, Harrow | £ 750,000 | BUY | 6 / 10 | 0.00 KM |
| Lulworth Close, Harrow | £ 699,950 | BUY | 6 / 10 | 0.10 KM |
| Lulworth Close,Harrow,HA2 9NR | £ 525,000 | BUY | 5 / 10 | 0.10 KM |
| Kings Road, Harrow | £ 800,000 | BUY | 6 / 10 | 0.14 KM |
| Kings Road, Harrow | £ 400,000 | BUY | 5 / 10 | 0.18 KM |
Nearby Properties
| Address | Price | Distance |
|---|---|---|
| 113 Malvern Avenue | £ 289,950 | 0.05 KM |
| 115a Malvern Avenue | £ 158,000 | 0.05 KM |
| 115b Malvern Avenue | £ 125,000 | 0.05 KM |
| 109 Malvern Avenue | £ 510,000 | 0.05 KM |
| 105 Malvern Avenue | £ 170,000 | 0.05 KM |