Tringham Close, Knaphill, Woking, Surrey, GU21
By Seymours Estate Agents
£ 525,000
Reviews
3 out of 5 stars
Seymours Estate Agents says ..
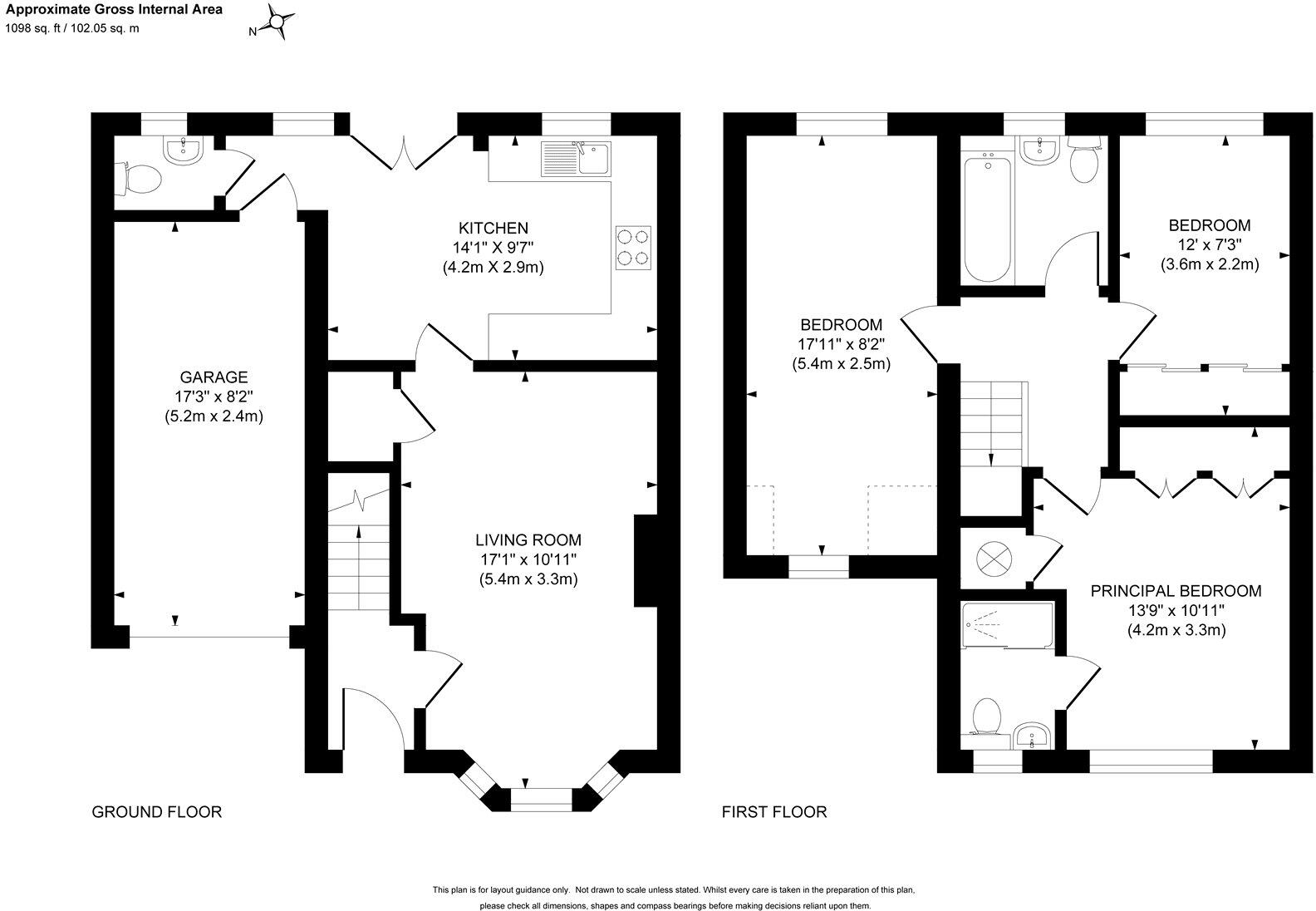
This executive style detached family home is located in a highly sought after cul de sac on the Brookwood Manor Development in Knaphill and is offered to the market with no onward chain. The property has three bedrooms that are all doubles, the master benefitting from the use of built in war...
Property Oracle says ..
The property is located in Knaphill, Woking, Surrey. Based on the provided information, it is a 3-bedroom, 2-bathroom house with a total area of 820 sqft and a small garden. The list price is £525,000. The average price for properties in the area is £511,523, with an average price per sqft of £483. The property appears to be in good condition, with no visible signs of significant damage or disrepair in the provided images. The interior is clean and well-maintained. The kitchen and bathrooms seem modern and functional. The presence of a garden, although small, adds to the property’s appeal. Considering the property’s condition, the relatively small plot size, and its location in Knaphill, the list price of £525,000 seems slightly above the average price for the area. However, given that nearby properties on Tringham Close have sold for prices ranging from £340,000 to £500,000, the asking price is within a reasonable range, especially considering the apparent good condition of the property. The proximity to schools and transportation links in Woking also contributes positively to the property’s value.
Therefore, we give this property 6 / 10. *Disclaimer: This is our option and does constitute a recommendation or financial advice. Do your own research. *
- Price
- 7
- Condition
- 8
- Location
- 7
- Land
- 4
- Bedrooms
- 3
- Bathrooms
- 2
- Sqft (est)
- 820.00
The heatmap indicates the level of crime in the area. The color of the heatmap indicates the crime severity and recency.
Metrics Year-on-Year
- Average area value
- 586,400.00 £Increased by 18.76 %
- Est sale value
- 390,320.00 £Increased by 6.01 %
- Average area rental value
- 2,150.00 £/moIncreased by 9.47 %
- Est letting value
- 820.00 £/moUnchanged by 0.00 %
- Est rental Yield
- 4.40 %Decreased by 7.76 %
- Crime Rate
- 18.00 %Unchanged by 0.00 %
Agent Activity
Seymours Estate Agents marked this listing as sold.
Seymours Estate Agents created the listing.
Nearby Schools
| Name | Type | Ofsted | Distance |
|---|---|---|---|
| Knaphill School | Academy Converter | 0.32 KM | |
| The Knaphill Lower School | Academy Converter | 0.41 KM | |
| St Hugh Of Lincoln Catholic Primary School | Academy Converter | Good | 1.25 KM |
| St John'S Primary School | Academy Sponsor Led | Requires improvement | 1.58 KM |
| St John'S Primary School And Sure Start Children'S Centre | Children's Centre | 1.58 KM |
Images
Nearby Streets
| Name | Average Price | Average Sqft | Distance |
|---|---|---|---|
| Barton Close | £ 0 | 0 | 0.00 KM |
| Rose Lodge | £ 0 | 0 | 0.00 KM |
| Trinity Road | £ 660,000 | 0 | 0.00 KM |
| Oak Tree Road | £ 0 | 0 | 0.00 KM |
| Stafford Lake | £ 0 | 0 | 0.00 KM |
Nearby Transport
| Name | NLC | TLC | Distance |
|---|---|---|---|
| Brookwood | 5687 | BKO | 2.02 KM |
| Worplesdon | 5686 | WPL | 5.15 KM |
| Woking | 5685 | WOK | 7.12 KM |
| Longcross | 5674 | LNG | 8.37 KM |
| Sunningdale | 5671 | SNG | 8.68 KM |
Nearby Listings
| Address | Price | Type | Score | Distance |
|---|---|---|---|---|
| Woking, Surrey, GU21 | £ 450,000 | BUY | Unknown | 0.16 KM |
| Florence Way, Knaphill, Woking, Surrey, GU21 | £ 600,000 | BUY | 6 / 10 | 0.17 KM |
| Tringham Close, Knaphill, Woking, Surrey, GU21 | £ 549,950 | BUY | 7 / 10 | 0.18 KM |
| Royal Court, 108 Broadway, Woking, Surrey, GU21 | £ 180,000 | BUY | 5 / 10 | 0.20 KM |
| Sussex Road, Knaphill, Woking, Surrey, GU21 | £ 475,000 | BUY | 7 / 10 | 0.21 KM |
Nearby Properties
| Address | Price | Distance |
|---|---|---|
| 60 Tringham Close | £ 487,500 | 0.08 KM |
| 24 Tringham Close | £ 234,950 | 0.08 KM |
| 31 Tringham Close | £ 500,000 | 0.08 KM |
| 14 Tringham Close | £ 287,500 | 0.08 KM |
| 18 Tringham Close | £ 225,000 | 0.08 KM |